168 000 000 Ft
446 000 €
- 161m²
- 5 szoba
Eladó Gárdony frekventált, mégis nyugodt részén egy épülőfélben lévő, minden igényt kielégítő ikerházfél, amely nem csupán egy ingatlan, hanem egy életre szóló befektetés a minőségbe.
- Tágas terek nagycsaládosoknak is.
- Ritka kincs a piacon: a földszinti tágas amerikai konyhás nappali mellett további 4 teljes értékű hálószoba és 3 fürdőszoba biztosítja, hogy a reggeli készülődés torlódásmentes legyen, és mindenkinek jusson privát szféra.
A teljesség igénye nélkül a lakások műszaki tartalmáról:
- Viablokk falazat, 10 cm Dryvit szigetelés
- Hofstadter 3 rétegű nyílászárók, motoros redőnyökkel
- Egyedi kő burkolat a homlokzaton, párkányokon,
- Monolit vasbetonfödém
- Hőszivattyús padló hűtés-fűtés
- A szobákban és a nappaliban hűtő-fűtő és páramentesítő klíma
- Térkövezett járda, terasz és kocsibeálló
További műszaki tartalmakkal is szívesen állunk rendelkezésre!
- Zöldenergia és A++ besorolás Felejtse el a magas rezsit! A ház hőszivattyús fűtésrendszerrel és kiváló szigeteléssel épül, így energetikai besorolása A++. Amit ma megspórol a vételáron egy gyengébb háznál, azt itt a havi számlákon nyerheti vissza hosszú távon.
- Miért különleges ez az ajánlat? Az ingatlan kivitelezője évtizedes tapasztalattal rendelkezik a prémium kőburkolatok világában. Mit jelent ez Önnek? Azt, hogy itt nem 'standard' burkolatok közül válogathat: leendő tulajdonosként kiemelt lehetőséget kap prémium márvány, gránit és felső kategóriás burkolatok kiválasztására, hogy otthona valóban az Ön ízlését és a luxust tükrözze.
Lokáció Gárdony a Velencei-tó fővárosa. A ház elhelyezkedése kiváló: közel a parthoz és a központi infrastruktúrához, mégis csendes környezetben.
Befektetés a jövőbe Bár az ingatlan paramétereiből adódóan állami támogatások (CSOK, stb.) nem vehetők igénybe, ez a ház azoknak szól, akik nem kompromisszumokat keresnek, hanem értéket. Ideális készpénzes vásárlóknak vagy piaci hitellel rendelkezőknek, akik tudják: a minőségi anyaghasználat és a megbízható kivitelező a legjobb garancia.
Várható átadás: 2026 Irányár: 168.000.000 Ft 30%-os előleggel leköthető
Hívjon bizalommal, és tekintse meg a helyszínt, valamint a választható prémium burkolatok mintáit!
- Tágas terek nagycsaládosoknak is.
- Ritka kincs a piacon: a földszinti tágas amerikai konyhás nappali mellett további 4 teljes értékű hálószoba és 3 fürdőszoba biztosítja, hogy a reggeli készülődés torlódásmentes legyen, és mindenkinek jusson privát szféra.
A teljesség igénye nélkül a lakások műszaki tartalmáról:
- Viablokk falazat, 10 cm Dryvit szigetelés
- Hofstadter 3 rétegű nyílászárók, motoros redőnyökkel
- Egyedi kő burkolat a homlokzaton, párkányokon,
- Monolit vasbetonfödém
- Hőszivattyús padló hűtés-fűtés
- A szobákban és a nappaliban hűtő-fűtő és páramentesítő klíma
- Térkövezett járda, terasz és kocsibeálló
További műszaki tartalmakkal is szívesen állunk rendelkezésre!
- Zöldenergia és A++ besorolás Felejtse el a magas rezsit! A ház hőszivattyús fűtésrendszerrel és kiváló szigeteléssel épül, így energetikai besorolása A++. Amit ma megspórol a vételáron egy gyengébb háznál, azt itt a havi számlákon nyerheti vissza hosszú távon.
- Miért különleges ez az ajánlat? Az ingatlan kivitelezője évtizedes tapasztalattal rendelkezik a prémium kőburkolatok világában. Mit jelent ez Önnek? Azt, hogy itt nem 'standard' burkolatok közül válogathat: leendő tulajdonosként kiemelt lehetőséget kap prémium márvány, gránit és felső kategóriás burkolatok kiválasztására, hogy otthona valóban az Ön ízlését és a luxust tükrözze.
Lokáció Gárdony a Velencei-tó fővárosa. A ház elhelyezkedése kiváló: közel a parthoz és a központi infrastruktúrához, mégis csendes környezetben.
Befektetés a jövőbe Bár az ingatlan paramétereiből adódóan állami támogatások (CSOK, stb.) nem vehetők igénybe, ez a ház azoknak szól, akik nem kompromisszumokat keresnek, hanem értéket. Ideális készpénzes vásárlóknak vagy piaci hitellel rendelkezőknek, akik tudják: a minőségi anyaghasználat és a megbízható kivitelező a legjobb garancia.
Várható átadás: 2026 Irányár: 168.000.000 Ft 30%-os előleggel leköthető
Hívjon bizalommal, és tekintse meg a helyszínt, valamint a választható prémium burkolatok mintáit!
Regisztrációs szám
DHZ077110
Az ingatlan adatai
Értékesités
eladó
Jogi státusz
új
Jelleg
ház
Építési mód
egyéb
Méret
161 m²
Bruttó méret
161 m²
Telek méret
353 m²
Terasz / erkély mérete
32 m²
Fűtés
egyéb
Lakáson belüli szintszám
2
Tájolás
Észak-nyugat
Állapot
Jó
Homlokzat állapota
Jó
Építés éve
2025
Fürdőszobák száma
3
Fekvés
udvari
Víz
Van
Villany
Van
Csatorna
Van
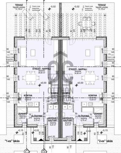
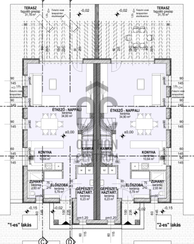
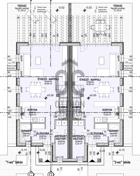
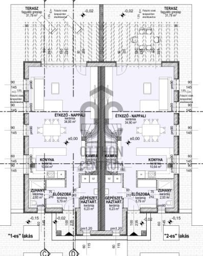
Helyiségek
előszoba
5.79 m²
fürdőszoba-wc
2.93 m²
konyha
10.54 m²
kamra
2.16 m²
nappali
34.9 m²
háztartási helyiség
6.23 m²
terasz
32 m²
közlekedő
9 m²
szoba
10.08 m²
szoba
9.1 m²
szoba
9.71 m²
szoba
13.95 m²
fürdőszoba-wc
2.45 m²
lépcsőház
4 m²
Várnai Zoltán Jenő
Hitelszakértő