Elérhető Otthon Start hitellel
Eladó családi ház,
DHZ073065
Diósd
96 000 000 Ft
251 000 €
- 120m²
- 4 szoba
DIÓSDON, 70% KÉSZÜLTSÉGI CSALÁDIHÁZ!
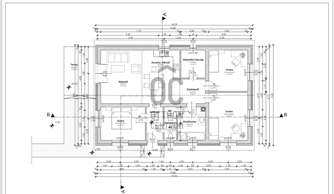
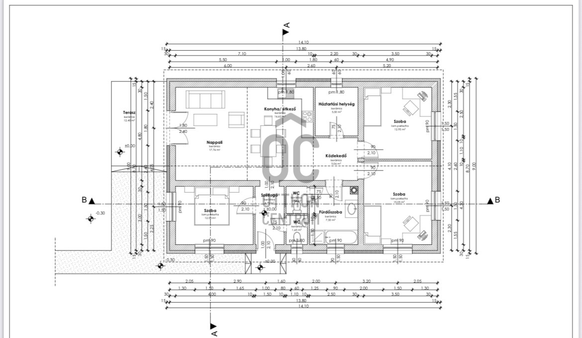
Diósdon a Szabadság utcában eladó egy 70% készültségű családi ház.
A telek 1724 nm ami rengeteg helyet ad különböző ötletek, tervek megvalósításra, gyönyörű kertnek, gyümölcsösnek, nyári konyhának, medencének és még sorolhatnám.
A ház 120 nm alapterületű, egy nagy amerikai konyhás nappalival, 3 szobával, háztartási helyiséggel és fürdő + wc és külön wc-vel. A ház előtt gépkocsi beálló van tervezve.
A környék kiépített, autóval 5 perce számtalan bevásárlási lehetőség, iskola, óvoda. Tömegközlekedés 5 perc sétára 88-as busz ami vagy Kelenföld végállomásra megy vagy a Camponához. Kicsit hosszabb sétával a Volán buszok érhetőek el szintén Kelenföld felé.
Diósdon a Szabadság utcában eladó egy 70% készültségű családi ház.
A telek 1724 nm ami rengeteg helyet ad különböző ötletek, tervek megvalósításra, gyönyörű kertnek, gyümölcsösnek, nyári konyhának, medencének és még sorolhatnám.
A ház 120 nm alapterületű, egy nagy amerikai konyhás nappalival, 3 szobával, háztartási helyiséggel és fürdő + wc és külön wc-vel. A ház előtt gépkocsi beálló van tervezve.
A környék kiépített, autóval 5 perce számtalan bevásárlási lehetőség, iskola, óvoda. Tömegközlekedés 5 perc sétára 88-as busz ami vagy Kelenföld végállomásra megy vagy a Camponához. Kicsit hosszabb sétával a Volán buszok érhetőek el szintén Kelenföld felé.
Regisztrációs szám
DHZ073065
Az ingatlan adatai
Értékesités
eladó
Jogi státusz
használt
Jelleg
ház
Építési mód
tégla
Méret
120 m²
Bruttó méret
120 m²
Telek méret
1 724 m²
Terasz / erkély mérete
12,4 m²
Fűtés
egyéb
Lakáson belüli szintszám
1
Tájolás
Dél-nyugat
Állapot
Jó
Homlokzat állapota
Jó
Építés éve
2022
Fürdőszobák száma
1
Fekvés
utcai
Helyiségek
nappali-konyha
34.4 m²
szoba
12 m²
szoba
13 m²
szoba
13 m²
háztartási helyiség
5.5 m²
előszoba
4.7 m²
wc
1.65 m²
wc
1.55 m²
közlekedő
5 m²
terasz
12.4 m²