175 000 000 Ft
447 000 €
- 355m²
























Exkluzív Befektetési Lehetőség Budapesttől mindössze 35 percre! - Cegléd – Öregszőlő, a Ceglédi Termál- és Élményfürdő közelében!
Eladó egy szerkezetkész állapotban lévő, exkluzív tervek alapján épülő ingatlan, amely kivételes lehetőséget kínál befektetőknek és prémium otthont keresőknek egyaránt.
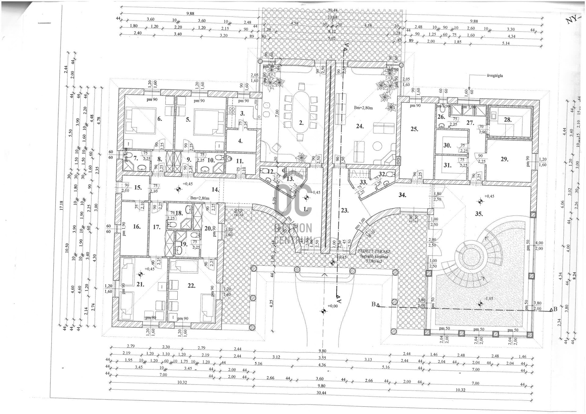
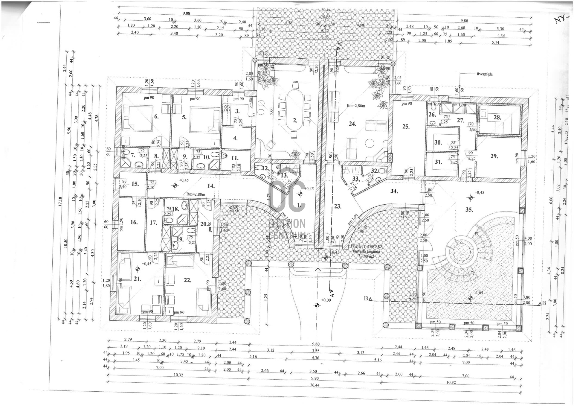
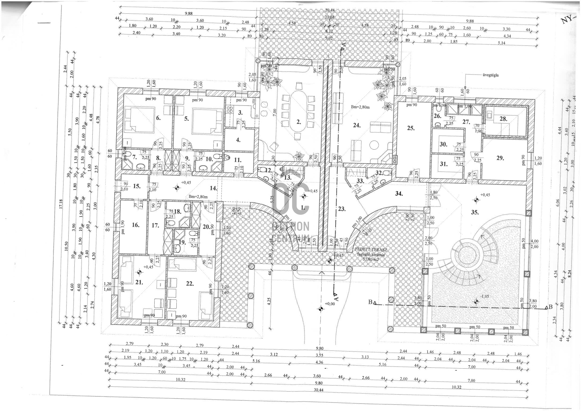
A közel 3000 m²-es telken elhelyezkedő 350 nm alapterületű épületben több apartman, beltéri medencetér, szauna, valamint egy beépíthető tetőtér is helyet kapott a tervek szerint – ezzel ideális alapot teremtve akár luxus családi ház, akár exkluzív vendégház kialakításához.
Főbb jellemzők:
Szerkezetkész állapot – az új tulajdonos igényei szerint fejezhető be
Beltéri wellnessrészleg: tervezett medence és szauna
Beépíthető tetőtér – bővítési lehetőség
Exkluzív, egyedi tervek
Csendes, zöldövezeti környezet
Kiváló megközelíthetőség – Budapest kb. 35 perc
Ceglédi Termálfürdő és Csúszdapark gyalog is csak néhány percre
Tökéletes választás:
- prémium nyaraló vagy céges pihenőház kialakítására
- vendégház vagy wellnesstérként működtetett befektetés céljára
- saját otthonnak, magas komfortfokozattal
Ne maradjon le erről a kivételes lehetőségről – hívjon még ma és tekintse meg személyesen!
Amennyiben hitelt szeretne, úgy az Otthon Centrum az ország egyik legnagyobb és legmegbízhatóbb hitelközvetítőjeként teljes körű és
díjmentes hitelügyintézéssel, biztosításkötéssel áll rendelkezésére!
Kérje személyre szabott ajánlatunkat Kollégáinktól!
A hirdetésben szereplő információk a megbízótól kapott adatok alapján készültek, pontosságukért felelősséget nem vállalunk! Az energetikai tanúsítvány besorolása és megadása a megbízó felelőssége. A megadott energetikai tanúsítványokat nem ellenőrizzük, azok valódiságáért felelősséget nem vállalunk!
A közel 3000 m²-es telken elhelyezkedő 350 nm alapterületű épületben több apartman, beltéri medencetér, szauna, valamint egy beépíthető tetőtér is helyet kapott a tervek szerint – ezzel ideális alapot teremtve akár luxus családi ház, akár exkluzív vendégház kialakításához.
Főbb jellemzők:
Szerkezetkész állapot – az új tulajdonos igényei szerint fejezhető be
Beltéri wellnessrészleg: tervezett medence és szauna
Beépíthető tetőtér – bővítési lehetőség
Exkluzív, egyedi tervek
Csendes, zöldövezeti környezet
Kiváló megközelíthetőség – Budapest kb. 35 perc
Ceglédi Termálfürdő és Csúszdapark gyalog is csak néhány percre
Tökéletes választás:
- prémium nyaraló vagy céges pihenőház kialakítására
- vendégház vagy wellnesstérként működtetett befektetés céljára
- saját otthonnak, magas komfortfokozattal
Ne maradjon le erről a kivételes lehetőségről – hívjon még ma és tekintse meg személyesen!
Amennyiben hitelt szeretne, úgy az Otthon Centrum az ország egyik legnagyobb és legmegbízhatóbb hitelközvetítőjeként teljes körű és
díjmentes hitelügyintézéssel, biztosításkötéssel áll rendelkezésére!
Kérje személyre szabott ajánlatunkat Kollégáinktól!
A hirdetésben szereplő információk a megbízótól kapott adatok alapján készültek, pontosságukért felelősséget nem vállalunk! Az energetikai tanúsítvány besorolása és megadása a megbízó felelőssége. A megadott energetikai tanúsítványokat nem ellenőrizzük, azok valódiságáért felelősséget nem vállalunk!
Regisztrációs szám
BI000556
Az ingatlan adatai
Értékesités
eladó
Jelleg
fejlesztési célú
Típus
Teljes épület
Altípus
zöldövezeti villa
Méret
355 m²
Telek méret
2 668 m²
Terasz / erkély mérete
50 m²
Föld feletti nettó méret
400 m²
Kialakítható nettó méret
1 000 m²
Kielakítható föld feletti nettó méret
8 000 m²
Belmagasság
300 cm
Panoráma
Zöldre néző panoráma
Állapot
Átlagos
Homlokzat állapota
Jó
Építés éve
2024
Kialakítható ingatlan
Lakás 1-20 db, Iroda, Szálloda, Panzió, Vendéglátás, étterem, Oktatási, egészségügyi intézmény