EXKLUZÍV PRÉMIUM LAKÁSOK SIÓFOK ARANYPARTJÁN – LIMITÁLT, 3 LAKÁSOS BOUTIQUE PROJEKT
PRÉMIUM, 3 LAKÁSOS ÚJ ÉPÍTÉSŰ PROJEKT SIÓFOK ARANYPARTJÁN – KARNYÚJTÁSNYIRA A BALATONTÓL
Siófok egyik legkeresettebb részén, az Aranypart szívében, kínálunk egy exkluzív, mindössze háromlakásos, modern megjelenésű lakóépületet, ahol a nyugalom, a privát élettér és a balatoni életérzés tökéletes egyensúlyban találkozik.
A kiváló adottságú telek mindössze egy háztömbnyire helyezkedik el a Balatontól, ahonnan az épületek között a vízfelület is megcsillan. A telken található nagyméretű, idősebb fenyőfák különleges hangulatot és természetközeli környezetet biztosítanak, miközben a környék infrastruktúrája és a strand közelsége egész évben értéket képvisel.
A projekt főbb jellemzői:
mindössze 3 lakás – intim, nyugodt lakókörnyezet
modern, Bauhaus ihletésű építészeti megjelenés
nagy teraszok, privát kertek
kiváló tájolás és jól használható életterek
telken belüli gépkocsi-beállók
prémium műszaki tartalom
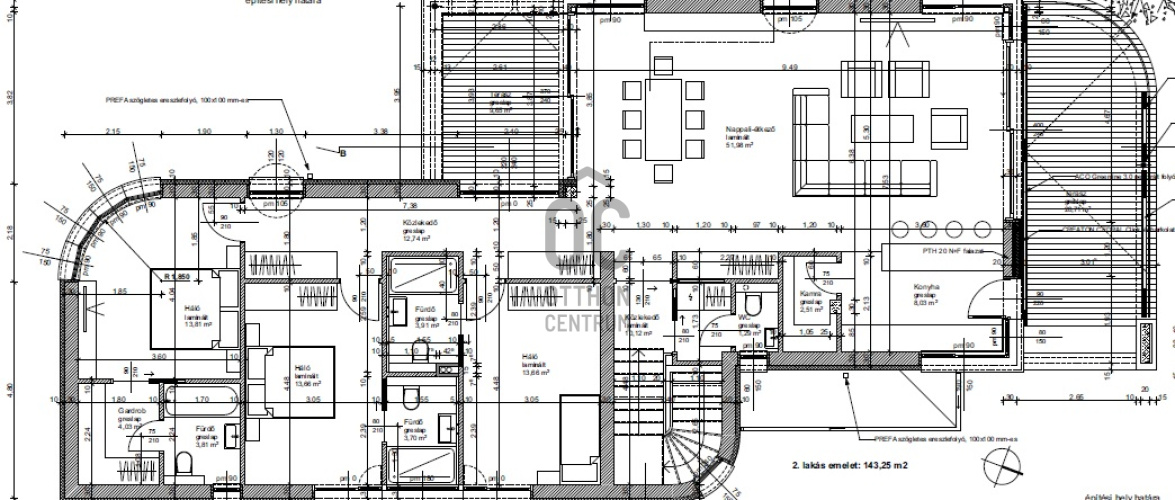
Lakások elosztása:
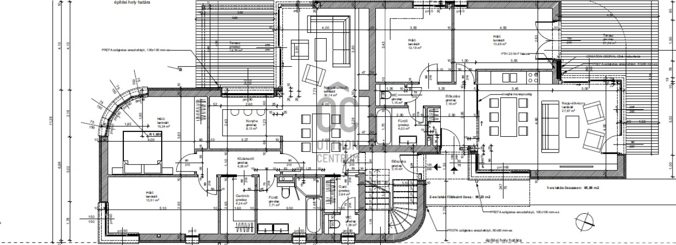
66 m²-es földszinti lakás + 24 m² terasz + saját kert (utcafront felé)
90 m²-es földszinti lakás + 14 m² terasz + privát kert (csendes hátsó kert felé)
143 m²-es emeleti penthouse lakás + 30 m² terasz, teljes emeleti szinttel
A földszinti lakások külön bejárattal rendelkeznek, hasonló méretű, privát kertekkel kialakítva, így ideális választást jelentenek akár állandó otthonnak, akár nyaralónak vagy befektetésnek.
Az épület letisztult, vakolt homlokzatát modern CEDRAL burkolati elemek teszik egyedivé. A teraszok nyitható pergolával készülnek, így minden évszakban élvezhető kültéri életteret biztosítanak.
Modern gépészet:
hőszivattyús fűtés padlófűtéssel
hőszivattyús hűtés oldalfali fan-coil rendszerrel
helyiségenként szabályozható komfort
Ez a projekt ideális azok számára, akik a Balaton közelségét, a modern építészetet és a kis lakásszám adta exkluzivitást keresik — kompromisszumok nélkül.
Ez a projekt a Balaton-parti ingatlanpiac ritka kategóriáját képviseli.
Prémium elhelyezkedés. Diszkrét elegancia. Valódi balatoni életminőség.
Siófok Aranypart – ahol az értékálló befektetés találkozik az életminőséggel.
Érdeklődés és részletes műszaki tartalom: keressen bizalommal!
Siófok egyik legkeresettebb részén, az Aranypart szívében, kínálunk egy exkluzív, mindössze háromlakásos, modern megjelenésű lakóépületet, ahol a nyugalom, a privát élettér és a balatoni életérzés tökéletes egyensúlyban találkozik.
A kiváló adottságú telek mindössze egy háztömbnyire helyezkedik el a Balatontól, ahonnan az épületek között a vízfelület is megcsillan. A telken található nagyméretű, idősebb fenyőfák különleges hangulatot és természetközeli környezetet biztosítanak, miközben a környék infrastruktúrája és a strand közelsége egész évben értéket képvisel.
A projekt főbb jellemzői:
mindössze 3 lakás – intim, nyugodt lakókörnyezet
modern, Bauhaus ihletésű építészeti megjelenés
nagy teraszok, privát kertek
kiváló tájolás és jól használható életterek
telken belüli gépkocsi-beállók
prémium műszaki tartalom
Lakások elosztása:
66 m²-es földszinti lakás + 24 m² terasz + saját kert (utcafront felé)
90 m²-es földszinti lakás + 14 m² terasz + privát kert (csendes hátsó kert felé)
143 m²-es emeleti penthouse lakás + 30 m² terasz, teljes emeleti szinttel
A földszinti lakások külön bejárattal rendelkeznek, hasonló méretű, privát kertekkel kialakítva, így ideális választást jelentenek akár állandó otthonnak, akár nyaralónak vagy befektetésnek.
Az épület letisztult, vakolt homlokzatát modern CEDRAL burkolati elemek teszik egyedivé. A teraszok nyitható pergolával készülnek, így minden évszakban élvezhető kültéri életteret biztosítanak.
Modern gépészet:
hőszivattyús fűtés padlófűtéssel
hőszivattyús hűtés oldalfali fan-coil rendszerrel
helyiségenként szabályozható komfort
Ez a projekt ideális azok számára, akik a Balaton közelségét, a modern építészetet és a kis lakásszám adta exkluzivitást keresik — kompromisszumok nélkül.
Ez a projekt a Balaton-parti ingatlanpiac ritka kategóriáját képviseli.
Prémium elhelyezkedés. Diszkrét elegancia. Valódi balatoni életminőség.
Siófok Aranypart – ahol az értékálló befektetés találkozik az életminőséggel.
Érdeklődés és részletes műszaki tartalom: keressen bizalommal!