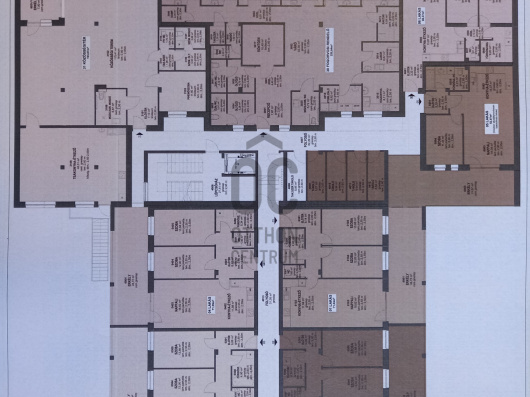
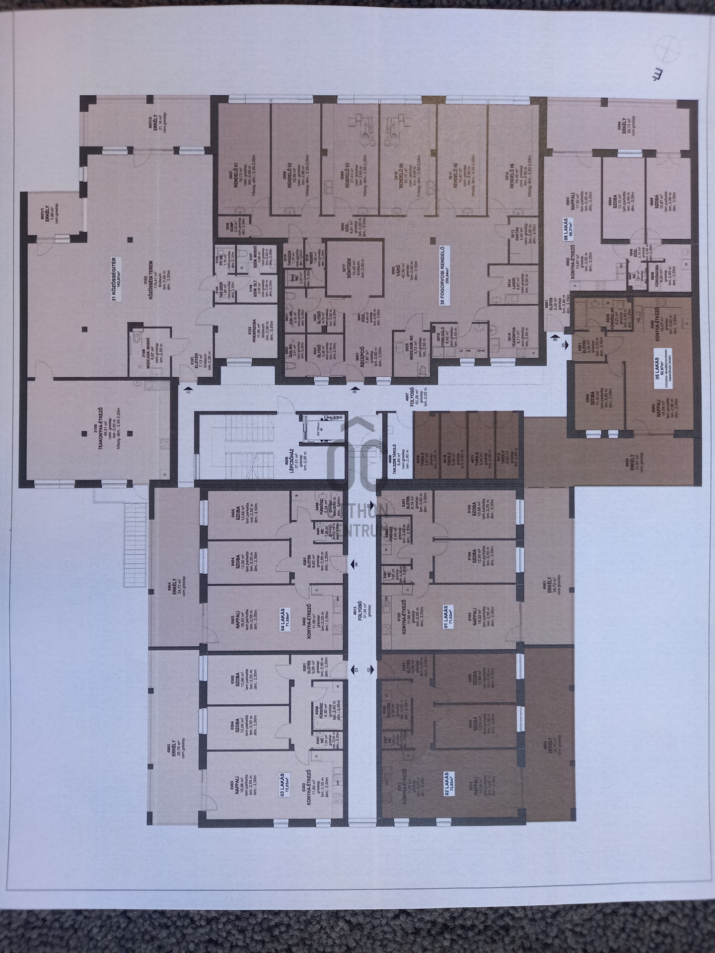
Sasfészekben lakások Veresegyház szívében.
1. Ütem, utcai szárny:
1. Emelet, 5. lakás: 52,98 m2 + 31,87 m2 erkély a bruttó ára: 99 800000 Ft. Zöld területre néző.
1. Emelet, 6. lakás: 69,37 m2 + 21,73 m2 erkély a bruttó ára: 116 000 000 Ft.
2. Emelet, 11. lakás: 52,98 m2 + 10,25 m2 erkély ára bruttó: 84 300 000 Ft. Zöld területre néző lakás.
2. Emelet, 12. lakás: 69,25 m2 + 14,73 m2 erkély a bruttó ára: 110 800 000 Ft. Árpád ház felé utcára néző nagy drága erkéllyel (valójában 22,27 m2) és toronnyal.
2. Emelet, 13. lakás: 58,73 m2 + 8,36 m2 erkély a bruttó ára: 91 200 000 Ft. Világosabb átvilágító Átriummal.
2. Emelet, 14. lakás: 61,53 m2 + 11,75 m2 erkély a bruttó ára: 97 600 000 Ft. Középső lakás + nagy átrium előtérrel.
2. Emelet, 15. lakás: 57,78 m2 + 8,75 m2 erkély a bruttó ára: 90 000 000 Ft. Középső világos lakás kis erkéllyel.
2. Emelet, 16. lakás: 57,51 m2 + 14,73 m2 nagy erkély (19,37m2 nagy tornyos drága erkély valójában) a bruttó ára: 94 000 000 Ft.
2. Emelet, 17. lakás: 65,03 m2 + 31,89 m2 a legnagyobb erkéllyel a bruttó ára: 117 000 000 Ft.
2. Ütem, udvari szárny:
Magas földszint, 1. lakás: 71,53 m2 + 24,72 m2 nagy erkély zöld területre néző lakás. 121 300 000 Ft.
Magas földszint, 2. lakás: 72,03 m2 + 26,76 m2 nagy erkély. Zöld területre néző lakás. 123 400 000 Ft.
Magas földszint, 3. lakás: 72,03 m2 + 26,76 m2 nagy erkély. Sarki világos zöld területtel fedett erkéllyel. 115 600 000 Ft.
Magas földszint, 4. lakás: 71,65 m2 + 24,72 m2 nagy fedett erkély. 113 700 000 Ft.
2. ütem udvari szárny 1. emelet:
1. Emelet, 7. lakás: 71,44 m2 + 24,19 m2 nagy erkély zöld terület, a bruttó ára: 120 700 000 Ft.
1. Emelet, 8. lakás: 71,94 m2 + 26,76 m2 nagy erkély zöld terület, ennek a bruttó ára: 123 300 000 Ft.
1. Emelet, 9. lakás: 71,93 m2 + 26,76 m2 nagy erkély ennek a bruttó ára: 115 500 000 Ft.
1. Emelet, 10. lakás: 71,56 m2 + 24,19 m2 nagy erkély ennek a bruttó ára: 113 200 000 Ft.
2. ütem udvari szárny tetőtér:
Tetőtér 18. lakás: 50,55 m2 (Valójában 63,85 m2) + 14,33 m2 erkély ennek a bruttó ára: 83 800 000 Ft.
Tetőtér 19. lakás: 55,34 m2 (Valójában 68,17 m2) + 13,94 m2 erkély (Valójában 15,78 m2) ennek a bruttó ára: 94 500 000 Ft.
Tetőtér 20. lakás: 55,34 m2 (Valójában 68,17 m2) + 13,94 m2 erkély (Valójában 15,78 m2) ennek a bruttó ára: 94 500 000 Ft.
Tetőtér 21. lakás: 50,55 m2 (Valójában 63,85 m2) + 14,33 m2 erkély ennek a bruttó ára: 83 800 000 Ft.
1. Emelet, 5. lakás: 52,98 m2 + 31,87 m2 erkély a bruttó ára: 99 800000 Ft. Zöld területre néző.
1. Emelet, 6. lakás: 69,37 m2 + 21,73 m2 erkély a bruttó ára: 116 000 000 Ft.
2. Emelet, 11. lakás: 52,98 m2 + 10,25 m2 erkély ára bruttó: 84 300 000 Ft. Zöld területre néző lakás.
2. Emelet, 12. lakás: 69,25 m2 + 14,73 m2 erkély a bruttó ára: 110 800 000 Ft. Árpád ház felé utcára néző nagy drága erkéllyel (valójában 22,27 m2) és toronnyal.
2. Emelet, 13. lakás: 58,73 m2 + 8,36 m2 erkély a bruttó ára: 91 200 000 Ft. Világosabb átvilágító Átriummal.
2. Emelet, 14. lakás: 61,53 m2 + 11,75 m2 erkély a bruttó ára: 97 600 000 Ft. Középső lakás + nagy átrium előtérrel.
2. Emelet, 15. lakás: 57,78 m2 + 8,75 m2 erkély a bruttó ára: 90 000 000 Ft. Középső világos lakás kis erkéllyel.
2. Emelet, 16. lakás: 57,51 m2 + 14,73 m2 nagy erkély (19,37m2 nagy tornyos drága erkély valójában) a bruttó ára: 94 000 000 Ft.
2. Emelet, 17. lakás: 65,03 m2 + 31,89 m2 a legnagyobb erkéllyel a bruttó ára: 117 000 000 Ft.
2. Ütem, udvari szárny:
Magas földszint, 1. lakás: 71,53 m2 + 24,72 m2 nagy erkély zöld területre néző lakás. 121 300 000 Ft.
Magas földszint, 2. lakás: 72,03 m2 + 26,76 m2 nagy erkély. Zöld területre néző lakás. 123 400 000 Ft.
Magas földszint, 3. lakás: 72,03 m2 + 26,76 m2 nagy erkély. Sarki világos zöld területtel fedett erkéllyel. 115 600 000 Ft.
Magas földszint, 4. lakás: 71,65 m2 + 24,72 m2 nagy fedett erkély. 113 700 000 Ft.
2. ütem udvari szárny 1. emelet:
1. Emelet, 7. lakás: 71,44 m2 + 24,19 m2 nagy erkély zöld terület, a bruttó ára: 120 700 000 Ft.
1. Emelet, 8. lakás: 71,94 m2 + 26,76 m2 nagy erkély zöld terület, ennek a bruttó ára: 123 300 000 Ft.
1. Emelet, 9. lakás: 71,93 m2 + 26,76 m2 nagy erkély ennek a bruttó ára: 115 500 000 Ft.
1. Emelet, 10. lakás: 71,56 m2 + 24,19 m2 nagy erkély ennek a bruttó ára: 113 200 000 Ft.
2. ütem udvari szárny tetőtér:
Tetőtér 18. lakás: 50,55 m2 (Valójában 63,85 m2) + 14,33 m2 erkély ennek a bruttó ára: 83 800 000 Ft.
Tetőtér 19. lakás: 55,34 m2 (Valójában 68,17 m2) + 13,94 m2 erkély (Valójában 15,78 m2) ennek a bruttó ára: 94 500 000 Ft.
Tetőtér 20. lakás: 55,34 m2 (Valójában 68,17 m2) + 13,94 m2 erkély (Valójában 15,78 m2) ennek a bruttó ára: 94 500 000 Ft.
Tetőtér 21. lakás: 50,55 m2 (Valójában 63,85 m2) + 14,33 m2 erkély ennek a bruttó ára: 83 800 000 Ft.




