Prémium lokáció, modern kialakítás és tökéletes be
Abádszalók a Tisza-tó mellett fekvő, nagyjából 3 800 lelket számláló település Jász-Nagykun-Szolnok megyében Tiszafüred és Szolnok között. Az alacsony lakosszám ellenére igazi turisztikai paradicsom 14 négyzetkilométeres egybefüggő vízfelületével, valamint a környék legkiépítettebb városa. Az itt pihenők, letelepedők rengeteg látnivalót és nevezetességet tekinthetnek meg a környéken. Kikötők, a strand, emlékművek, templomok, múzeum, szabadtéri néprajzi kiállítás és sok-sok más látványosság várja az érdeklődőket a számtalan vízisportolási lehetőség, horgászaton, vadászaton túl.
Az elmúlt időszak fejlesztéseinek köszönhetően megújult a strand, ahol családdal, barátokkal megtalálja mindenki a számára szimpatikus sportolási, pihenési, szórakozási vagy étkezési lehetőséget. A jachtozás szerelmesei ugyanúgy hódolhatnak a szenvedélyüknek, mint azok a tulajdonosok, akik a kerékpározást választják és körbe biciklizik a közkedvelt kerékpárúton a Tisza-tavat.
Az eladásra kínált üdülőházak csendes, nyugodt, biztonságos környezetben helyezkednek el. A telek 3 utcával kapcsolatos saroktelek. Közel a bolt, éttermek, a felújított, csúszdás abádszalóki strand a telek melletti kis hídon át érhető el. A parton lévő jacht kikötőt mind kerékpárral vagy autóval, mind gyalogosan közelítheti meg a nyaraló tulajdonosa. Abádszalók több irányból, alsóbbrendű közutakon közelíthető meg. A 4-es számú főútvonal irányából a 34-es számú másodrendű főútvonal felől (Kunhegyes érintésével) érhető el. Az M3-as autópálya irányából a nagyfügedi lehajtónál elhagyva az autópályát Hevesen és Kiskörén át, vagy szintén az M3-as autópályán a Füzesabony-Dormánd kijáratnál a 33-as számú főúton Tiszafüredig haladva, onnan egy alsóbbrendű úton (Tiszaszőlős és Tiszaderzs érintésével) közelíthető meg. Budapestről indulva, a 165 kilométeres utazás nem tesz ki 2 óránál többet.
Az épület ismertetése:
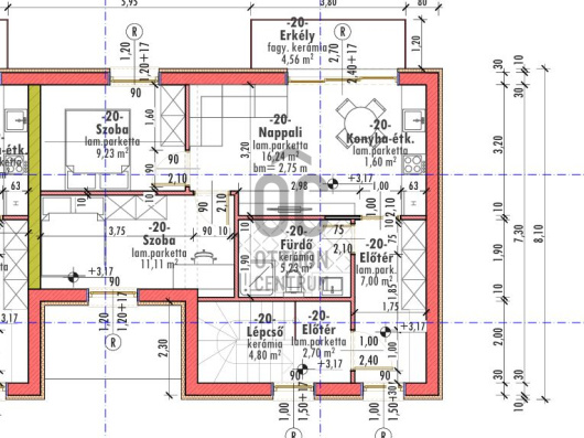
2x10 db üdülő egész évben használható, minimális energiaigénnyel üzemeltethető üdülőépület megépítését álmodta meg az építtető. Az ingatlan kiválasztásánál és a tervezés folyamán az építtető számára fontos szempont volt, hogy állandó lakhatásra is tökéletesen alkalmasak legyenek az üdülők, de befektetési célra is remek lehetőséget rejt magában a terület. Parkolási lehetőség az udvaron belül önálló térkövezett parkoló kerül kialakításra, ahová elektromosan működtethető kapukon juthatnak be az ideérkezők. Az üdülőhöz terasz vagy erkély kapcsolódik. Az épületek magas szintű műszaki tartalommal rendelkeznek, fontos volt a tervezés során, hogy az új tulajdonosok minden itt töltött percet pihenéssel, kikapcsolódással tölthessenek. Így az épületek háromrétegű külső nyílászárókat kaptak, melyhez elektronikus működtethető, hőszigetelt redőnyök is tartoznak. Az alapkoncepcióba amerikai konyhás nappali, két hálószoba és fürdőszoba tartozik. A fürdőben zuhany vagy kád, wc, kézmosó és mosógép kiállás. A kellemes hőmérsékletet távolról vezérelhető hűtő-fűtő klíma biztosítja. Helyiségenként elektromos fűtőpanel vagy elektromos padlófűtés kérhető opcionálisan. A melegvizet villanybojler biztosítja. A riasztó vezetékelése az alapár tartalmazza a szerelvények opcionálisan kérhető.
Az építtető célja, hogy a vevők maximálisan a pihenésnek szentelhessék az itt töltött időt, így a házak üzemeltetésére helyi gondnokot, karbantartót biztosít külön szerződés keretében, akivel üzemeltetésre, bérbeadásra, fűnyírás, takarítás céljából leszerződhetnek a vevők.
Műszaki tartalom:
- Alapozás: Vasbeton sávalap
- Flazat:
30 cm vastag téglafal
10 cm vastag homlokzati szigetelés
10 cm vastag tégla válaszfalak
- Hangszigetelés: 30 cm vastag hangátló fal a két épület közötti élválasztásnál
- Tetőszerkezet: Szeglemezes tető szerkezet
Cserépfedés: Terrán Zenit Max gesztenyebarna színben
- Födém: 25 cm vastag szigetelés
Kiegészítő műszaki tartalom:
- Elektromos kapu és kaputelefon biztosítja a könnyű belépést.
- Térkövezett út és parkoló biztosítja az autókkal való kényelmes parkolást.
- Minden üdülőhöz terasz vagy erkély tartozik, mely kényelmes kültéri pihenést biztosít.
- Elektromos hőszigetelt alumínium redőny és szúnyogháló az ablakokon a komfortos árnyékolás és szúnyogmentes környezet érdekében.
-Elektromos padlófűtés a fürdőszobában a meleg talaj és kellemes fürdőszobai környezet érdekében.
- Hőszivattyús, 3,5 kW hűtő-fűtő klíma távolról vezérelhető, biztosítva a kényelmes hőmérsékletet bármely évszakban.
- Riasztó rendszer bevezetékelve, a biztonság növelésére.
- 3 rétegű, magas minőségű műanyag nyílászárók kívül színes, belül fehér kivitelben.
- Beépített WC tartály a modern és esztétikus fürdőszobákhoz.
- Villanybojler 120L biztosítja a meleg víz ellátást.
- 3 fázisú elektromos hálózat biztosítja a megfelelő energiaellátást.
Értékesítés és információ:
Szabó Ferenc
szabo.ferenc@oc.hu
+36 70 412 3941
Az elmúlt időszak fejlesztéseinek köszönhetően megújult a strand, ahol családdal, barátokkal megtalálja mindenki a számára szimpatikus sportolási, pihenési, szórakozási vagy étkezési lehetőséget. A jachtozás szerelmesei ugyanúgy hódolhatnak a szenvedélyüknek, mint azok a tulajdonosok, akik a kerékpározást választják és körbe biciklizik a közkedvelt kerékpárúton a Tisza-tavat.
Az eladásra kínált üdülőházak csendes, nyugodt, biztonságos környezetben helyezkednek el. A telek 3 utcával kapcsolatos saroktelek. Közel a bolt, éttermek, a felújított, csúszdás abádszalóki strand a telek melletti kis hídon át érhető el. A parton lévő jacht kikötőt mind kerékpárral vagy autóval, mind gyalogosan közelítheti meg a nyaraló tulajdonosa. Abádszalók több irányból, alsóbbrendű közutakon közelíthető meg. A 4-es számú főútvonal irányából a 34-es számú másodrendű főútvonal felől (Kunhegyes érintésével) érhető el. Az M3-as autópálya irányából a nagyfügedi lehajtónál elhagyva az autópályát Hevesen és Kiskörén át, vagy szintén az M3-as autópályán a Füzesabony-Dormánd kijáratnál a 33-as számú főúton Tiszafüredig haladva, onnan egy alsóbbrendű úton (Tiszaszőlős és Tiszaderzs érintésével) közelíthető meg. Budapestről indulva, a 165 kilométeres utazás nem tesz ki 2 óránál többet.
Az épület ismertetése:
2x10 db üdülő egész évben használható, minimális energiaigénnyel üzemeltethető üdülőépület megépítését álmodta meg az építtető. Az ingatlan kiválasztásánál és a tervezés folyamán az építtető számára fontos szempont volt, hogy állandó lakhatásra is tökéletesen alkalmasak legyenek az üdülők, de befektetési célra is remek lehetőséget rejt magában a terület. Parkolási lehetőség az udvaron belül önálló térkövezett parkoló kerül kialakításra, ahová elektromosan működtethető kapukon juthatnak be az ideérkezők. Az üdülőhöz terasz vagy erkély kapcsolódik. Az épületek magas szintű műszaki tartalommal rendelkeznek, fontos volt a tervezés során, hogy az új tulajdonosok minden itt töltött percet pihenéssel, kikapcsolódással tölthessenek. Így az épületek háromrétegű külső nyílászárókat kaptak, melyhez elektronikus működtethető, hőszigetelt redőnyök is tartoznak. Az alapkoncepcióba amerikai konyhás nappali, két hálószoba és fürdőszoba tartozik. A fürdőben zuhany vagy kád, wc, kézmosó és mosógép kiállás. A kellemes hőmérsékletet távolról vezérelhető hűtő-fűtő klíma biztosítja. Helyiségenként elektromos fűtőpanel vagy elektromos padlófűtés kérhető opcionálisan. A melegvizet villanybojler biztosítja. A riasztó vezetékelése az alapár tartalmazza a szerelvények opcionálisan kérhető.
Az építtető célja, hogy a vevők maximálisan a pihenésnek szentelhessék az itt töltött időt, így a házak üzemeltetésére helyi gondnokot, karbantartót biztosít külön szerződés keretében, akivel üzemeltetésre, bérbeadásra, fűnyírás, takarítás céljából leszerződhetnek a vevők.
Műszaki tartalom:
- Alapozás: Vasbeton sávalap
- Flazat:
30 cm vastag téglafal
10 cm vastag homlokzati szigetelés
10 cm vastag tégla válaszfalak
- Hangszigetelés: 30 cm vastag hangátló fal a két épület közötti élválasztásnál
- Tetőszerkezet: Szeglemezes tető szerkezet
Cserépfedés: Terrán Zenit Max gesztenyebarna színben
- Födém: 25 cm vastag szigetelés
Kiegészítő műszaki tartalom:
- Elektromos kapu és kaputelefon biztosítja a könnyű belépést.
- Térkövezett út és parkoló biztosítja az autókkal való kényelmes parkolást.
- Minden üdülőhöz terasz vagy erkély tartozik, mely kényelmes kültéri pihenést biztosít.
- Elektromos hőszigetelt alumínium redőny és szúnyogháló az ablakokon a komfortos árnyékolás és szúnyogmentes környezet érdekében.
-Elektromos padlófűtés a fürdőszobában a meleg talaj és kellemes fürdőszobai környezet érdekében.
- Hőszivattyús, 3,5 kW hűtő-fűtő klíma távolról vezérelhető, biztosítva a kényelmes hőmérsékletet bármely évszakban.
- Riasztó rendszer bevezetékelve, a biztonság növelésére.
- 3 rétegű, magas minőségű műanyag nyílászárók kívül színes, belül fehér kivitelben.
- Beépített WC tartály a modern és esztétikus fürdőszobákhoz.
- Villanybojler 120L biztosítja a meleg víz ellátást.
- 3 fázisú elektromos hálózat biztosítja a megfelelő energiaellátást.
Értékesítés és információ:
Szabó Ferenc
szabo.ferenc@oc.hu
+36 70 412 3941










