Újépítésü ikerház Sárváron
Az ingatlanpiac egyik kiemelkedő ajánlatával szeretném megismertetni Önöket, amely ideális választás családosok számára.
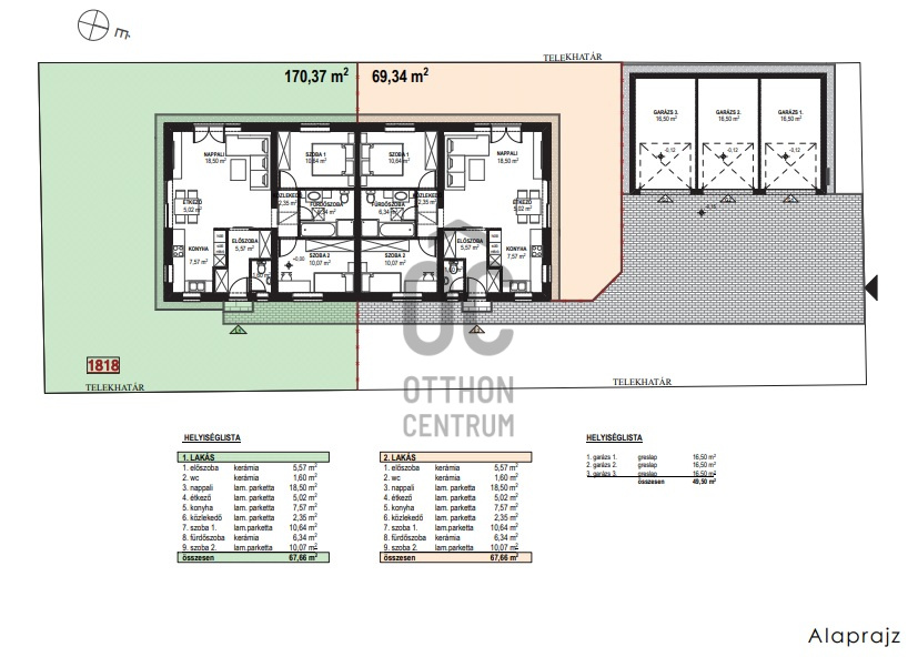
A modern, minden igényt kielégítő ikerház építése Sárvár kertvárosi részén, a belvárostól csupán néhány perc sétára, mégis csendes, zöld környezetben valósul meg. Az új építésű, kiváló állapotú 68 m²-es alapterülettel rendelkező lakások kertkapcsolattal rendelkeznek, így tökéletesen alkalmasak a családi életre. Az ingatlanok a nappalin kívül 2 hálószobával, és a fürdőszobán kívül még külön toalettel várják új lakóikat. Az amerikai konyhás elrendezés lehetővé teszi a közös időtöltést a családtagokkal, miközben a kertkapcsolatos lakás előnyei lehetőséget biztosítanak a szabadban való pihenésre és játékra. A nappaliból nyíló tágas terasz is a közös együttlét helyszíne lehet. A burkolatok kiválasztása még Önre vár, így olyan otthont álmodhat meg magának, ami teljesen Ön és családja ízlés és színvilágát tükrözi. Bizonyára értékelni fogják a prémium kivitelezést és a motoros redőnyök nyújtotta kényelmet. A hőszivattyús fűtés fenntartható és gazdaságos megoldás, amely hozzájárul az ingatlanok alacsony rezsiköltségeihez, így Önnek nemcsak egy otthont, hanem egy hosszú távú befektetést is kínálunk. A környék csendes, kertvárosi jellegű, az utca átmenőforgalomtól mentes, ideális környezetet biztosít a családok számára. Közlekedés szempontjából is kiváló elhelyezkedéssel bír. A város központja könnyen elérhető gyalog vagy autóval, de a tömegközlekedési lehetőségek is széleskörűek, így a mindennapi ingázás nem jelent problémát. Ideális választás lehet azok számára is, akik a város forgatagában szeretnének élni, de értékelik a nyugodt, családias környezetet. Ezek az exkluzív, modern ingatlanok nem csupán lakóhelyek, hanem egy életstílus megtestesítői, amelyekben a család minden tagja megtalálja a számításait.
Az ingatlanokhoz tartozik egy-egy kocsibeálló, de opcionálisan garázs is vásárolható!
Bízom benne, hogy felkeltettem érdeklődését, és örömmel várom kérdéseit, hogy további részletekkel szolgálhassak Önnek. A megtekintés során megtapasztalhatja a helyszín varázsát és az ingatlanok által kínált lehetőségeket. Kérem, ne habozzon kapcsolatba lépni velem, hiszen a legjobb ajánlatokért érdemes időben cselekedni!
Hitelre van szüksége?
Az Otthon Centrum az ország egyik legnagyobb és legmegbízhatóbb hitelközvetítőjeként, teljes körű és díjmentes hitel ügyintézéssel, biztosításkötéssel áll rendelkezésére! Kérje személyre szabott ajánlatunkat Kollégáinktól!
Válassza ki az Önnek legmegfelelőbbet!
A modern, minden igényt kielégítő ikerház építése Sárvár kertvárosi részén, a belvárostól csupán néhány perc sétára, mégis csendes, zöld környezetben valósul meg. Az új építésű, kiváló állapotú 68 m²-es alapterülettel rendelkező lakások kertkapcsolattal rendelkeznek, így tökéletesen alkalmasak a családi életre. Az ingatlanok a nappalin kívül 2 hálószobával, és a fürdőszobán kívül még külön toalettel várják új lakóikat. Az amerikai konyhás elrendezés lehetővé teszi a közös időtöltést a családtagokkal, miközben a kertkapcsolatos lakás előnyei lehetőséget biztosítanak a szabadban való pihenésre és játékra. A nappaliból nyíló tágas terasz is a közös együttlét helyszíne lehet. A burkolatok kiválasztása még Önre vár, így olyan otthont álmodhat meg magának, ami teljesen Ön és családja ízlés és színvilágát tükrözi. Bizonyára értékelni fogják a prémium kivitelezést és a motoros redőnyök nyújtotta kényelmet. A hőszivattyús fűtés fenntartható és gazdaságos megoldás, amely hozzájárul az ingatlanok alacsony rezsiköltségeihez, így Önnek nemcsak egy otthont, hanem egy hosszú távú befektetést is kínálunk. A környék csendes, kertvárosi jellegű, az utca átmenőforgalomtól mentes, ideális környezetet biztosít a családok számára. Közlekedés szempontjából is kiváló elhelyezkedéssel bír. A város központja könnyen elérhető gyalog vagy autóval, de a tömegközlekedési lehetőségek is széleskörűek, így a mindennapi ingázás nem jelent problémát. Ideális választás lehet azok számára is, akik a város forgatagában szeretnének élni, de értékelik a nyugodt, családias környezetet. Ezek az exkluzív, modern ingatlanok nem csupán lakóhelyek, hanem egy életstílus megtestesítői, amelyekben a család minden tagja megtalálja a számításait.
Az ingatlanokhoz tartozik egy-egy kocsibeálló, de opcionálisan garázs is vásárolható!
Bízom benne, hogy felkeltettem érdeklődését, és örömmel várom kérdéseit, hogy további részletekkel szolgálhassak Önnek. A megtekintés során megtapasztalhatja a helyszín varázsát és az ingatlanok által kínált lehetőségeket. Kérem, ne habozzon kapcsolatba lépni velem, hiszen a legjobb ajánlatokért érdemes időben cselekedni!
Hitelre van szüksége?
Az Otthon Centrum az ország egyik legnagyobb és legmegbízhatóbb hitelközvetítőjeként, teljes körű és díjmentes hitel ügyintézéssel, biztosításkötéssel áll rendelkezésére! Kérje személyre szabott ajánlatunkat Kollégáinktól!
Válassza ki az Önnek legmegfelelőbbet!