Kőszegen új,tégla építésű családi házak eladók
Kőszegen új, tégla építésű családi házak eladók az Alsó körúton. Az ingatlanok minőségi alapanyagok felhasználásával, jelenlegi előírások betartásával épülnek.
BB energetikai besorolásnak megfelelnek . A lakóingatlan okos tégla építésű, 10 cmes grafitos nikecellel szigetelt, lapostető kivitelű, 3 légkamrás műanyag nyílászáróval kerülnek kialakításra.
2 lakóház épül egy telekre: egy ikerház stílus kivitelezésével ,egy önálló családi ház.
Hasznos alapterületek:
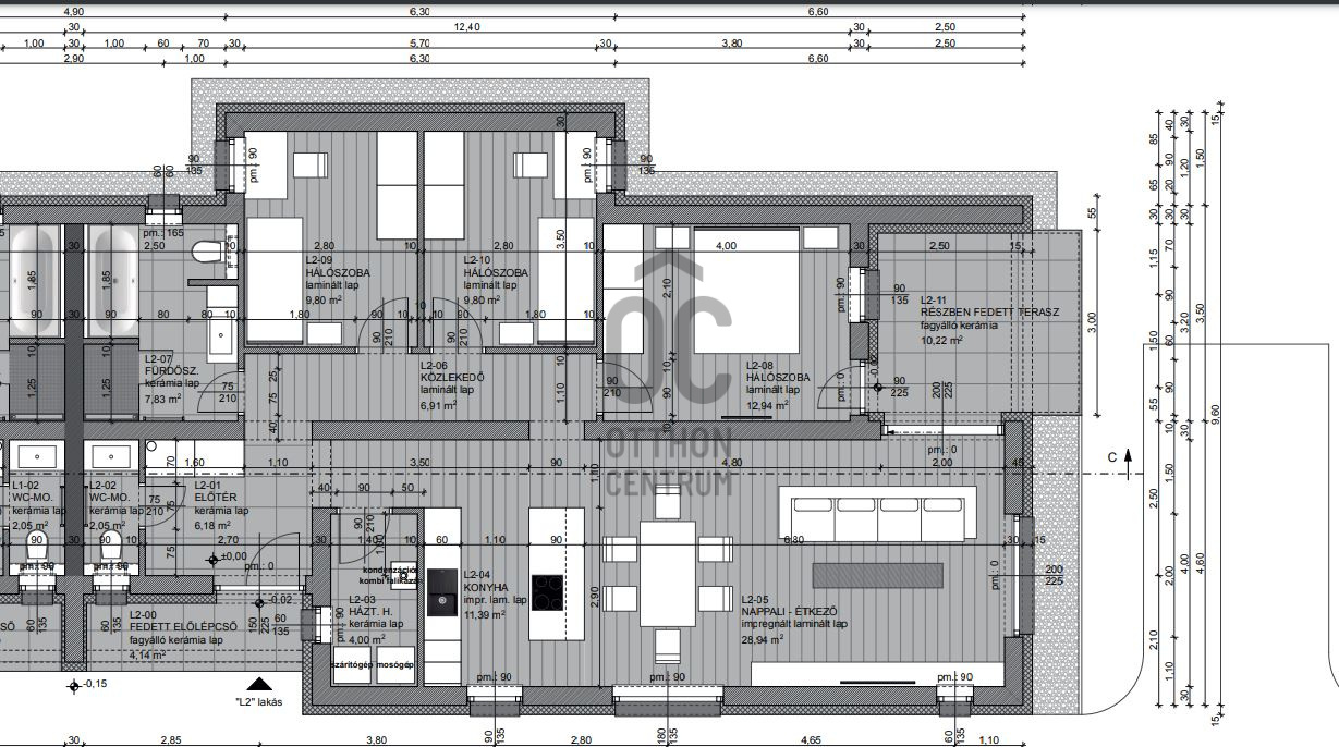
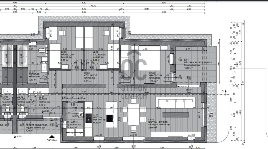
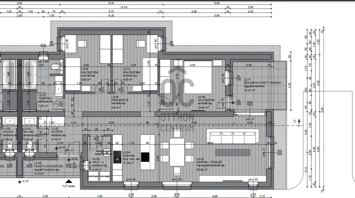
Az ingatlan elosztása földszint: terasz, 3 hálószoba+nappali-konyha-étkező+kamra,zuhanyzó-wc, közlekedő.
A szobák laminált lappal borítottan a többi helyiség kerámia lappal illetve impregnált laminált padló burkolattal tervezettek.
A hálószobák 10-14 nm-esek átlagosan, nappali mérete kb. 25 nm.
Kulcsátadás várhatóan 2024, augusztus, Az ingatlanok 20% önrésszel foglalhatók.
Jelenlegi készültséget a hirdetéshez kapcsolt fotók mutatják. A kivitelező leinformálható, több igényes referencia munkával rendelkezik.
Hitelre van szüksége? Az Otthon Centrum az ország egyik legnagyobb és legmegbízhatóbb hitelközvetítőjeként, teljes körű és díjmentes hitel ügyintézéssel, biztosításkötéssel áll rendelkezésére! Kérje személyre szabott ajánlatunkat Kollégáinktól!
Válassza ki az Önnek legmegfelelőbbet!
BB energetikai besorolásnak megfelelnek . A lakóingatlan okos tégla építésű, 10 cmes grafitos nikecellel szigetelt, lapostető kivitelű, 3 légkamrás műanyag nyílászáróval kerülnek kialakításra.
2 lakóház épül egy telekre: egy ikerház stílus kivitelezésével ,egy önálló családi ház.
Hasznos alapterületek:
Az ingatlan elosztása földszint: terasz, 3 hálószoba+nappali-konyha-étkező+kamra,zuhanyzó-wc, közlekedő.
A szobák laminált lappal borítottan a többi helyiség kerámia lappal illetve impregnált laminált padló burkolattal tervezettek.
A hálószobák 10-14 nm-esek átlagosan, nappali mérete kb. 25 nm.
Kulcsátadás várhatóan 2024, augusztus, Az ingatlanok 20% önrésszel foglalhatók.
Jelenlegi készültséget a hirdetéshez kapcsolt fotók mutatják. A kivitelező leinformálható, több igényes referencia munkával rendelkezik.
Hitelre van szüksége? Az Otthon Centrum az ország egyik legnagyobb és legmegbízhatóbb hitelközvetítőjeként, teljes körű és díjmentes hitel ügyintézéssel, biztosításkötéssel áll rendelkezésére! Kérje személyre szabott ajánlatunkat Kollégáinktól!
Válassza ki az Önnek legmegfelelőbbet!