69,900,000 Ft
196,000 €
- 185m²
Investment opportunity in the center of Gyöngyös – an apartment and a functioning business in one property!
In the city center of Gyöngyös, close to the main square, we offer for sale an excellent two-story, 185 m² row house that includes both business and residential functions.
The property has a small inner courtyard, a basement, and a convertible attic, providing additional expansion opportunities.
**Ground Floor – Commercial Space** Currently, there is an operational eye examination salon on the street front, which offers stable business utilization.
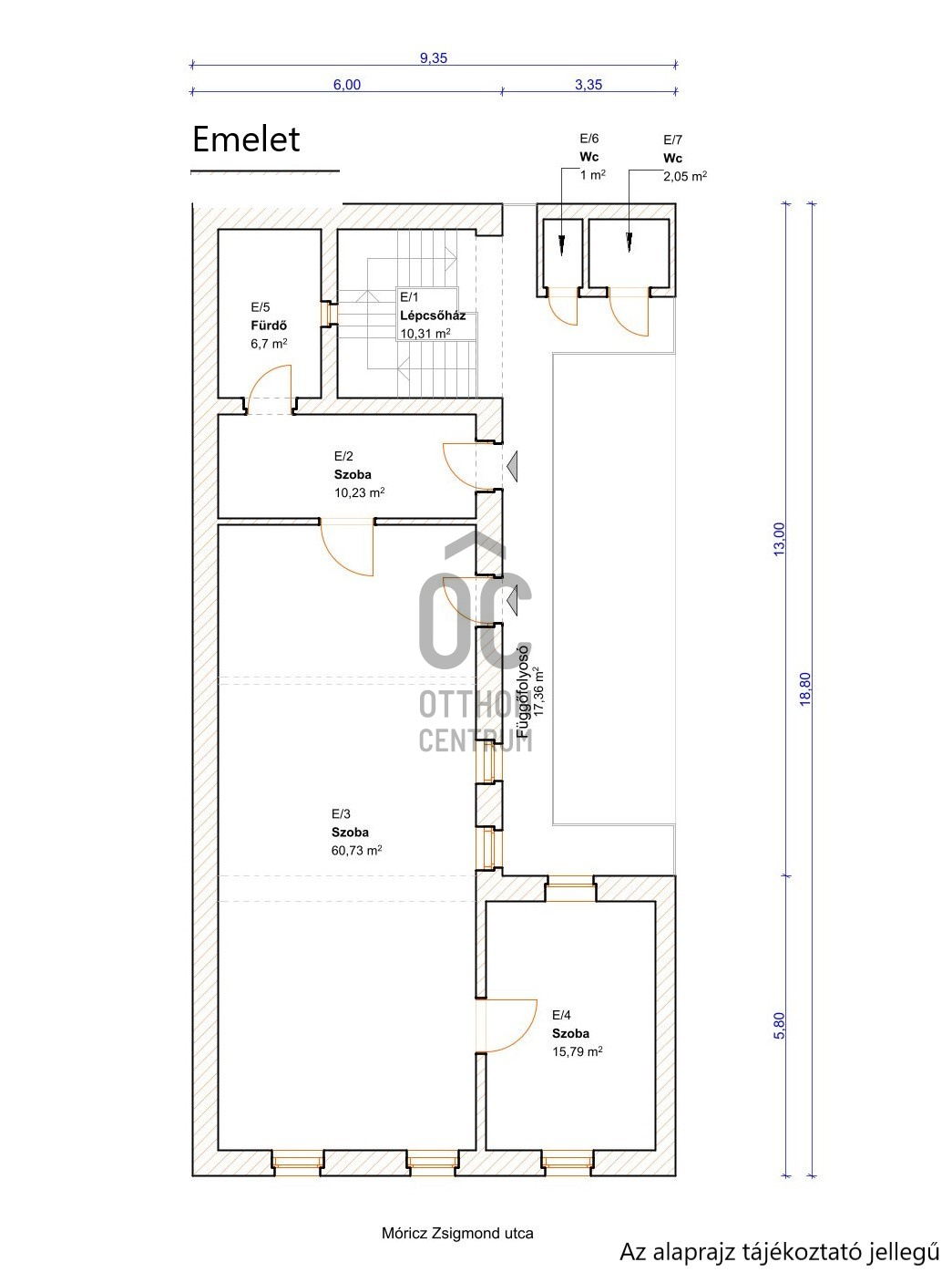
**First Floor – Apartment (92 m²)**
The apartment can be accessed via a covered balcony and features particularly bright, sunny spaces:
- Spacious, 60 m² open-plan living room with kitchen
- 15 m² bedroom - An additional room within the apartment
- 6.7 m² bathroom with shower
**Additional Advantages**
- Convertible attic
- Basement beneath the building
- Small, intimate inner courtyard
- Excellent downtown location
The property is primarily ideal for investors, as the combined use of the business and apartment provides multiple income opportunities.
Don't miss out on this rare investment opportunity in the city center; feel free to call and schedule a viewing!
The information in the advertisement is based on data provided by the owners.
The energy certificate for the property is currently being prepared.
The property has a small inner courtyard, a basement, and a convertible attic, providing additional expansion opportunities.
**Ground Floor – Commercial Space** Currently, there is an operational eye examination salon on the street front, which offers stable business utilization.
**First Floor – Apartment (92 m²)**
The apartment can be accessed via a covered balcony and features particularly bright, sunny spaces:
- Spacious, 60 m² open-plan living room with kitchen
- 15 m² bedroom - An additional room within the apartment
- 6.7 m² bathroom with shower
**Additional Advantages**
- Convertible attic
- Basement beneath the building
- Small, intimate inner courtyard
- Excellent downtown location
The property is primarily ideal for investors, as the combined use of the business and apartment provides multiple income opportunities.
Don't miss out on this rare investment opportunity in the city center; feel free to call and schedule a viewing!
The information in the advertisement is based on data provided by the owners.
The energy certificate for the property is currently being prepared.
Registration Number
UZ019614
Property Details
Sales
for sale
Legal Status
used
Character
commercial
Type of Business Property
entire building
Construction Method
other
Net Size
185 m²
Plot Size
281 m²
Above-Ground Net Size
185 m²
Heating
Gas circulator
Ceiling Height
300 cm
Number of Levels Within the Property
1
View
city view
Condition
Average
Condition of Facade
Average
Water
Available
Gas
Available
Electricity
Available
Sewer
Available
Possible Functions
retail, hospitality unit, industrial hall or warehouse, healthcare center, educational center, rental building
Visibility
Easily visible from busy main road
Accessibility
Entrance from busy main road
Utilization
rented out
Monthly Rental Fee
250000
Pampuk Rita
Credit Expert