33,000,000 Ft
86,000 €
- 1,056m²
Fedezze fel a lehetőséget Mecseknádasdon - ideális üzleti ingatlan vár Önre!
Mecseknádasd a Kelet-Mecsek Tájvédelmi Körzet határán, festői fekvésű völgyben fekszik ahol is joggal viseli a „Keleti-Mecsek kapuja” nevet. Az évszázadokra visszanyúló történelmi, kulturális és mezőgazdasági hagyományokkal rendelkező település egyik fő működési területe a borászat. E tevékenységhez építették a most eladósorba került épületegyüttest is.
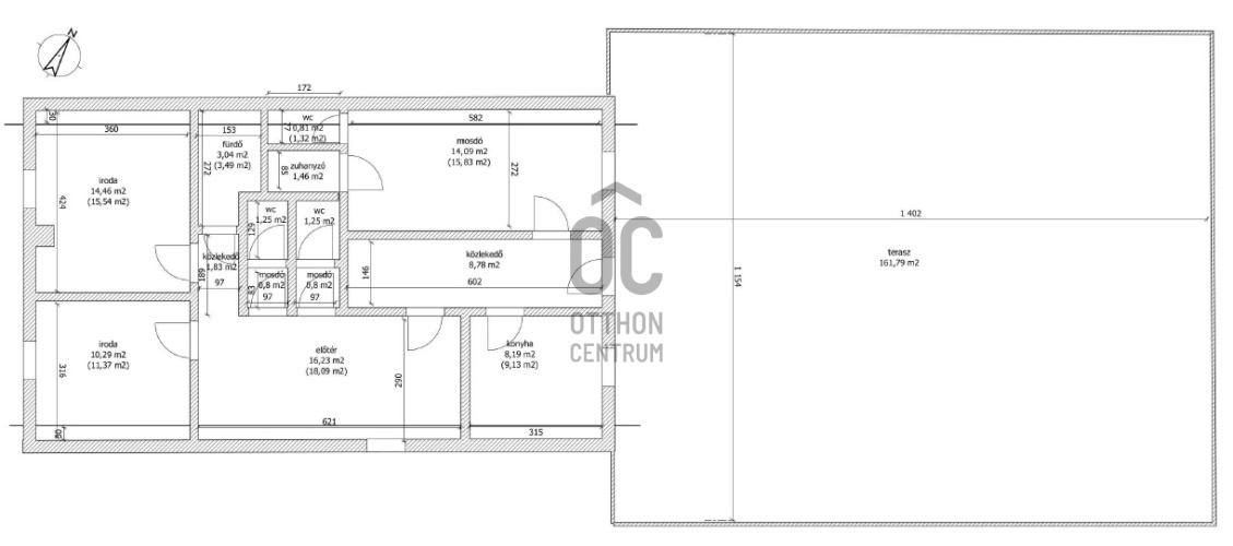
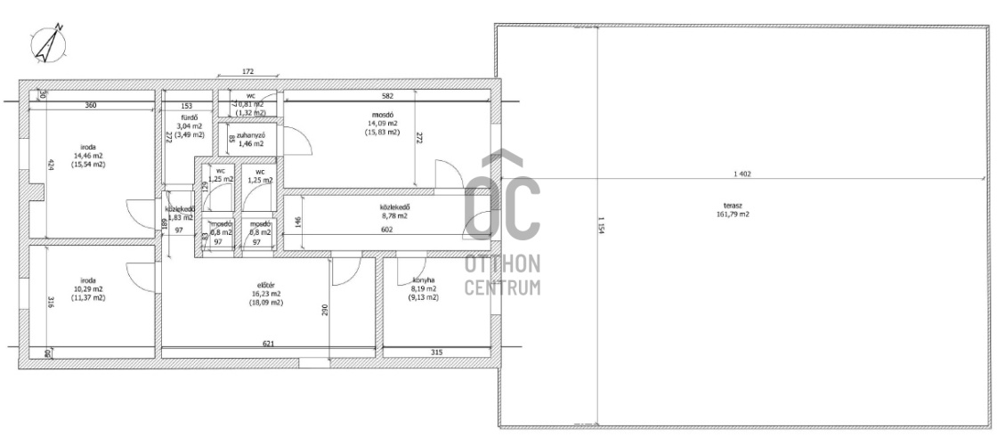
A telken két különálló épület található, melyek a 2000-es években épültek fszt+tetőtér elrendezésben.
Az „A” jelű épület földszintje a Virág utcán kialakított parkolóval egy szinten helyezkedik el, majd a terep lejtése kapcsán pinceszintté válik.
Alapterülete a tulajdoni lap szerint: 317 m2. Alaprajzi kialakítása a technológiának megfelelően nagy alapterületű helyiségekből áll, ahonnan a gépészeti/technológiai berendezések kiszerelésre kerültek.
Az előzőeken túl itt található az egész épület fűtését és melegvíz ellátását biztosító gázkazán, valamint öltöző a hozzá kapcsolódó szociális helyiségekkel együtt.
Padozata mettlachi, illetve kerámia lapburkolat, az oldalfalakon a padlóburkolattal egyezően csempézettek, illetve festettek, a mennyezet pedig gipszkarton/OSB borítású.
Fűtés a borpalackozóban elhelyezett gázkazánról működő központi fűtés radiátoros hőleadással, a melegvíz is nevezett szintről biztosított.
A „B” jelű épületben helyezkednek el a raktár és kiszolgáló helyiségek.
A telek területe 2155nm
A felépítmény összesen:1056nm
Telekadó: Adóköteles 53nm, egységár 600Ft/nm
Az ingatlan vételára: 33.000.000Ft
A telken két különálló épület található, melyek a 2000-es években épültek fszt+tetőtér elrendezésben.
Az „A” jelű épület földszintje a Virág utcán kialakított parkolóval egy szinten helyezkedik el, majd a terep lejtése kapcsán pinceszintté válik.
Alapterülete a tulajdoni lap szerint: 317 m2. Alaprajzi kialakítása a technológiának megfelelően nagy alapterületű helyiségekből áll, ahonnan a gépészeti/technológiai berendezések kiszerelésre kerültek.
Az előzőeken túl itt található az egész épület fűtését és melegvíz ellátását biztosító gázkazán, valamint öltöző a hozzá kapcsolódó szociális helyiségekkel együtt.
Padozata mettlachi, illetve kerámia lapburkolat, az oldalfalakon a padlóburkolattal egyezően csempézettek, illetve festettek, a mennyezet pedig gipszkarton/OSB borítású.
Fűtés a borpalackozóban elhelyezett gázkazánról működő központi fűtés radiátoros hőleadással, a melegvíz is nevezett szintről biztosított.
A „B” jelű épületben helyezkednek el a raktár és kiszolgáló helyiségek.
A telek területe 2155nm
A felépítmény összesen:1056nm
Telekadó: Adóköteles 53nm, egységár 600Ft/nm
Az ingatlan vételára: 33.000.000Ft
Registration Number
UZ019294
Property Details
Sales
for sale
Legal Status
used
Character
commercial
Type of Business Property
entire building
Construction Method
brick
Net Size
1,056 m²
Plot Size
2,155 m²
Above-Ground Net Size
1,056 m²
Ceiling Height
300 cm
Number of Levels Within the Property
2
Condition
To be renovated
Condition of Facade
Below average
Water
Available
Gas
On the street
Electricity
Available
Sewer
Available
Utilization
vacant
Vitéz Kornél
Credit Expert