415,000,000 Ft
1,060,000 €
- 251m²
Egyedülálló, többfunkciós új építésű projekt Debrecenben
Debrecen egyik legforgalmasabb csomópontjához közel, mégis egy csendes, ősfás utcában kínálok megvételre egy különleges új építésű ingatlant.
Egyben eladó, amely társasházként (2 lakás, 1 iroda, 3 garázs) készül, de kialakítása miatt számos üzleti és befektetési koncepcióra továbbgondolható.
Az épület 95%-os készültségi állapotban van, a belső burkolatok és ajtók az új tulajdonos igényei szerint fejezhető be – ez óriási előnyt jelent mind funkcióban, mind arculatban.
A projekt lényege és ereje:
- 3 szint, mindegyik önálló funkcióval
- modern, minimál stílus, kiemelkedő energetikai megoldások
- külön albetétek (1 iroda, 2 lakás, 3 garázs)
- nagy üvegfelületek, prémium nyílászárók
- tágas teraszok, kivételes fényviszonyok
- hőszivattyús fűtés-hűtés, padló- és mennyezet temperálás
Miért különleges?
Mert ritka Debrecenben olyan új építésű ingatlan, amely:
- vállalkozásra, szolgáltatásra és lakhatásra egyszerre alkalmas,
- belváros-közeli, mégis nyugodt utcában található,
- társasházként is megtartható, de
- komplex projektté, saját üzleti központtá, magánklinikává vagy szálláshellyé is átalakítható.
Lehetséges hasznosítások (nem teljes lista):
* magánklinika / egészségügyi központ
* prémium irodaház, 20–25 munkaállomással
* cégközpont / székhely
* rövid- vagy hosszútávú szálláshely (akár 20 főig)
* szépségipari szolgáltató központ
* többgenerációs családi ház
* vagy a társasházi struktúra megtartásával: továbbértékesítés, bérbeadás.
Lokáció – a projekt egyik legnagyobb értéke
Az ingatlan 10 perc sétára van a belvárostól, kórház, bevásárlóközpont, éttermek, benzinkút, buszmegálló és egy rendezett angolkert közvetlen közelében.
Ez a pozíció Debrecenben meghatározó előnyt jelent mind befektetési értékben, mind kihasználhatóságban.
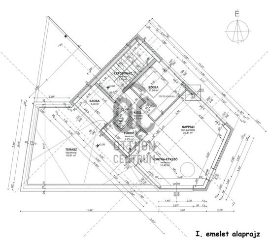
Főbb műszaki paraméterek (röviden):
- bruttó ~320 m² összterület
- több mint 40 m²-es prémium terasz
- 3 állásos teremgarázs
- porotherm falazat, 15 cm szigeteléssel
- prémium alumínium nyílászárók, 3 rétegű üvegezéssel
- energiahatékony hőszivattyús rendszer
- tetőtérben extra PIR + fújt purhab szigetelés.
„Ez az ingatlan nem csupán egy projekt – hanem egy stratégiai előny, amit most lehet megszerezni.”
Egyben eladó, amely társasházként (2 lakás, 1 iroda, 3 garázs) készül, de kialakítása miatt számos üzleti és befektetési koncepcióra továbbgondolható.
Az épület 95%-os készültségi állapotban van, a belső burkolatok és ajtók az új tulajdonos igényei szerint fejezhető be – ez óriási előnyt jelent mind funkcióban, mind arculatban.
A projekt lényege és ereje:
- 3 szint, mindegyik önálló funkcióval
- modern, minimál stílus, kiemelkedő energetikai megoldások
- külön albetétek (1 iroda, 2 lakás, 3 garázs)
- nagy üvegfelületek, prémium nyílászárók
- tágas teraszok, kivételes fényviszonyok
- hőszivattyús fűtés-hűtés, padló- és mennyezet temperálás
Miért különleges?
Mert ritka Debrecenben olyan új építésű ingatlan, amely:
- vállalkozásra, szolgáltatásra és lakhatásra egyszerre alkalmas,
- belváros-közeli, mégis nyugodt utcában található,
- társasházként is megtartható, de
- komplex projektté, saját üzleti központtá, magánklinikává vagy szálláshellyé is átalakítható.
Lehetséges hasznosítások (nem teljes lista):
* magánklinika / egészségügyi központ
* prémium irodaház, 20–25 munkaállomással
* cégközpont / székhely
* rövid- vagy hosszútávú szálláshely (akár 20 főig)
* szépségipari szolgáltató központ
* többgenerációs családi ház
* vagy a társasházi struktúra megtartásával: továbbértékesítés, bérbeadás.
Lokáció – a projekt egyik legnagyobb értéke
Az ingatlan 10 perc sétára van a belvárostól, kórház, bevásárlóközpont, éttermek, benzinkút, buszmegálló és egy rendezett angolkert közvetlen közelében.
Ez a pozíció Debrecenben meghatározó előnyt jelent mind befektetési értékben, mind kihasználhatóságban.
Főbb műszaki paraméterek (röviden):
- bruttó ~320 m² összterület
- több mint 40 m²-es prémium terasz
- 3 állásos teremgarázs
- porotherm falazat, 15 cm szigeteléssel
- prémium alumínium nyílászárók, 3 rétegű üvegezéssel
- energiahatékony hőszivattyús rendszer
- tetőtérben extra PIR + fújt purhab szigetelés.
„Ez az ingatlan nem csupán egy projekt – hanem egy stratégiai előny, amit most lehet megszerezni.”
Registration Number
UZ019214
Property Details
Sales
for sale
Legal Status
new
Character
commercial
Type of Business Property
entire building
Construction Method
brick
Net Size
251 m²
Plot Size
190 m²
Size of Terrace / Balcony
51 m²
Above-Ground Net Size
320 m²
Heating
heat pump
Ceiling Height
265 cm
Number of Levels Within the Property
2
Condition
Excellent
Condition of Facade
Excellent
Year of Construction
2025
Garage Spaces
3
Water
Available
Electricity
Available
Sewer
Available
Possible Functions
standalone office building, office, office and showroom or shop, office and warehouse, showroom, showroom and service or warehouse, logistics center, guesthouse, hostel, healthcare center, educational center, values.realestate.lehetsegesFunkcio.2097152, standalone office building
Visibility
Easily visible from busy main road
Accessibility
Entrance from busy main road
Utilization
vacant
Czellér András
Credit Expert