8,358,336 Ft
21,600 €
- 3,375m²
LOGISTICS CENTER FOR RENT IN ALSÓNÉMEDI!
Alsónémedi is located in the southern agglomeration of Budapest. It is recognized as one of the key logistics and industrial hubs of Pest County. Hungary’s largest and most advanced logistics area is the southern section of the M0 motorway, as it provides access to all major highways in the country while bypassing Budapest. In recent years, major developments have taken place in this region, and companies carrying out smaller manufacturing and production investments in the Budapest area continue to prefer this location.
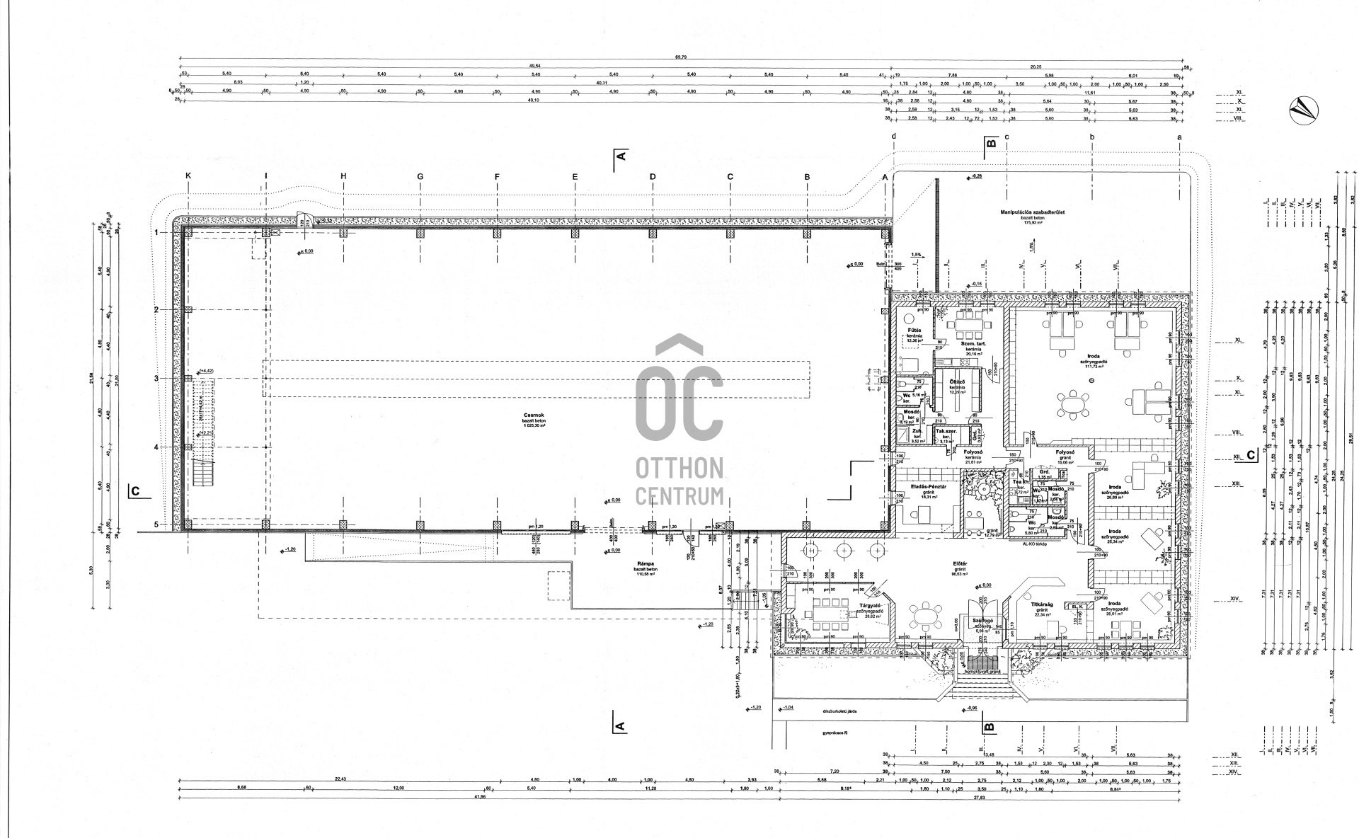
The property consists of three separate parcels, with a total land area of 18,721 m².
• Parcel “A”: 7,572 m²
A modern company headquarters building, constructed approximately 5 years ago, is located on this parcel. The building includes around 550 m² of office and showroom space and a 1,000 m² modern warehouse with an 8 m internal height, all situated on one level. The building is modern both aesthetically and energetically, classified as Category “A”.
• Parcel “B”: 5,702 m² | Parcel “C”: 5,447 m²
The other part of the property consists of two parcels with unheated warehouses built before 1990. The total area of the three buildings is 2,200 m². These buildings have elongated floor plans and form a U-shape around a parking area. The long sides of the buildings feature 10 loading doors, allowing them to be divided into 200 m² units without modification. One of the smaller buildings (400 m²) has been converted into lower-category office space, but it can easily be reverted back into warehouse space.
Rental Conditions
The entire property complex is currently leased, but will become available again from January 1, 2026. The indicative rental rates are:
Warehouses: €5 / m² / month
Offices: €8 / m² / month
For any questions regarding the property, please feel free to contact us!
The property consists of three separate parcels, with a total land area of 18,721 m².
• Parcel “A”: 7,572 m²
A modern company headquarters building, constructed approximately 5 years ago, is located on this parcel. The building includes around 550 m² of office and showroom space and a 1,000 m² modern warehouse with an 8 m internal height, all situated on one level. The building is modern both aesthetically and energetically, classified as Category “A”.
• Parcel “B”: 5,702 m² | Parcel “C”: 5,447 m²
The other part of the property consists of two parcels with unheated warehouses built before 1990. The total area of the three buildings is 2,200 m². These buildings have elongated floor plans and form a U-shape around a parking area. The long sides of the buildings feature 10 loading doors, allowing them to be divided into 200 m² units without modification. One of the smaller buildings (400 m²) has been converted into lower-category office space, but it can easily be reverted back into warehouse space.
Rental Conditions
The entire property complex is currently leased, but will become available again from January 1, 2026. The indicative rental rates are:
Warehouses: €5 / m² / month
Offices: €8 / m² / month
For any questions regarding the property, please feel free to contact us!
Registration Number
UZ019026
Property Details
Sales
for rent
Legal Status
used
Character
commercial
Type of Business Property
entire building
Construction Method
brick
Net Size
3,375 m²
Plot Size
18,721 m²
Above-Ground Net Size
3,375 m²
Ceiling Height
800 cm
Number of Levels Within the Property
1
Condition
Good
Condition of Facade
Good
Water
Available
Gas
Available
Electricity
Available
Sewer
Available
Possible Functions
office and showroom or shop, office and warehouse, showroom, showroom and service or warehouse, industrial hall or warehouse
Utilization
rented out
Monthly Rental Fee
145230