900,000 Ft
2,320 €
- 330m²


















Kiadó 330 m²-es iroda a Tisztviselőtelepen – zöldövezetben, belváros közelében
Budapest egyik legkülönlegesebb városrészében, a Tisztviselőtelep műemléki villanegyedében, a Bíró Lajos utcában kiadó egy 330 m² alapterületű, többszintes irodaépület-rész. A környék ritka adottsága, hogy zöldövezeti nyugalmat kínál, miközben a belváros és a fő közlekedési útvonalak is gyorsan elérhetők.
Az ingatlan egy 2002-ben épült, kívül-belül újszerű állapotú, klimatizált és riasztóval felszerelt épület egyik fele, mely irodaként korábban is funkcionált. A ház másik fele hosszú távú bérletben van, megbízható bérlővel.
Elrendezés:
Alagsor (69 m²): 2 helyiség, fürdőszoba, WC
Földszint (78,2 m²): 2 helyiség, fürdőszoba, WC, terasz
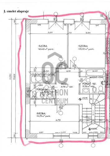
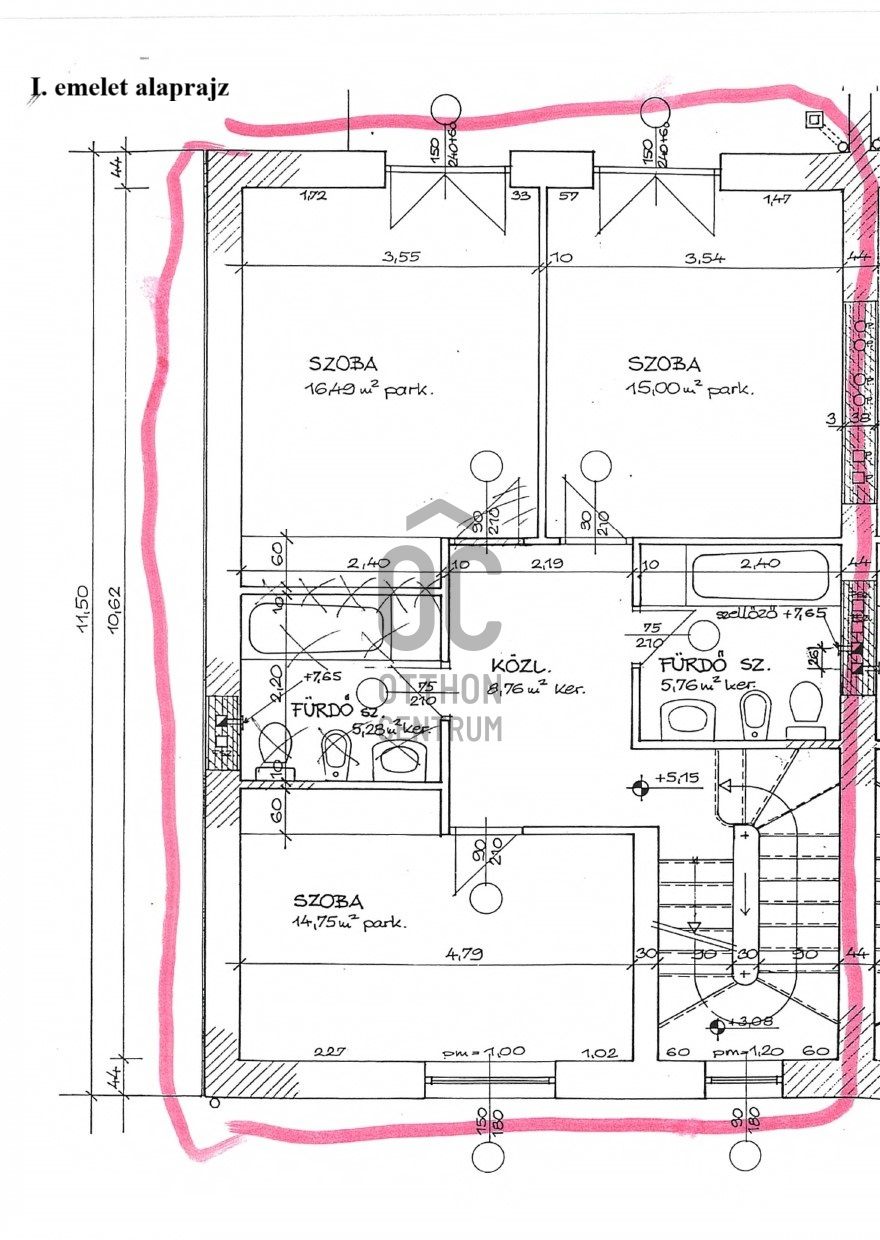
I. emelet (74,4 m²): 3 helyiség, fürdőszoba, WC, terasz
Tetőtér (76,5 m²): 2 nagy szoba, teakonyha, fürdőszoba
Összesen 9 irodahelyiség, több fürdőszoba és mellékhelyiség, kertkapcsolattal és teraszokkal.
A szintek külön is szeparálhatók, így akár több részleg vagy funkció is könnyen elkülöníthető.
Főbb jellemzők:
Újszerű, rendezett épület
Cirkófűtés – fogyasztás alapú rezsi
Nincs közös költség
Saját kert és terasz
Klíma és riasztó
Csendes, biztonságos környék
Közlekedés:
Nagyvárad téri metró: 10 perc gyalog, 4 perc autóval
Könyves Kálmán körút – 1-es villamos: 7 perc séta
Orczy út: villamos, busz 3 perc sétára
Az ingatlan egy 2002-ben épült, kívül-belül újszerű állapotú, klimatizált és riasztóval felszerelt épület egyik fele, mely irodaként korábban is funkcionált. A ház másik fele hosszú távú bérletben van, megbízható bérlővel.
Elrendezés:
Alagsor (69 m²): 2 helyiség, fürdőszoba, WC
Földszint (78,2 m²): 2 helyiség, fürdőszoba, WC, terasz
I. emelet (74,4 m²): 3 helyiség, fürdőszoba, WC, terasz
Tetőtér (76,5 m²): 2 nagy szoba, teakonyha, fürdőszoba
Összesen 9 irodahelyiség, több fürdőszoba és mellékhelyiség, kertkapcsolattal és teraszokkal.
A szintek külön is szeparálhatók, így akár több részleg vagy funkció is könnyen elkülöníthető.
Főbb jellemzők:
Újszerű, rendezett épület
Cirkófűtés – fogyasztás alapú rezsi
Nincs közös költség
Saját kert és terasz
Klíma és riasztó
Csendes, biztonságos környék
Közlekedés:
Nagyvárad téri metró: 10 perc gyalog, 4 perc autóval
Könyves Kálmán körút – 1-es villamos: 7 perc séta
Orczy út: villamos, busz 3 perc sétára
Registration Number
UZ019013
Property Details
Sales
for rent
Legal Status
used
Character
commercial
Type of Business Property
part of building
Construction Method
brick
Net Size
330 m²
Above-Ground Net Size
260 m²
Heating
Gas circulator
Ceiling Height
370 cm
Condition
Good
Condition of Facade
Good
Condition of Staircase
Good
Year of Construction
2002
Water
Available
Gas
Available
Electricity
Available
Sewer
Available
Possible Functions
office, office and warehouse
Visibility
Located on a side street
Accessibility
Entrance from side street
Utilization
vacant