1,500,000,000 Ft
3,957,000 €
- 1,930m²
Office Building for Sale in Budapest VII District!
The property is located in District VII, an 8-minute walk from Városliget (City Park) and approximately 10 minutes from Keleti Railway Station. The outer area of District VII, known as “Ligetváros,” hosts numerous attractions. Budapest’s “lungs,” the City Park, is home to several key institutions such as the Széchenyi Thermal Bath, the Zoo, the Grand Circus, the Ice Rink, the Museum of Fine Arts, the Agricultural and Transportation Museums, and the Kunsthalle. Nearby landmarks also include Heroes’ Square, Puskás Arena, and Arena Plaza.
The office building was constructed in the 1980s. The main building is located on the street frontage and does not have a basement. Its roof is lightweight with a hall-like structure. The building is currently outdated and in need of renovation.
Current Condition
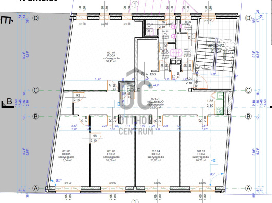
Usable area: 1,930 m²
Ground floor: 804 m²
Covered courtyard with car access: 249 m²
Service rooms: 156 m²
Warehouses and workshops: 399 m²
Ground floor total: 804 m²
Office floors:
1st floor: 217 m²
2nd floor: 219 m²
3rd floor: 219 m²
4th floor: 219 m²
5th floor: 202 m²
Attic apartment: 50 m²
After renovation, the building can retain its function as an office building, or it can be converted for use as a private clinic or private school. With modifications, it can also be developed into residential apartments, a hotel, or an apartment house. The owner has considered converting the property into an apartment house, and preliminary plans have been prepared for this purpose.
Currently, the building has a ground floor + 4 floors + attic layout. The renovation plan adds one extra floor above the existing structure, plus an attic level.
Planned Layout
Net usable area:
Ground floor: 816.16 m²
1st floor: 236.68 m²
2nd floor: 236.45 m²
3rd floor: 236.15 m²
4th floor: 238.64 m²
5th floor: 238.96 m²
6th floor (attic): 201.97 m²
Balcony: 6th floor 38 m²
Loggia: 6th floor 3.73 m² / 2
Total: 2,201.9 m²
The building has a robust reinforced concrete pillar-frame structure, which is not recommended for demolition. According to zoning regulations, the current buildability is not fully utilized, leaving room for expansion. An expansion study has been prepared for an L-shaped extension, which would connect to the left side of the existing building wing.
With the expansion, the usable area would increase to 3,651 m², accommodating 70 apartments. Parking would include 17+17 spaces (parking system). A rooftop garden connected to the first floor would provide 163 m² of green space.
We look forward to your inquiry!
The office building was constructed in the 1980s. The main building is located on the street frontage and does not have a basement. Its roof is lightweight with a hall-like structure. The building is currently outdated and in need of renovation.
Current Condition
Usable area: 1,930 m²
Ground floor: 804 m²
Covered courtyard with car access: 249 m²
Service rooms: 156 m²
Warehouses and workshops: 399 m²
Ground floor total: 804 m²
Office floors:
1st floor: 217 m²
2nd floor: 219 m²
3rd floor: 219 m²
4th floor: 219 m²
5th floor: 202 m²
Attic apartment: 50 m²
After renovation, the building can retain its function as an office building, or it can be converted for use as a private clinic or private school. With modifications, it can also be developed into residential apartments, a hotel, or an apartment house. The owner has considered converting the property into an apartment house, and preliminary plans have been prepared for this purpose.
Currently, the building has a ground floor + 4 floors + attic layout. The renovation plan adds one extra floor above the existing structure, plus an attic level.
Planned Layout
Net usable area:
Ground floor: 816.16 m²
1st floor: 236.68 m²
2nd floor: 236.45 m²
3rd floor: 236.15 m²
4th floor: 238.64 m²
5th floor: 238.96 m²
6th floor (attic): 201.97 m²
Balcony: 6th floor 38 m²
Loggia: 6th floor 3.73 m² / 2
Total: 2,201.9 m²
The building has a robust reinforced concrete pillar-frame structure, which is not recommended for demolition. According to zoning regulations, the current buildability is not fully utilized, leaving room for expansion. An expansion study has been prepared for an L-shaped extension, which would connect to the left side of the existing building wing.
With the expansion, the usable area would increase to 3,651 m², accommodating 70 apartments. Parking would include 17+17 spaces (parking system). A rooftop garden connected to the first floor would provide 163 m² of green space.
We look forward to your inquiry!
Registration Number
UZ017145
Property Details
Sales
for sale
Legal Status
used
Character
commercial
Type of Business Property
entire building
Construction Method
brick
Net Size
1,930 m²
Gross Size
10 m²
Plot Size
952 m²
Size of Terrace / Balcony
38 m²
Above-Ground Net Size
1,930 m²
Ceiling Height
280 cm
Number of Levels Within the Property
6
View
city view
Condition
To be renovated
Condition of Facade
Good
Number of Bathrooms
1
Water
Available
Gas
Available
Electricity
Available
Sewer
Available
Elevator
available
Distance to Waterfront
more than 500 meters
Possible Functions
office, office and showroom or shop, office and warehouse, hotel, guesthouse, hostel, healthcare center
Visibility
Easily visible on a high foot traffic street
Accessibility
Entrance from high foot traffic street
Utilization
vacant