49,000,000 Ft
130,000 €
- 1,844m²
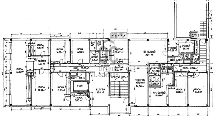
Ritka Befektetési Lehetőség Verpelét Szívében: Teljeskörűen Felújítandó Irodaház Kialakítható Lakásokkal!
Álmodott már arról, hogy befektetés révén saját otthonait teremtse meg, vagy akár vállalkozását működtesse egy gyönyörű és kényelmes helyen, Verpelét központjában? Itt a lehetőség! Eladó egy teljeskörűen felújítandó irodaház, melyben a legfelső átalakításával akár két kényelmes lakást is kialakíthat.
Főbb jellemzők:
Kiváló Elhelyezkedés: Az ingatlan Verpelét központjában található, közel minden fontos szolgáltatáshoz és létesítményhez, így ideális választás lehet mind vállalkozás, mind otthon céljából.
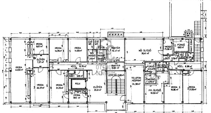
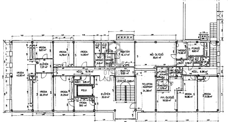
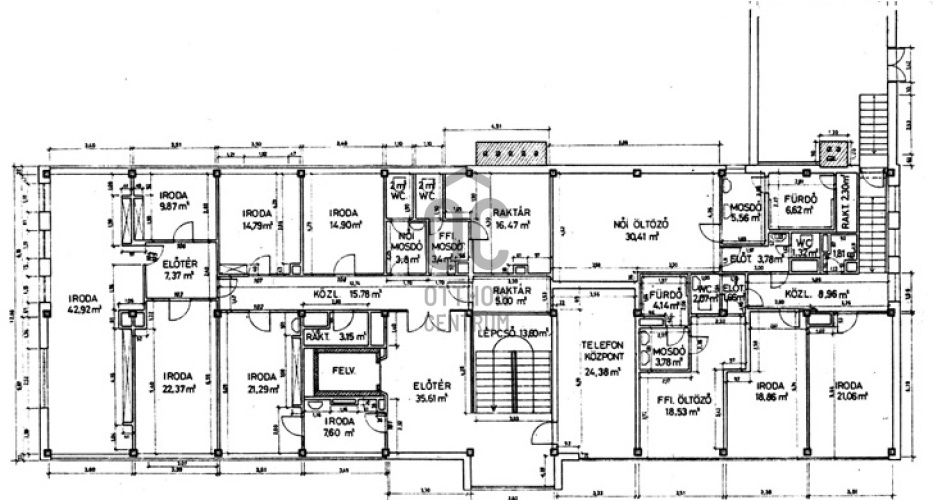
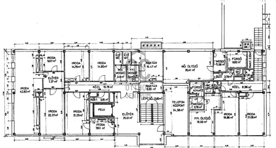
Teljeskörű Felújítás: Az irodaház teljeskörű felújítást igényel, de a kiváló szerkezeti állapotának köszönhetően fantasztikus lehetőség kínálkozik a két kényelmes lakás kialakítására is.
Variálható Elrendezés: Az ingatlan jelenlegi elrendezése lehetővé teszi, hogy két teljesen elkülöníthető lakás kerüljön kialakításra, megfelelve a különböző igényeknek és preferenciáknak.
Befektetési Potenciál: Verpelét és környéke egyre népszerűbb a befektetők körében, így az ingatlan rendkívül vonzó lehetőséget kínál a befektetésre és az ingatlanpiaci növekedésre.
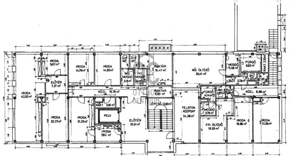
Álmodott már arról, hogy befektetés révén saját otthonait teremtse meg, vagy akár vállalkozását működtesse egy gyönyörű és kényelmes helyen, Verpelét központjában? Itt a lehetőség! Eladó egy teljeskörűen felújítandó irodaház, melyben a legfelső átalakításával akár két kényelmes lakást is kialakíthat.
Főbb jellemzők:
Kiváló Elhelyezkedés: Az ingatlan Verpelét központjában található, közel minden fontos szolgáltatáshoz és létesítményhez, így ideális választás lehet mind vállalkozás, mind otthon céljából.
Teljeskörű Felújítás: Az irodaház teljeskörű felújítást igényel, de a kiváló szerkezeti állapotának köszönhetően fantasztikus lehetőség kínálkozik a két kényelmes lakás kialakítására is.
Variálható Elrendezés: Az ingatlan jelenlegi elrendezése lehetővé teszi, hogy két teljesen elkülöníthető lakás kerüljön kialakításra, megfelelve a különböző igényeknek és preferenciáknak.
Befektetési Potenciál: Verpelét és környéke egyre népszerűbb a befektetők körében, így az ingatlan rendkívül vonzó lehetőséget kínál a befektetésre és az ingatlanpiaci növekedésre.
Registration Number
UZ016995
Property Details
Sales
for sale
Legal Status
used
Character
commercial
Type of Business Property
entire building
Construction Method
brick
Net Size
1,844 m²
Plot Size
1,844 m²
Above-Ground Net Size
3 m²
Ceiling Height
299 cm
Number of Levels Within the Property
3
Condition
To be renovated
Condition of Facade
Below average
Water
Available
Gas
Available
Electricity
Available
Sewer
Available
Possible Functions
hospitality unit, office, office and showroom or shop, office and warehouse, showroom, showroom and service or warehouse, industrial hall or warehouse, logistics center, hotel, guesthouse, hostel, sports center, healthcare center, educational center, agricultural site
Utilization
vacant
Berkes-Jakus Kinga
Credit Expert