data_sheet.details.realestate.section.main.otthonstart_flag.label
For sale new construction semi-detached house,
U0049507
Nyíregyháza, Malomkert
91,900,000 Ft
232,000 €
- 115.5m²
- 4 Rooms
Tökéletes kivitelezés ,minőségi munka ,kitűnő lokáció , kell ennél több?
Eladó új építésű ikerházfél Nyíregyházán – külön elkerített udvarral!
Eladásra kínálunk egy 144,24 m² alapterületű, modern kialakítású ikerház első felét, amely praktikus elrendezésével és tágas tereivel ideális választás családok számára.
Az ingatlanban 3 külön nyíló szoba, valamint egy tágas, amerikai konyhás nappali került kialakításra, amely közvetlen kapcsolatban áll a terasszal és a kerttel. A világos nappali tökéletes helyszín a családi együttlétekhez és baráti összejövetelekhez.
A lakásban 2 fürdőszoba található:
•egy kádas fürdőszoba,
•valamint egy zuhanyzós fürdőszoba, ami kényelmes megoldást nyújt a mindennapokban.
Az ingatlanhoz külön elkerített udvarrész tartozik, amely biztosítja a nyugodt, privát környezetet.
Műszaki jellemzők:
•Porotherm 30 N+F teherhordó falazat
•15 cm homlokzati hőszigetelés
•Porotherm 30 N+F belső teherhordó falak
•Porotherm 10 N+F válaszfalak
•korszerű, energiatakarékos építési technológia
Főbb adatok:
•Alapterület: 144,24 m²
•3 szoba + amerikai konyhás nappali
•2 fürdőszoba
•teraszkapcsolatos nappali
•külön elkerített udvar
•családbarát elrendezés
Az ingatlan ideális választás mindazok számára, akik modern, energiatakarékos otthont keresnek nyugodt környezetben.
További információért és megtekintéssel kapcsolatban keressen bizalommal
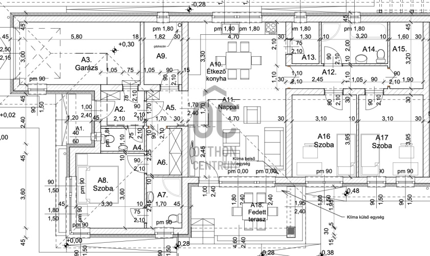
Az alaprajz tájékoztató jellegű.
A hirdetésben szereplő információk a megbízótól kapott adatok alapján készültek, pontosságukért felelősséget nem vállalunk!
Amennyiben vásárláshoz hitelre is szüksége van, független hitel tanácsadónk ingyenesen tud Önnek segítséget nyújtani a legjobb konstrukciók kiválasztásában és a folyamat lebonyolításában. Irodánk kereső ügyfeleinknek teljes körű szolgáltatást nyújt, szakszerű tanácsadással, energetikai tanúsítvány elkészítésével, hitelügyintézéssel és profi ügyvédi segítséggel. Abban az esetben ha az ingatlan felkeltette érdeklődését keressen bizalommal!
Eladásra kínálunk egy 144,24 m² alapterületű, modern kialakítású ikerház első felét, amely praktikus elrendezésével és tágas tereivel ideális választás családok számára.
Az ingatlanban 3 külön nyíló szoba, valamint egy tágas, amerikai konyhás nappali került kialakításra, amely közvetlen kapcsolatban áll a terasszal és a kerttel. A világos nappali tökéletes helyszín a családi együttlétekhez és baráti összejövetelekhez.
A lakásban 2 fürdőszoba található:
•egy kádas fürdőszoba,
•valamint egy zuhanyzós fürdőszoba, ami kényelmes megoldást nyújt a mindennapokban.
Az ingatlanhoz külön elkerített udvarrész tartozik, amely biztosítja a nyugodt, privát környezetet.
Műszaki jellemzők:
•Porotherm 30 N+F teherhordó falazat
•15 cm homlokzati hőszigetelés
•Porotherm 30 N+F belső teherhordó falak
•Porotherm 10 N+F válaszfalak
•korszerű, energiatakarékos építési technológia
Főbb adatok:
•Alapterület: 144,24 m²
•3 szoba + amerikai konyhás nappali
•2 fürdőszoba
•teraszkapcsolatos nappali
•külön elkerített udvar
•családbarát elrendezés
Az ingatlan ideális választás mindazok számára, akik modern, energiatakarékos otthont keresnek nyugodt környezetben.
További információért és megtekintéssel kapcsolatban keressen bizalommal
Az alaprajz tájékoztató jellegű.
A hirdetésben szereplő információk a megbízótól kapott adatok alapján készültek, pontosságukért felelősséget nem vállalunk!
Amennyiben vásárláshoz hitelre is szüksége van, független hitel tanácsadónk ingyenesen tud Önnek segítséget nyújtani a legjobb konstrukciók kiválasztásában és a folyamat lebonyolításában. Irodánk kereső ügyfeleinknek teljes körű szolgáltatást nyújt, szakszerű tanácsadással, energetikai tanúsítvány elkészítésével, hitelügyintézéssel és profi ügyvédi segítséggel. Abban az esetben ha az ingatlan felkeltette érdeklődését keressen bizalommal!
Registration Number
U0049507
Property Details
Sales
for sale
Legal Status
new
Character
house
Construction Method
brick
Net Size
115.5 m²
Gross Size
144.2 m²
Plot Size
900 m²
Size of Terrace / Balcony
11.2 m²
Heating
gas boiler
Ceiling Height
270 cm
Orientation
South
View
Green view
Condition
Excellent
Condition of Facade
Excellent
Neighborhood
quiet, good transport, green, central
Year of Construction
2026
Number of Bathrooms
2
Garage
Included in the price
Garage Spaces
1
Water
Available
Gas
Available
Electricity
Available
Sewer
Available
Rooms
garage
17.43 m²
toilet
2.31 m²
corridor
2.89 m²
entryway
3.82 m²
bathroom-toilet
4.16 m²
room
11.87 m²
boiler room
5.41 m²
open-plan kitchen and dining room
15.03 m²
living room
19.97 m²
entryway
5.06 m²
pantry
2.6 m²
bathroom
6.4 m²
wardrobe
5.12 m²
room
12.25 m²
bedroom
12.25 m²
terrace
11.25 m²