data_sheet.details.realestate.section.main.otthonstart_flag.label
For sale new construction family house,
U0049348
Aba, Belsőbáránd
58,900,000 Ft
156,000 €
- 65.9m²
- 3 Rooms
Márvány Liget Lakópark Székesfehérvár közelében!
Székesfehérvár közvetlen közelében, az autópályától 8 percre található Belsőbárándon, rendkívül csendes környezetben épülő 65,96 nm hasznos lakóterű modern, téglából épült lakóház eladó!
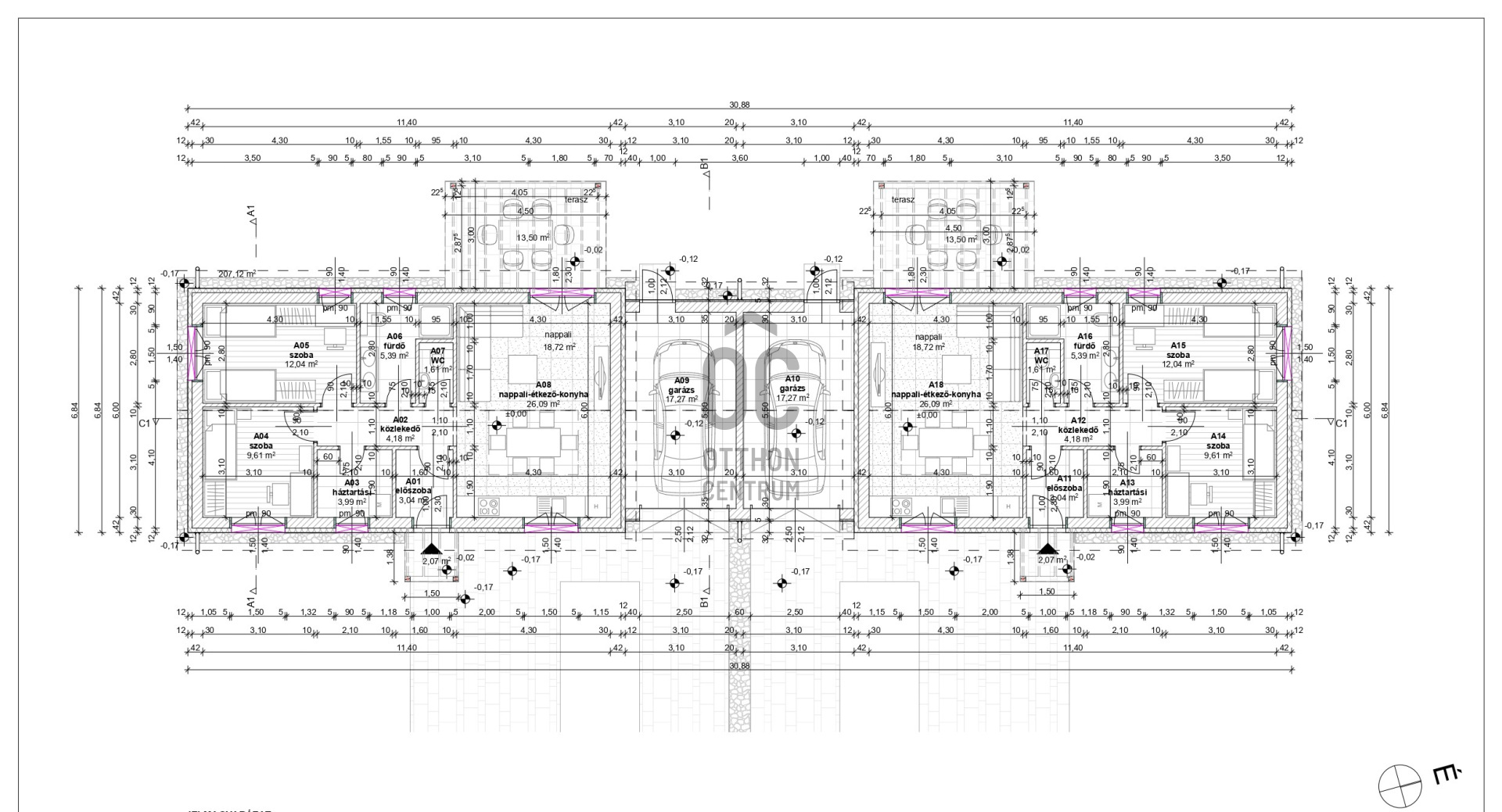
Rövid műszaki leírás: 1. ház (1. épület)
* Telek:409 nm
* Amerikai konyhás nappali étkezővel, 2 szoba, fürdőszoba, 2 illemhelység, terasz + 1 beállásos garázs
* 65,96 nm hasznos alapterület + 13,5 nm-es pergolával fedett terasz
* A ház 30 cm vastag Leier 30 N+F tégla falazattal, 15 cm homlokzati hőszigeteléssel, 12 cm aljzatszigeteléssel, 30 cm üveggyapot padlásszigeteléssel épül
* Fűtés: padlófűtés, az épület hőellátása levegő-víz hőszivattyúról történik
* Tető 30 fokos nyeregtetős, fa födémes, beton tetőcseréppel fedett
* Igény esetén napelem rendszer is telepíthető
* Fehér 3 rétegű műanyag nyílászárók kerülnek beépítésre, redőnnyel, szúnyoghálóval felszerelve
* Elektromos hálózat 3*25A
* Burkolat: konyhában, közlekedő részen, fürdőszobában, mellékhelyiségben járólap, nappaliban, szobákban laminált parketta, terasz térkövezett
* Épület körül kavics járda szegélykő, külső terasz térkő burkolat.
Belsőbáránd közelében halad el a 63-as főút, így a falurész könnyen megközelíthető Székesfehérvár és Sárbogárd irányából is.
A részletekkel kapcsolatban keressen bizalommal!
Ha a vásárláshoz a jelenlegi ingatlana eladására van szükség, akkor abban is szívesen együttműködöm Önnel!
Amennyiben hitelre van szüksége, az Otthon Centrum az ország egyik legnagyobb és legmegbízhatóbb hitelközvetítőjeként, teljes körű és díjmentes hitel ügyintézéssel áll ügyfelei rendelkezésére.
Rövid műszaki leírás: 1. ház (1. épület)
* Telek:409 nm
* Amerikai konyhás nappali étkezővel, 2 szoba, fürdőszoba, 2 illemhelység, terasz + 1 beállásos garázs
* 65,96 nm hasznos alapterület + 13,5 nm-es pergolával fedett terasz
* A ház 30 cm vastag Leier 30 N+F tégla falazattal, 15 cm homlokzati hőszigeteléssel, 12 cm aljzatszigeteléssel, 30 cm üveggyapot padlásszigeteléssel épül
* Fűtés: padlófűtés, az épület hőellátása levegő-víz hőszivattyúról történik
* Tető 30 fokos nyeregtetős, fa födémes, beton tetőcseréppel fedett
* Igény esetén napelem rendszer is telepíthető
* Fehér 3 rétegű műanyag nyílászárók kerülnek beépítésre, redőnnyel, szúnyoghálóval felszerelve
* Elektromos hálózat 3*25A
* Burkolat: konyhában, közlekedő részen, fürdőszobában, mellékhelyiségben járólap, nappaliban, szobákban laminált parketta, terasz térkövezett
* Épület körül kavics járda szegélykő, külső terasz térkő burkolat.
Belsőbáránd közelében halad el a 63-as főút, így a falurész könnyen megközelíthető Székesfehérvár és Sárbogárd irányából is.
A részletekkel kapcsolatban keressen bizalommal!
Ha a vásárláshoz a jelenlegi ingatlana eladására van szükség, akkor abban is szívesen együttműködöm Önnel!
Amennyiben hitelre van szüksége, az Otthon Centrum az ország egyik legnagyobb és legmegbízhatóbb hitelközvetítőjeként, teljes körű és díjmentes hitel ügyintézéssel áll ügyfelei rendelkezésére.
Registration Number
U0049348
Property Details
Sales
for sale
Legal Status
new
Character
house
Construction Method
brick
Net Size
65.9 m²
Gross Size
80 m²
Plot Size
409 m²
Size of Terrace / Balcony
13.5 m²
Heating
heat pump (air-to-water)
Ceiling Height
270 cm
Number of Levels Within the Property
1
Orientation
South-West
Condition
Excellent
Condition of Facade
Excellent
Year of Construction
2026
Number of Bathrooms
1
Garage
Included in the price
Garage Spaces
1
Water
Available
Gas
Available
Electricity
Available
Rooms
open-plan kitchen and living room
26.09 m²
room
12.04 m²
room
9.61 m²
entryway
3.04 m²
corridor
4.18 m²
utility room
3.99 m²
bathroom-toilet
5.39 m²
toilet
1.61 m²
terrace
13.5 m²
garage
17.27 m²
Várnai Zoltán Jenő
Credit Expert