229,000,000 Ft
607,000 €
- 218m²
- 6 Rooms
Fedezze fel álmai otthonát Debrecen Biharikertben – 6 szobás új ház várja Önt!
Az ingatlan, amit most bemutatunk, tökéletes választás családosok számára, akik egy új, modern otthonra vágynak Debrecen egyik legkeresettebb városrészében, Biharikertben.
A projekt kezdete 2026.Április
Befejezése: 2027.Március
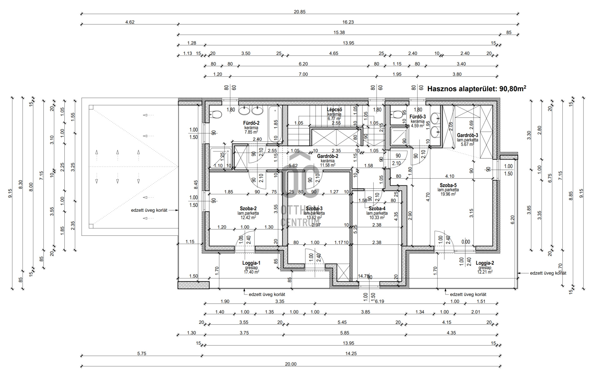
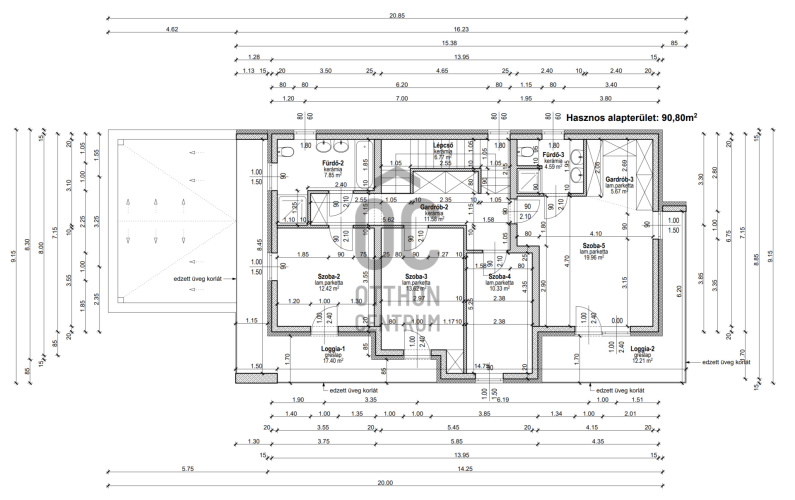
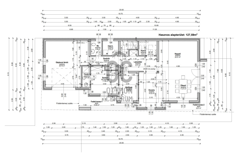
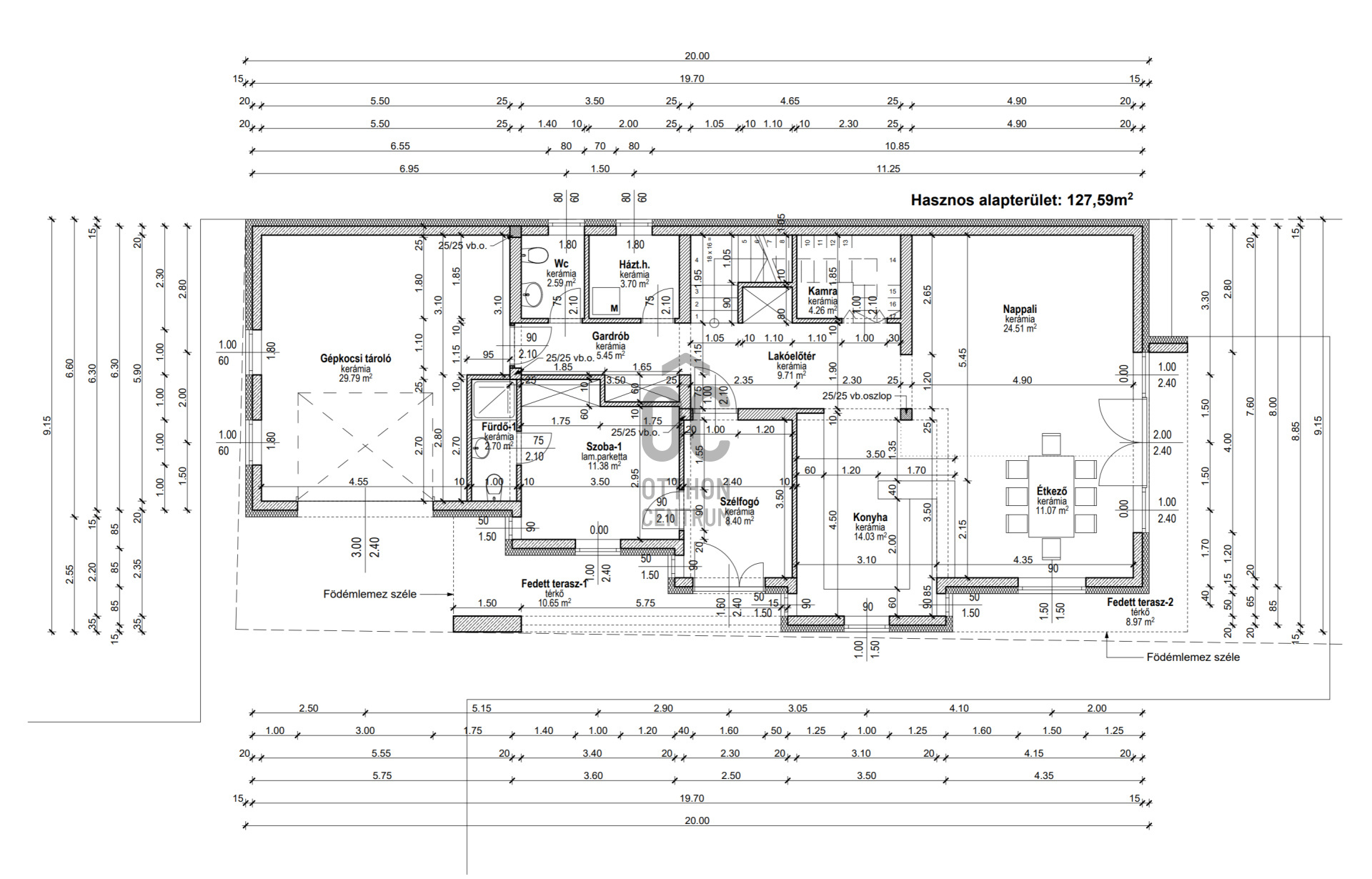
Az ingatlan alapterülete 218 nm, ami bőséges teret biztosít a családi élethez, és a 1066 nm-es telek lehetőséget ad a szabadidő eltöltésére, kertészkedésre, vagy akár egy medence kialakítására is. Az ingatlan kiváló állapotban van, így azonnal költözhető, ráadásul minimalista kialakítása miatt könnyen személyre szabható.
A házban összesen 6 szoba található, ami elegendő teret biztosít a család minden tagjának. A tágas nappali és az amerikai konyha ideális helyszínt nyújt a közös családi étkezésekhez és baráti összejövetelekhez. A három fürdőszoba pedig garantálja, hogy sosem kell a reggeli rohanásban várakozni. A 19.62 nm-es terasz tökéletes helyszín a pihenésre, ahol a naplementében gyönyörködhetünk, miközben a gyerekek a kertben játszanak. A környék ellátottsága kiváló, hiszen számos bolt, iskola és óvoda található a közelben, így a mindennapi ügyintézés gyerekjáték. A csendes utcák és a barátságos szomszédság ideális környezetet biztosítanak a családi élethez. A közlekedés is remek, hiszen a város központja könnyen elérhető autóval és tömegközlekedéssel egyaránt.
A Debreceni Egyetem és a helyi munkahelyek is gyorsan megközelíthetők, így nemcsak otthon, hanem munkahely szempontjából is remek választás. A garázsban két autó parkolására van lehetőség, ami különösen fontos lehet a családosok számára.
Ez az ingatlan nem csupán egy ház, hanem egy igazi otthon, ahol a családi értékek és a közös pillanatok kapják a főszerepet.
Ha bármilyen kérdésed van, vagy szeretnéd megtekinteni ezt a csodás ingatlant, bátran keresd fel csapatunkat!
Mi itt vagyunk, hogy segítsünk neked megtalálni a tökéletes otthont!
A projekt kezdete 2026.Április
Befejezése: 2027.Március
Az ingatlan alapterülete 218 nm, ami bőséges teret biztosít a családi élethez, és a 1066 nm-es telek lehetőséget ad a szabadidő eltöltésére, kertészkedésre, vagy akár egy medence kialakítására is. Az ingatlan kiváló állapotban van, így azonnal költözhető, ráadásul minimalista kialakítása miatt könnyen személyre szabható.
A házban összesen 6 szoba található, ami elegendő teret biztosít a család minden tagjának. A tágas nappali és az amerikai konyha ideális helyszínt nyújt a közös családi étkezésekhez és baráti összejövetelekhez. A három fürdőszoba pedig garantálja, hogy sosem kell a reggeli rohanásban várakozni. A 19.62 nm-es terasz tökéletes helyszín a pihenésre, ahol a naplementében gyönyörködhetünk, miközben a gyerekek a kertben játszanak. A környék ellátottsága kiváló, hiszen számos bolt, iskola és óvoda található a közelben, így a mindennapi ügyintézés gyerekjáték. A csendes utcák és a barátságos szomszédság ideális környezetet biztosítanak a családi élethez. A közlekedés is remek, hiszen a város központja könnyen elérhető autóval és tömegközlekedéssel egyaránt.
A Debreceni Egyetem és a helyi munkahelyek is gyorsan megközelíthetők, így nemcsak otthon, hanem munkahely szempontjából is remek választás. A garázsban két autó parkolására van lehetőség, ami különösen fontos lehet a családosok számára.
Ez az ingatlan nem csupán egy ház, hanem egy igazi otthon, ahol a családi értékek és a közös pillanatok kapják a főszerepet.
Ha bármilyen kérdésed van, vagy szeretnéd megtekinteni ezt a csodás ingatlant, bátran keresd fel csapatunkat!
Mi itt vagyunk, hogy segítsünk neked megtalálni a tökéletes otthont!
Registration Number
U0049342
Property Details
Sales
for sale
Legal Status
new
Character
house
Construction Method
brick
Net Size
218 m²
Gross Size
289 m²
Plot Size
1,066 m²
Size of Terrace / Balcony
19.6 m²
Heating
Gas circulator
Ceiling Height
280 cm
Number of Levels Within the Property
1
Orientation
South-East
Condition
Excellent
Condition of Facade
Excellent
Year of Construction
2026
Number of Bathrooms
3
Garage
Included in the price
Garage Spaces
2
Water
Available
Gas
Available
Electricity
Available
Sewer
Available
Rooms
garage
29.79 m²
bathroom-toilet
2.7 m²
room
16.38 m²
entryway
11.4 m²
toilet-washbasin
2.59 m²
utility room
3.7 m²
entryway
9.71 m²
pantry
4.26 m²
kitchen
14.03 m²
living room
24.51 m²
dining room
11.07 m²
terrace
19.62 m²
loggia
29.21 m²
room
12.42 m²
room
13.62 m²
room
10.33 m²
room
19.96 m²
wardrobe
5.67 m²
bathroom
7.85 m²
wardrobe
11.58 m²
bathroom-toilet
4.59 m²
staircase
6.77 m²
Plébán László
Credit Expert