data_sheet.details.realestate.section.main.otthonstart_flag.label
For sale new construction family house,
U0049334
Siófok, Sóstó
79,900,000 Ft
212,000 €
- 71.2m²
- 3 Rooms
Egy igazán élhető családi ház, Siófok-Sóstón
Képzeld el, hogy egy új otthon vár rád Siófok csendes és barátságos Sóstó városrészében.
Ez a prémium kivitelezésű, modern ház tökéletes választás családosok számára, akik értékelik a világos tereket és a kényelmet. Az ingatlan alapterülete 71,26 nm, amely három tágas szobát és egy fürdőszobát foglal magában, így ideális helyet biztosít a családi élethez. A házhoz tartozik két terasz is, ahol élvezheted a nyári estéket és a napsütést. A kert lehetőséget ad a gyerekeknek a szabadban való játékra, míg te a friss levegőn pihenhetsz. Az ingatlan állapota kiváló, a hőszivattyús padlófűtés, a klímás hűtés és a dryvit szigetelés gondoskodik arról, hogy az otthonod mindig kellemes hőmérsékletű legyen, függetlenül az évszaktól. A modern dizájn és a világos belső terek egyedi hangulatot teremtenek, ami minden családtag számára vonzó lehet. A környék csendessége és biztonsága ideális környezetet biztosít a gyermekek számára. A közlekedési lehetőségek is kiválóak: könnyen megközelíthető a város központja, ahol minden szükséges szolgáltatás megtalálható, legyen szó boltokról, éttermekről vagy iskolákról. Az autóval közlekedők számára pedig a főbb utak közelsége biztosítja a gyors elérhetőséget. Ez az ingatlan nem csupán egy ház, hanem egy lehetőség, hogy egy új életet kezdj a családoddal egy csodás környezetben, de befektetésnek is ideális, ha szezonális ház kiadásban gondolkodik a jövőbeni tulajdonos.
A Balaton, a legközelebbi szabadstrand kb. 15 perces gyalogútra van, két irányból is megközelíthető. Ezen a telken két egyforma ház épül, melyek önállóak, a telek pedig osztatlan közös tulajdon lesz ügyvédi használati megosztással. Mindkét házhoz egy kb. 430 nm-es telekrész, kert fog tartozni. Az egyik ház a Léda utca felől, a másik pedig a Luca utca felől, önállóan lesz megközelíthető.
Műszaki leírás
Alapozás: betonacél, C 20/25
Falazás: főfalak - ytong 30 cm, válaszfalak - ytong 10 cm
Szigetelés: 15 cm dryvit rendszer, a födém 20 cm üveggyapot szigetelés és gipszkarton
Födém: könnyű szerkezetű, nem járható
Tetőszerkezet: fenyő fűrészáru, ácsolt építésű
Fedés: cserép (antracit)
Nyílászárók: 3 rétegű, hőszigetelt műanyag ablakok és bejárat ajtó (fehérek) - redőny, szúnyogháló nincs
Beltéri ajtók: több színből választható dekorfóliás ajtók
Burkolatok: szobákban - laminált parketta, konyha-fürdőszoba-wc - csempe és padlólap (választhatóság 5000 Ft/nm értékben)
Festés: glettelés-festés 3 rétegben (fehér)
Fűtés, hűtés: hőszivattyús padlófűtés és 1 db klíma a nappaliban
Szaniterek: 1 db kád (kérésre zuhany értékegyeztetéssel), 2 db wc, 1 db mosdó, 1 db kézmosó (MOFÉM csaptelepekkel)
Villanyszerelés: 3 fázis, 3x20A, komplett villanyszerelés szerelvényekkel, gyengeáram kiépítés, H tarifa
Környezet kialakítás: kerítések, elektromos kis és nagykapu, járdák, lépcsők, földfeltöltés, füvesítés, eső elvezetés a kertbe történik
Bútorozottság: nem kerül beépítésre semmilyen bútor vagy gépesítés (kivéve természtesen a hűtés-fűtés gépészetet)
Ha kérdéseid vannak, vagy szeretnéd megtekinteni ezt a különleges otthont, ne habozz, keress bizalommal!
(A képek között a hivatalos alaprajz alapján a mesterséges intelligencia segítségével tervezett látvány alaprajz is látható, tájékoztató jelleggel, valamint egyéb AI látványtervek - a hivatalos látványtervek mellett - szintén kedvcsináló jelleggel!)
Ez a prémium kivitelezésű, modern ház tökéletes választás családosok számára, akik értékelik a világos tereket és a kényelmet. Az ingatlan alapterülete 71,26 nm, amely három tágas szobát és egy fürdőszobát foglal magában, így ideális helyet biztosít a családi élethez. A házhoz tartozik két terasz is, ahol élvezheted a nyári estéket és a napsütést. A kert lehetőséget ad a gyerekeknek a szabadban való játékra, míg te a friss levegőn pihenhetsz. Az ingatlan állapota kiváló, a hőszivattyús padlófűtés, a klímás hűtés és a dryvit szigetelés gondoskodik arról, hogy az otthonod mindig kellemes hőmérsékletű legyen, függetlenül az évszaktól. A modern dizájn és a világos belső terek egyedi hangulatot teremtenek, ami minden családtag számára vonzó lehet. A környék csendessége és biztonsága ideális környezetet biztosít a gyermekek számára. A közlekedési lehetőségek is kiválóak: könnyen megközelíthető a város központja, ahol minden szükséges szolgáltatás megtalálható, legyen szó boltokról, éttermekről vagy iskolákról. Az autóval közlekedők számára pedig a főbb utak közelsége biztosítja a gyors elérhetőséget. Ez az ingatlan nem csupán egy ház, hanem egy lehetőség, hogy egy új életet kezdj a családoddal egy csodás környezetben, de befektetésnek is ideális, ha szezonális ház kiadásban gondolkodik a jövőbeni tulajdonos.
A Balaton, a legközelebbi szabadstrand kb. 15 perces gyalogútra van, két irányból is megközelíthető. Ezen a telken két egyforma ház épül, melyek önállóak, a telek pedig osztatlan közös tulajdon lesz ügyvédi használati megosztással. Mindkét házhoz egy kb. 430 nm-es telekrész, kert fog tartozni. Az egyik ház a Léda utca felől, a másik pedig a Luca utca felől, önállóan lesz megközelíthető.
Műszaki leírás
Alapozás: betonacél, C 20/25
Falazás: főfalak - ytong 30 cm, válaszfalak - ytong 10 cm
Szigetelés: 15 cm dryvit rendszer, a födém 20 cm üveggyapot szigetelés és gipszkarton
Födém: könnyű szerkezetű, nem járható
Tetőszerkezet: fenyő fűrészáru, ácsolt építésű
Fedés: cserép (antracit)
Nyílászárók: 3 rétegű, hőszigetelt műanyag ablakok és bejárat ajtó (fehérek) - redőny, szúnyogháló nincs
Beltéri ajtók: több színből választható dekorfóliás ajtók
Burkolatok: szobákban - laminált parketta, konyha-fürdőszoba-wc - csempe és padlólap (választhatóság 5000 Ft/nm értékben)
Festés: glettelés-festés 3 rétegben (fehér)
Fűtés, hűtés: hőszivattyús padlófűtés és 1 db klíma a nappaliban
Szaniterek: 1 db kád (kérésre zuhany értékegyeztetéssel), 2 db wc, 1 db mosdó, 1 db kézmosó (MOFÉM csaptelepekkel)
Villanyszerelés: 3 fázis, 3x20A, komplett villanyszerelés szerelvényekkel, gyengeáram kiépítés, H tarifa
Környezet kialakítás: kerítések, elektromos kis és nagykapu, járdák, lépcsők, földfeltöltés, füvesítés, eső elvezetés a kertbe történik
Bútorozottság: nem kerül beépítésre semmilyen bútor vagy gépesítés (kivéve természtesen a hűtés-fűtés gépészetet)
Ha kérdéseid vannak, vagy szeretnéd megtekinteni ezt a különleges otthont, ne habozz, keress bizalommal!
(A képek között a hivatalos alaprajz alapján a mesterséges intelligencia segítségével tervezett látvány alaprajz is látható, tájékoztató jelleggel, valamint egyéb AI látványtervek - a hivatalos látványtervek mellett - szintén kedvcsináló jelleggel!)
Registration Number
U0049334
Property Details
Sales
for sale
Legal Status
new
Character
house
Construction Method
ytong
Net Size
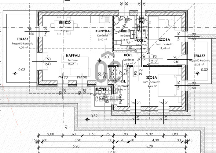
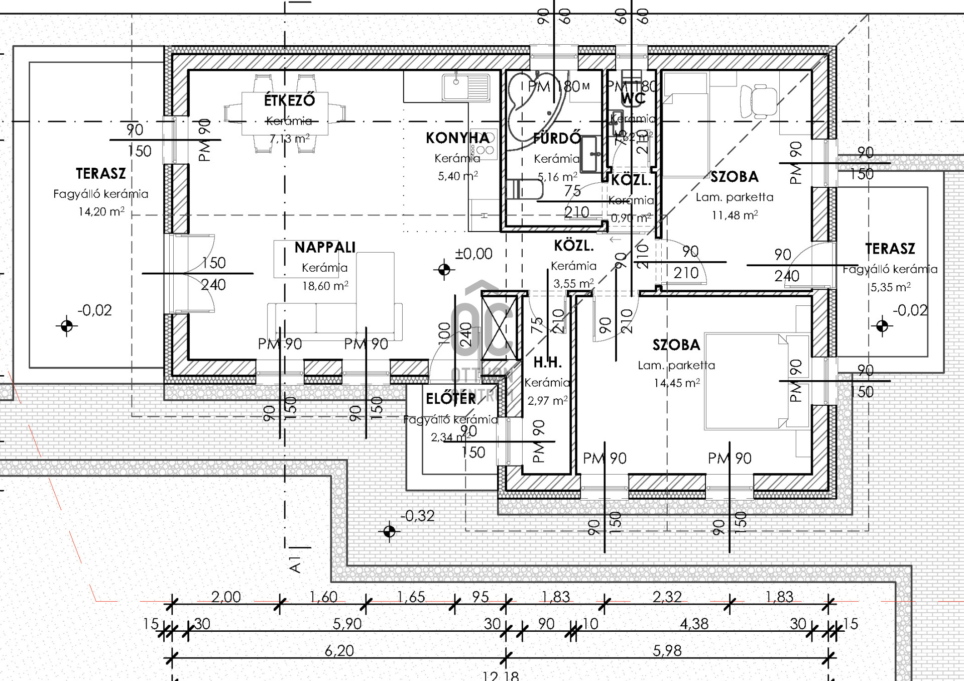
71.2 m²
Gross Size
91.6 m²
Plot Size
429 m²
Size of Terrace / Balcony
19.5 m²
Heating
heat pump
Ceiling Height
260 cm
Orientation
South-West
Condition
Excellent
Condition of Facade
Excellent
Neighborhood
quiet, green
Year of Construction
2026
Number of Bathrooms
1
Condominium Garden
yes
Water
Available
Gas
On the street
Electricity
Available
Sewer
Available
Rooms
open-plan living and dining room
25.73 m²
kitchen
5.4 m²
bedroom
11.48 m²
bedroom
14.45 m²
bathroom-toilet
5.16 m²
toilet
1.62 m²
corridor
3.55 m²
corridor
0.9 m²
utility room
2.97 m²
terrace
14.2 m²
terrace
5.35 m²
Dienes László
Credit Expert