data_sheet.details.realestate.section.main.otthonstart_flag.label
For sale new construction semi-detached house,
U0049059
Debrecen, Tócóliget
115,000,000 Ft
301,000 €
- 108m²
- 4 Rooms
Tócóligetben földszintes, újépítésű ikerház eladó !
Debrecen dinamikusan fejlődő városrészében, a Jégcsarnok mögötti területen eldó, egy épülő ikerház lakása.
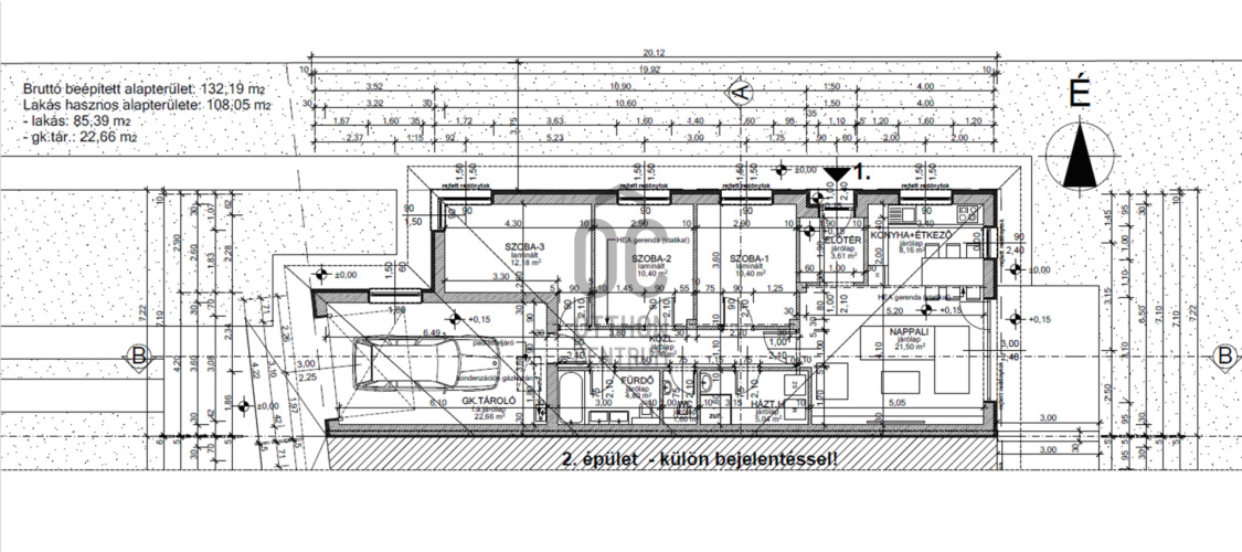
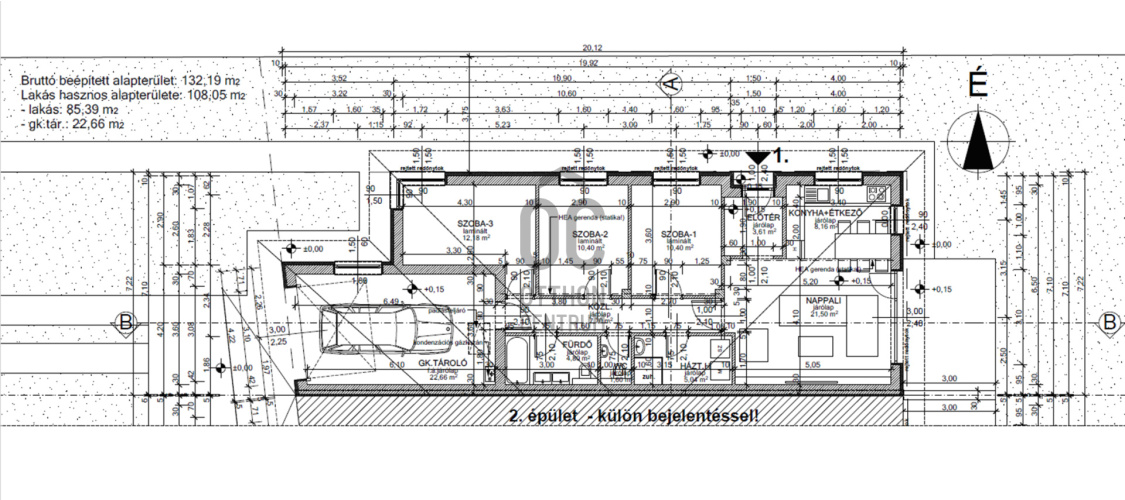
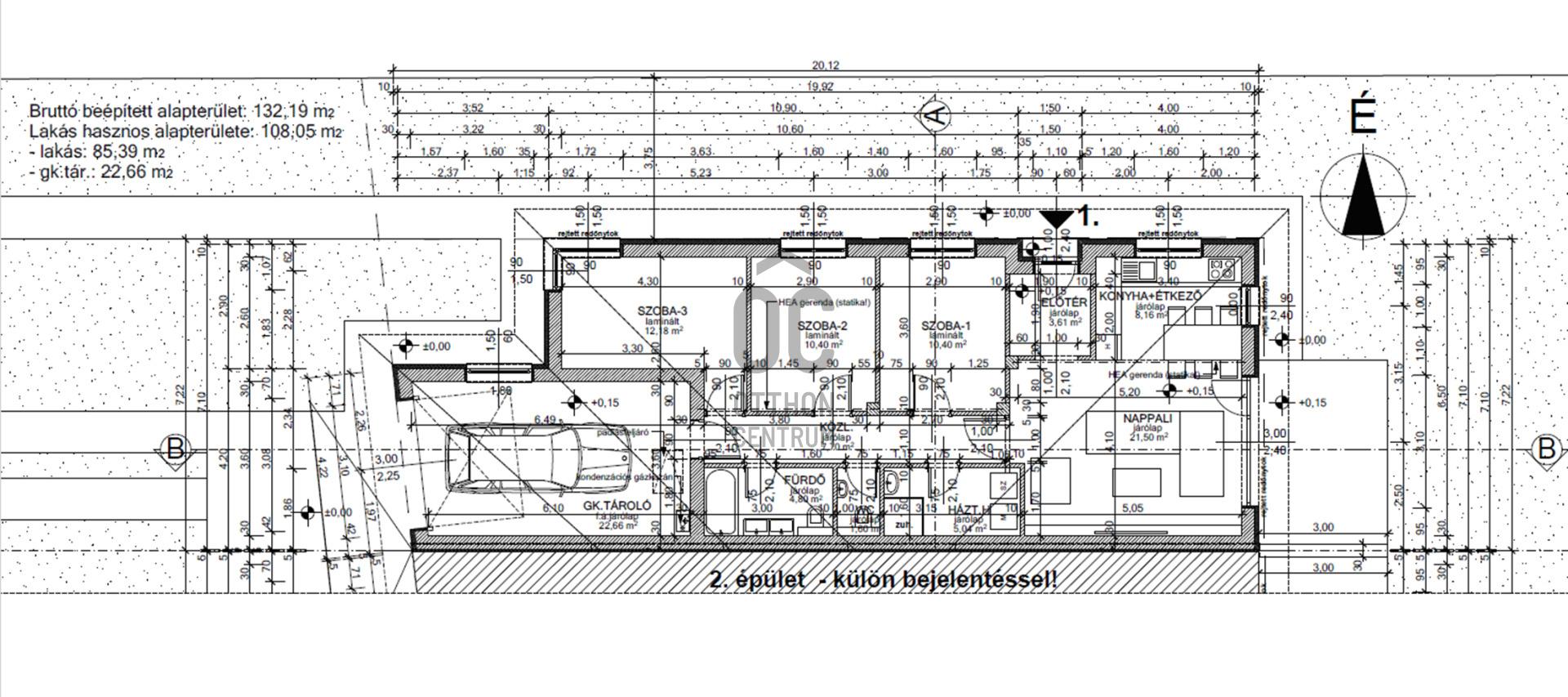
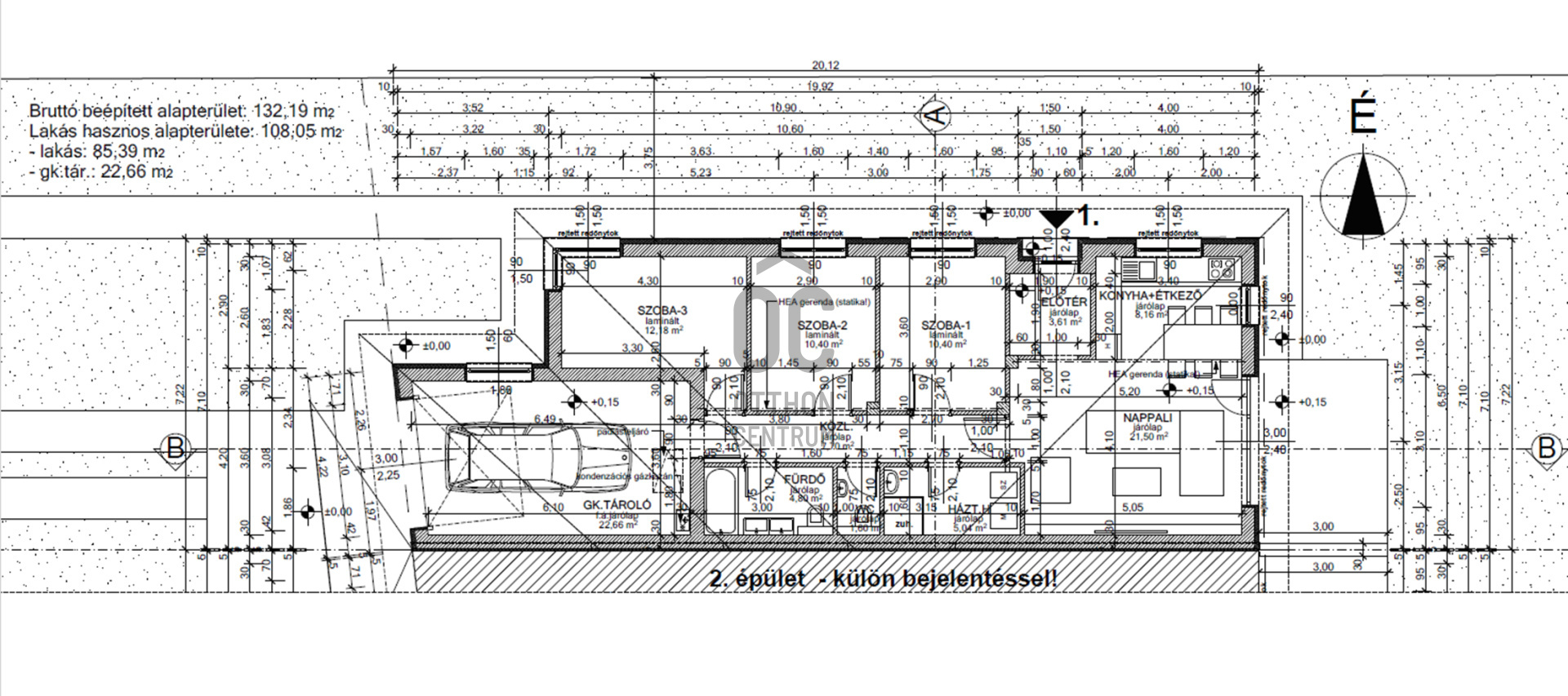
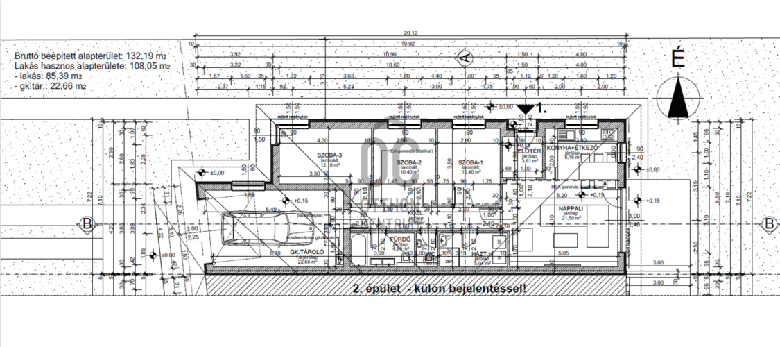
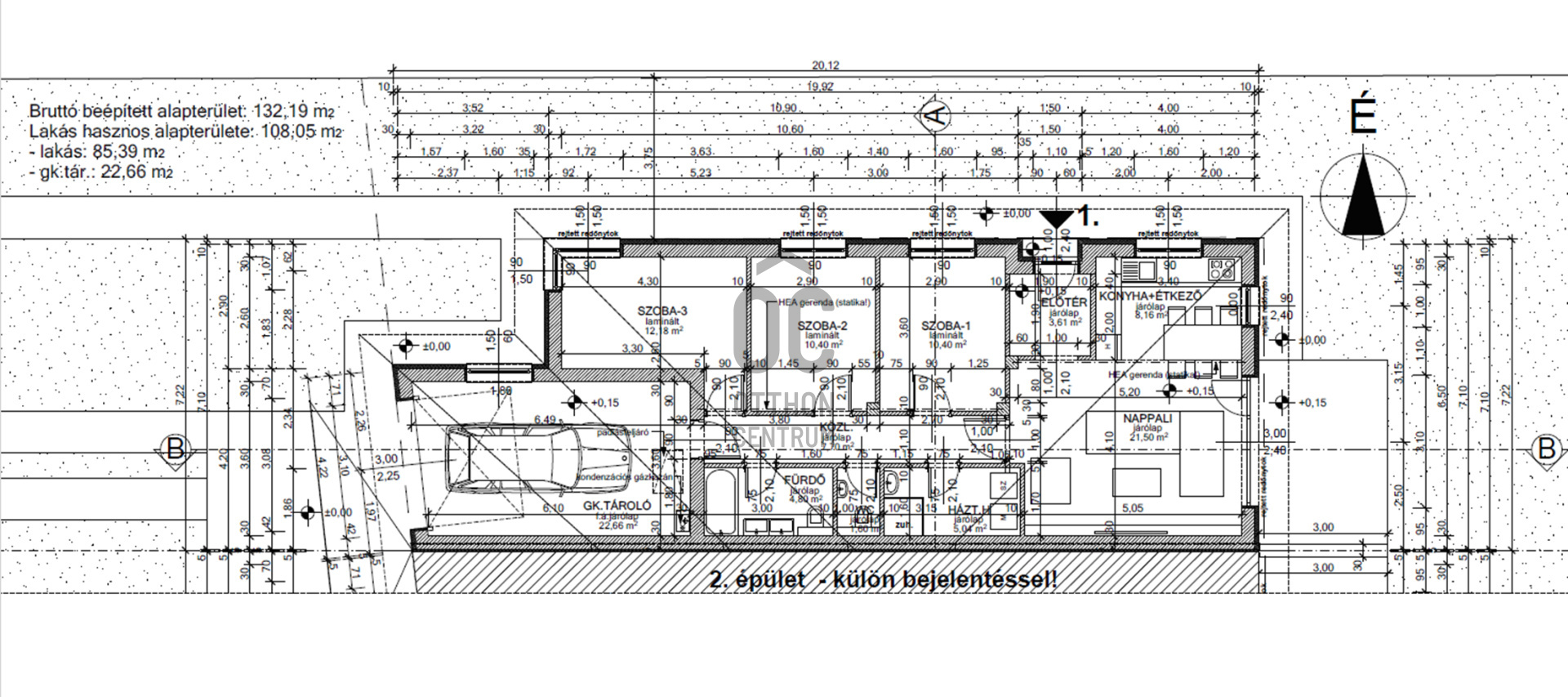
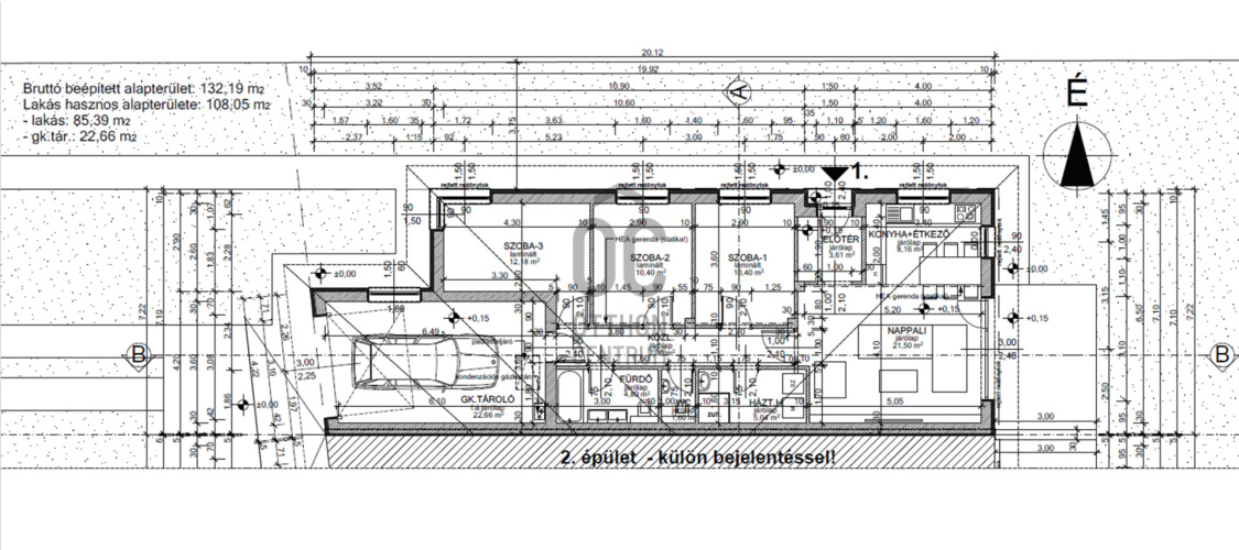
Az ingatlan FÖLDSZINTES, konyha - étkező - nappali + 3 szobás, külön fürdőszoba + háztartási helyiség kialakítású, illetve a lakással kapcsolatos egy 22,66 m2 - es garázs.
Az ingatlan beépített területe : 108 m2 + egy : 15 m2 - es terasz tartozik hozzá.
Az ikerház 2 lakása nem egymáson átjárós, mindkét része utcai bejáratos, saját utcafronttal rendelkezik.
A szumma telek 890 m2 , tehát lakásonkénti terület : 455 m2 .
Műszaki jellemzői :
- 30 - as POROTHERM NF tégla falazat
- 10 cm grafit szigetelés
- 3 rtg műanyag ablakok, belül fehér, kivül szines tokkal
- gázcirkó fűtés, padló hőleadóval
- beépített hűtő - fűtő klíma
- rejtett redőnytok kialakítás
- napelem csövezés, előkészítés ( a jövőbeni kiépítés során nem kell a házat szétverni )
- utcafronti kerítés kivételével minden kerítés benne van az árban, a két lakás közötti elválasztó is.
- " A " energetikai besorolás
- gépkocsi felhajtó, illetve körben a járda is térkőbel kialakítva .
- 3 % - os hitelre alkalmas
- belső kialakítás, csempék, lamináltak, beltéri ajtók, stb... választhatóak, vevő igénye szerint készül.
Az út jelenleg föld út, de a szerződés alá van írva az önkormányzattal miszerint, 2026 nyárra, ( mire elkészül az ingatlan ) elkészítik a közvilágítással együtt.
Várható átadás : 2026 nyara
Ha felkeltettem az érdeklődését, kérem hívjon bizalommal.
Az ingatlan FÖLDSZINTES, konyha - étkező - nappali + 3 szobás, külön fürdőszoba + háztartási helyiség kialakítású, illetve a lakással kapcsolatos egy 22,66 m2 - es garázs.
Az ingatlan beépített területe : 108 m2 + egy : 15 m2 - es terasz tartozik hozzá.
Az ikerház 2 lakása nem egymáson átjárós, mindkét része utcai bejáratos, saját utcafronttal rendelkezik.
A szumma telek 890 m2 , tehát lakásonkénti terület : 455 m2 .
Műszaki jellemzői :
- 30 - as POROTHERM NF tégla falazat
- 10 cm grafit szigetelés
- 3 rtg műanyag ablakok, belül fehér, kivül szines tokkal
- gázcirkó fűtés, padló hőleadóval
- beépített hűtő - fűtő klíma
- rejtett redőnytok kialakítás
- napelem csövezés, előkészítés ( a jövőbeni kiépítés során nem kell a házat szétverni )
- utcafronti kerítés kivételével minden kerítés benne van az árban, a két lakás közötti elválasztó is.
- " A " energetikai besorolás
- gépkocsi felhajtó, illetve körben a járda is térkőbel kialakítva .
- 3 % - os hitelre alkalmas
- belső kialakítás, csempék, lamináltak, beltéri ajtók, stb... választhatóak, vevő igénye szerint készül.
Az út jelenleg föld út, de a szerződés alá van írva az önkormányzattal miszerint, 2026 nyárra, ( mire elkészül az ingatlan ) elkészítik a közvilágítással együtt.
Várható átadás : 2026 nyara
Ha felkeltettem az érdeklődését, kérem hívjon bizalommal.
Registration Number
U0049059
Property Details
Sales
for sale
Legal Status
new
Character
house
Construction Method
brick
Net Size
108 m²
Gross Size
123 m²
Plot Size
445 m²
Size of Terrace / Balcony
15 m²
Heating
Gas circulator
Ceiling Height
270 cm
Orientation
East
View
Green view
Condition
Excellent
Condition of Facade
Excellent
Neighborhood
quiet, green
Year of Construction
2025
Number of Bathrooms
2
Garage
Included in the price
Garage Spaces
1
Water
Available
Gas
Available
Electricity
Available
Sewer
Available
Rooms
living room
21.5 m²
open-plan kitchen and dining room
8.16 m²
room
12.4 m²
room
10.4 m²
room
10.4 m²
bathroom
4.8 m²
utility room
5 m²
garage
22.66 m²
Plébán László
Credit Expert