data_sheet.details.realestate.section.main.otthonstart_flag.label
For sale new construction family house,
U0048999
Cegléd
77,000,000 Ft
216,000 €
- 86m²
- 3 Rooms
Cegléden, a Termálfürdő közelében – ÚJ ÉPÍTÉSŰ, KULCSRAKÉSZ CSALÁDI HÁZ ELADÓ!
Cegléden, kertvárosias környezetben, közvetlenül a főútvonalon kínáljuk megvételre ezt a modern, energiatakarékos, épülő családi házat. A beruházás magas műszaki tartalommal, korszerű technológiákkal készül, így hosszú távon alacsony fenntartási költséget biztosít leendő tulajdonosa számára.
Főbb műszaki jellemzők:
- Egyedi hőszivattyús fűtésrendszer padlófűtéssel
- Téglaépítésű szerkezet, kívül 15 cm hőszigeteléssel (növelhető minimális felárral)
- Burkolatok, szerelvények egyedi igény szerint megválaszthatók
- Elektromos áram és víz bekötve, kiépítve, házi szennyvíz aknával
A kulcsrakész ár tartalmazza az utcafronti kerítést, a kétszárnyú kaput és a kiskaput (3D fémkerítés, beton lábazattal, 1,7 m magasságban)
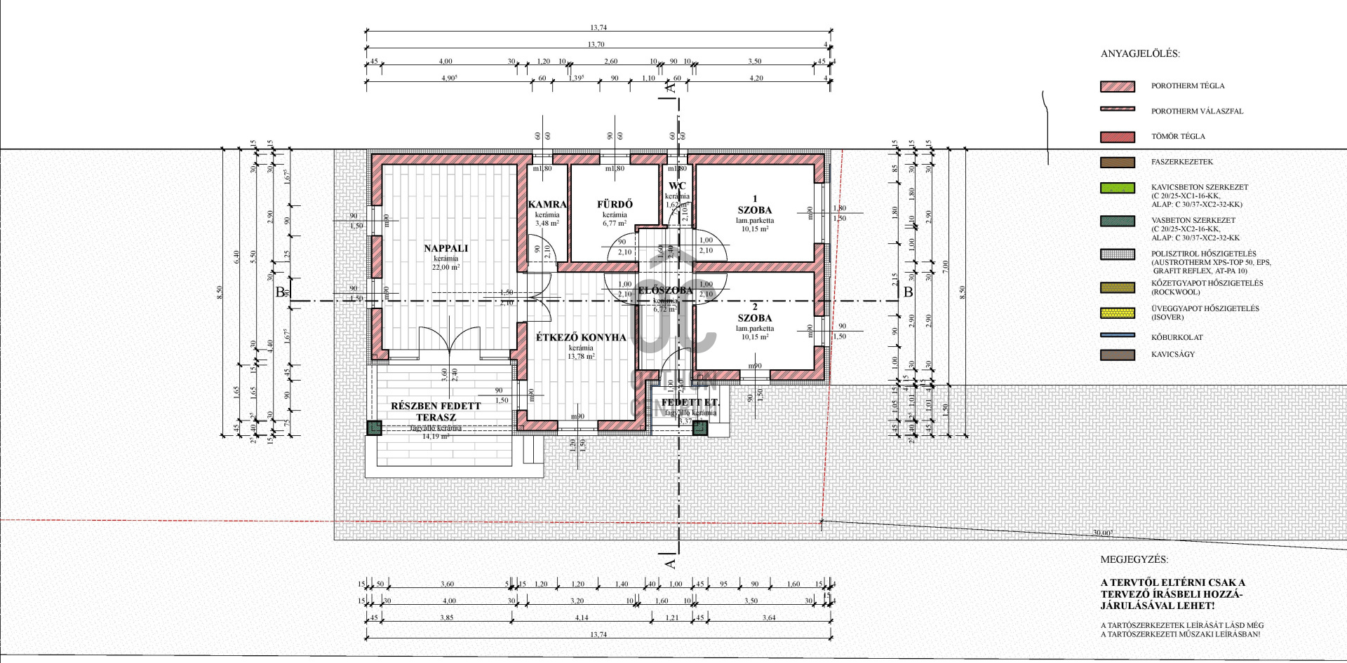
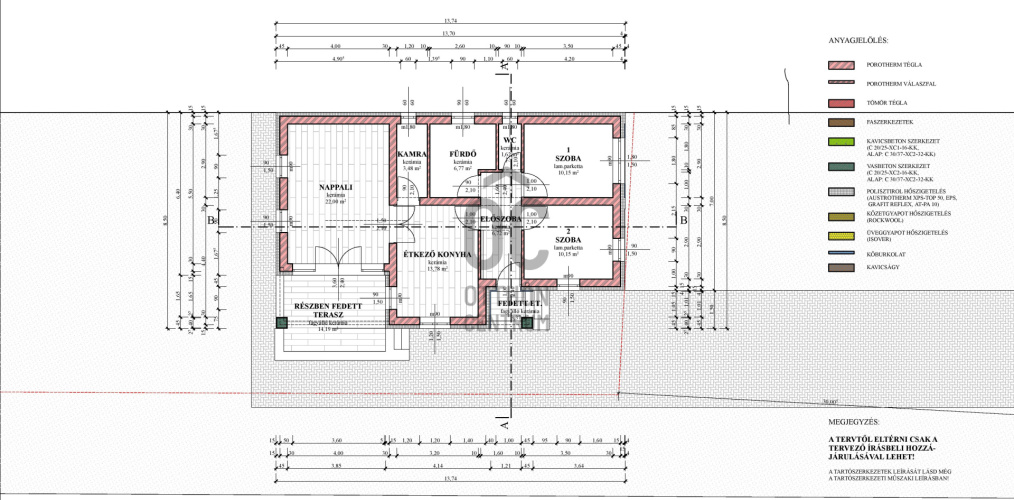
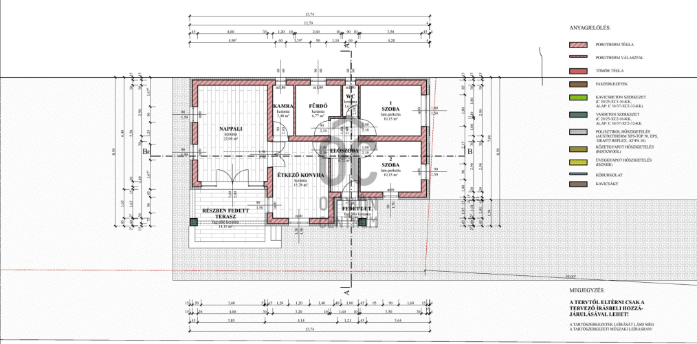
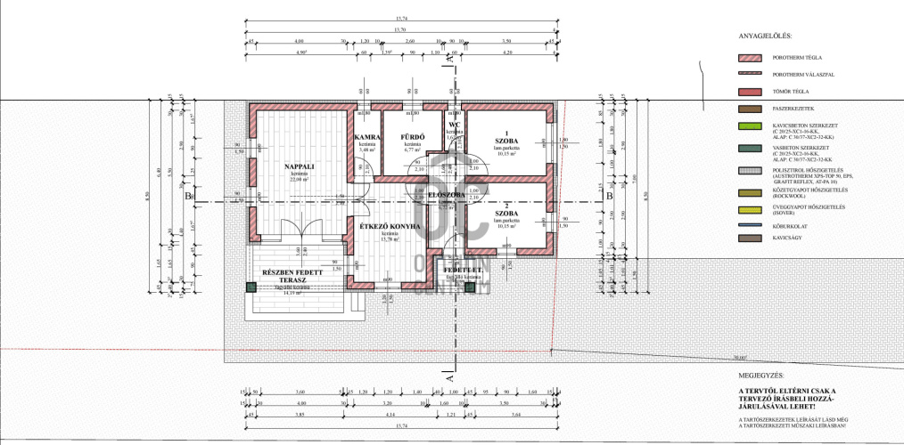
Méretek:
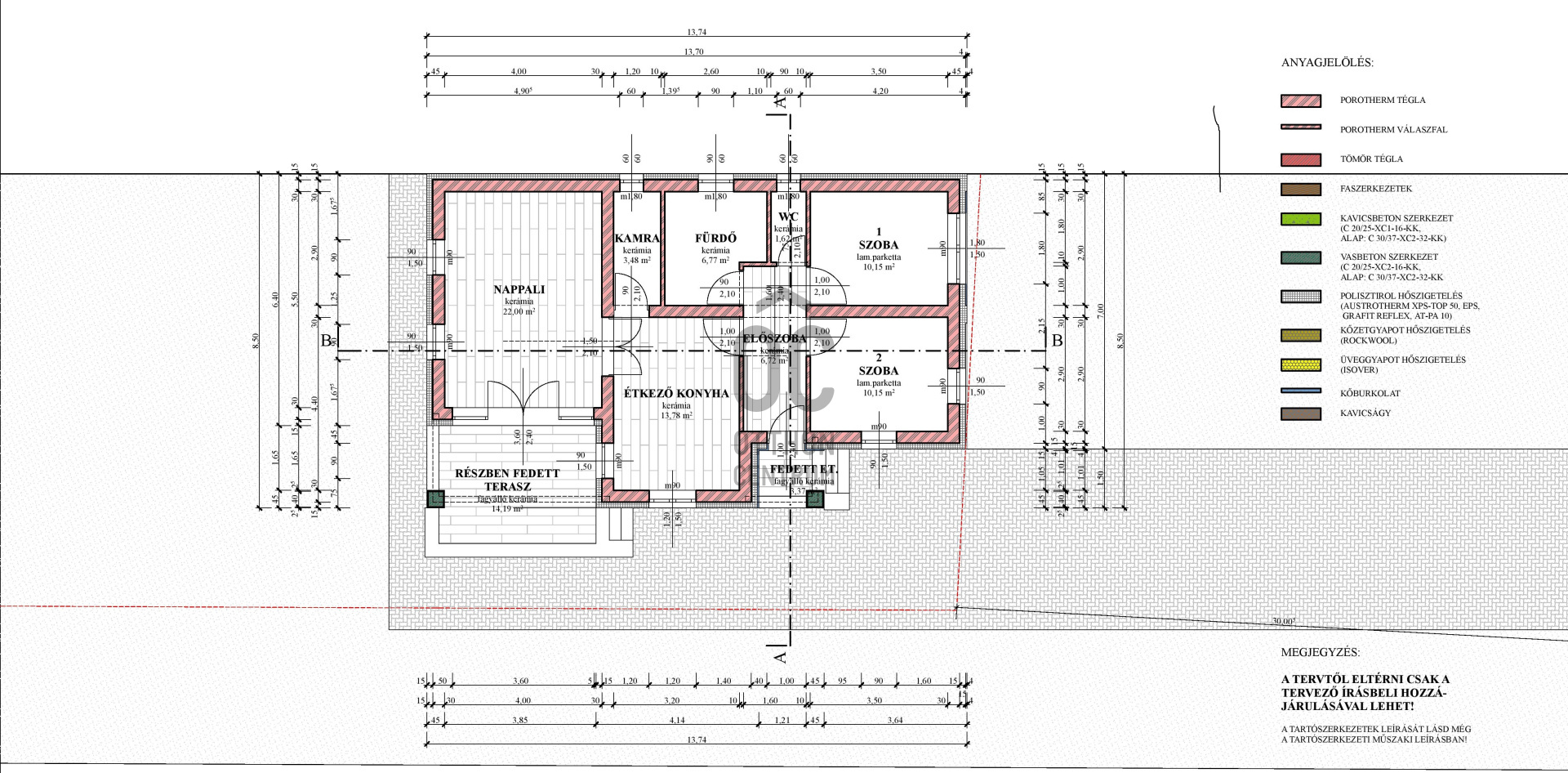
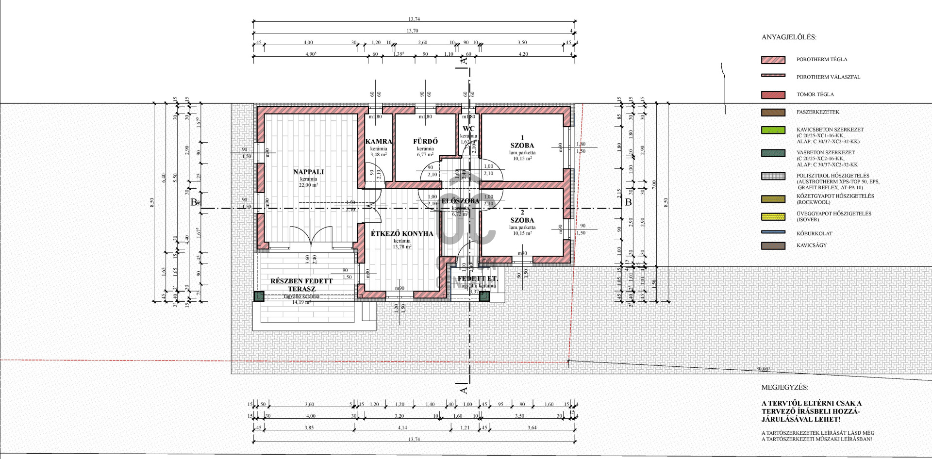
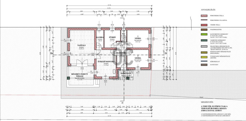
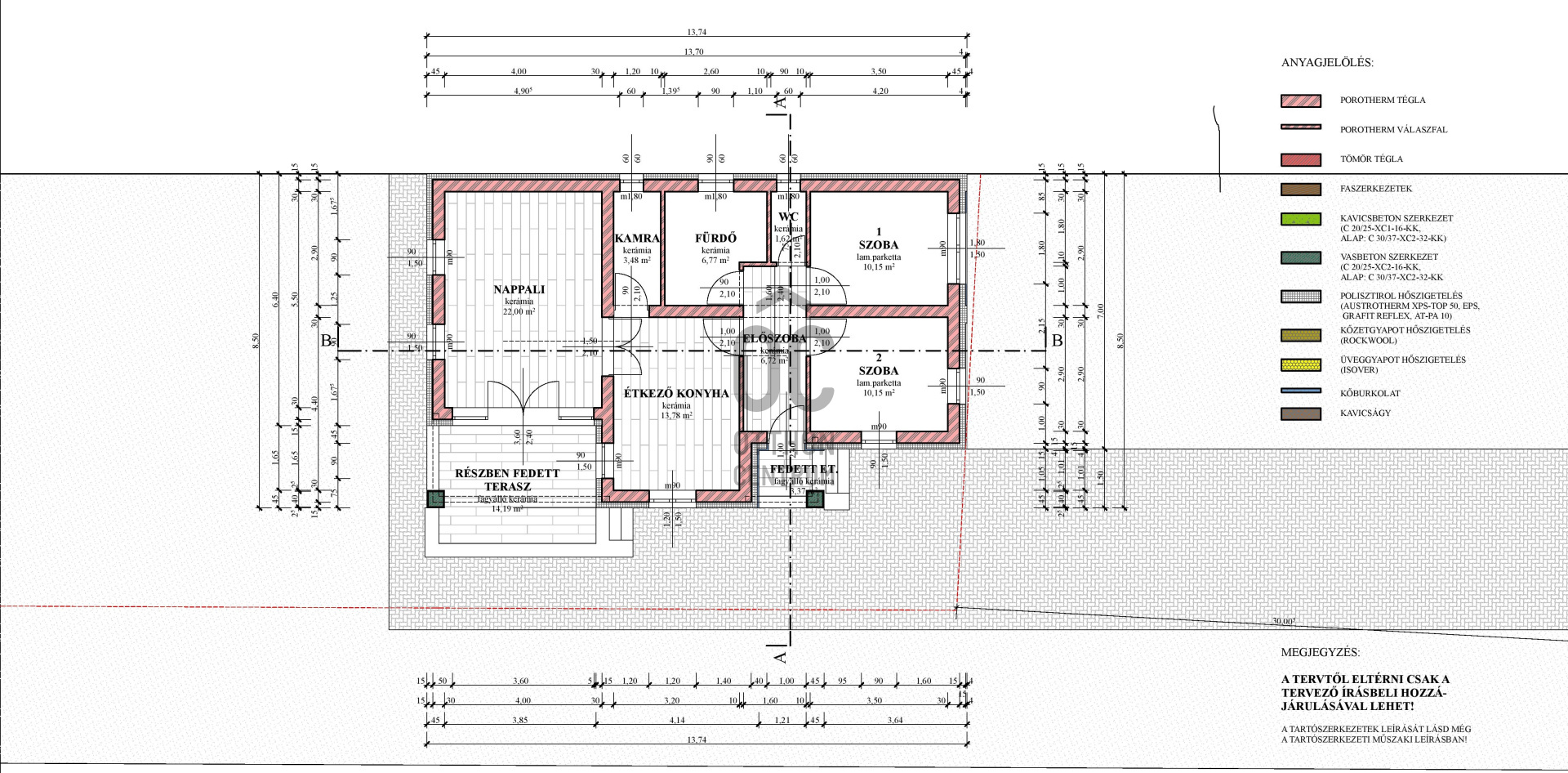
- Nettó alapterület: 77,47 m²
- Teraszok: 17,56 m²
- Összterület: 95,03 m²
Átadás: a szerződéskötéstől számított 10–12 hónapon belül
Irányár: 77 000 000 Ft
Amennyiben hitelt szeretne, úgy az Otthon Centrum az ország egyik legnagyobb és legmegbízhatóbb hitelközvetítőjeként teljes körű és
díjmentes hitelügyintézéssel, biztosításkötéssel áll rendelkezésére!
Kérje személyre szabott ajánlatunkat Kollégáinktól!
A hirdetésben szereplő információk a megbízótól kapott adatok alapján készültek, pontosságukért felelősséget nem vállalunk! Az energetikai tanúsítvány besorolása és megadása a megbízó felelőssége. A megadott energetikai tanúsítványokat nem ellenőrizzük, azok valódiságáért felelősséget nem vállalunk!
Főbb műszaki jellemzők:
- Egyedi hőszivattyús fűtésrendszer padlófűtéssel
- Téglaépítésű szerkezet, kívül 15 cm hőszigeteléssel (növelhető minimális felárral)
- Burkolatok, szerelvények egyedi igény szerint megválaszthatók
- Elektromos áram és víz bekötve, kiépítve, házi szennyvíz aknával
A kulcsrakész ár tartalmazza az utcafronti kerítést, a kétszárnyú kaput és a kiskaput (3D fémkerítés, beton lábazattal, 1,7 m magasságban)
Méretek:
- Nettó alapterület: 77,47 m²
- Teraszok: 17,56 m²
- Összterület: 95,03 m²
Átadás: a szerződéskötéstől számított 10–12 hónapon belül
Irányár: 77 000 000 Ft
Amennyiben hitelt szeretne, úgy az Otthon Centrum az ország egyik legnagyobb és legmegbízhatóbb hitelközvetítőjeként teljes körű és
díjmentes hitelügyintézéssel, biztosításkötéssel áll rendelkezésére!
Kérje személyre szabott ajánlatunkat Kollégáinktól!
A hirdetésben szereplő információk a megbízótól kapott adatok alapján készültek, pontosságukért felelősséget nem vállalunk! Az energetikai tanúsítvány besorolása és megadása a megbízó felelőssége. A megadott energetikai tanúsítványokat nem ellenőrizzük, azok valódiságáért felelősséget nem vállalunk!
Registration Number
U0048999
Property Details
Sales
for sale
Legal Status
new
Character
house
Construction Method
brick
Net Size
86 m²
Gross Size
95 m²
Plot Size
912 m²
Size of Terrace / Balcony
18 m²
Heating
heat pump
Ceiling Height
260 cm
Orientation
North-West
Condition
Excellent
Condition of Facade
Excellent
Neighborhood
good transport
Year of Construction
2025
Number of Bathrooms
1
Condominium Garden
yes
Water
Available
Gas
On the street
Electricity
Available
Rooms
entryway
7 m²
open-plan kitchen and dining room
14 m²
living room
22 m²
pantry
3 m²
bathroom
7 m²
toilet-washbasin
1 m²
room
10 m²
room
10 m²