data_sheet.details.realestate.section.main.otthonstart_flag.label
For sale new construction semi-detached house,
U0048997
Budapest XXII. kerület, Nagytétény
109,000,000 Ft
284,000 €
- 75m²
- 3 Rooms
NAGYTÉTÉNYBEN, CSENDES KERTVÁROSI környezetben, ÚJ ÉPÍTÉSŰ, IKERHÁZ ELADÓ !!!
2026 első félévi KÖLTÖZÉSSEL XXII. kerületben, Nagytétényben, nettó 75 m2-es hasznos alapterületű, nappali + 2 szobás (teraszos), ÚJ ÉPÍTÉSŰ, IKERHÁZAT kínálunk eladásra!
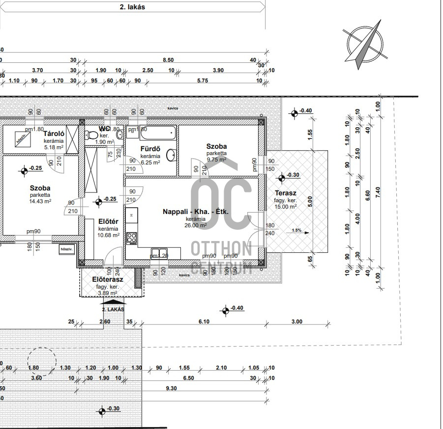
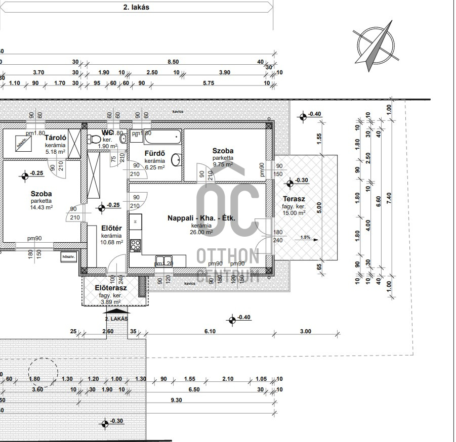
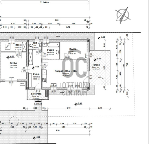
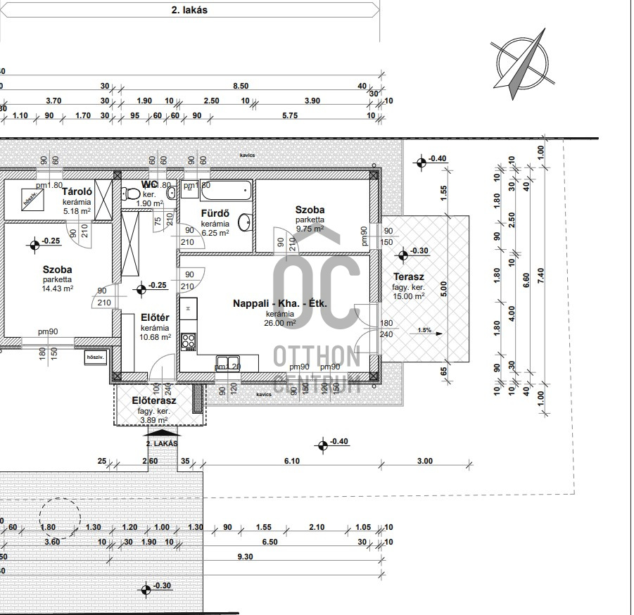
FÖLDSZINT:
Nettó: 74,5 m2 lakórész + 15 m2 terasz + 4 elő-terasz
Az ingatlanhoz saját, kizárólagos használatú, lekerített TELEKRÉSZ tartozik.
Műszaki információk:
Külső falazat: Leier 30 cm-es tégla, 10 cm-es Dryvit hőszigeteléssel, tetőszigetelés 30 cm-es Knauf üveggyapot, hőtükör fólia, diffúziós fólia. Terrán tetőcserép, szellőző cserepekkel kiegészítve.
Műanyag nyílászárók: FENSTHERM FUTURE vagy Kömmerling 5 légkamrás, 3 rétegű üvegezéssel, résszellőző funkció.
A fűtést és a meleg vizet 8 KW- os DAIKIN ALTHERMA HŐSZIVATTYÚ biztosítja, a hidegburkolattal rendelkező terekben padlófűtéssel, egyéb helyiségekben Vogel & Noote lapradiátorokkal kiegészítve.
A vételár tartalmazza a teljes riasztó rendszer kiépítését, valamint a klíma kiállás kiépítését (kül – és beltéri egységet NEM), valamin a napelem rendszer elektromos előkészítését!
A vételár NEM tartalmazza a hideg-meleg burkolatokat, a redőnyöket, szúnyoghálókat, a beltéri ajtókat, riasztóberendezést, csaptelepeket, valamint a szanitereket!
Ezek munkadíja viszont az árban foglaltatik!
Külön mérőórák, önálló telekrész!
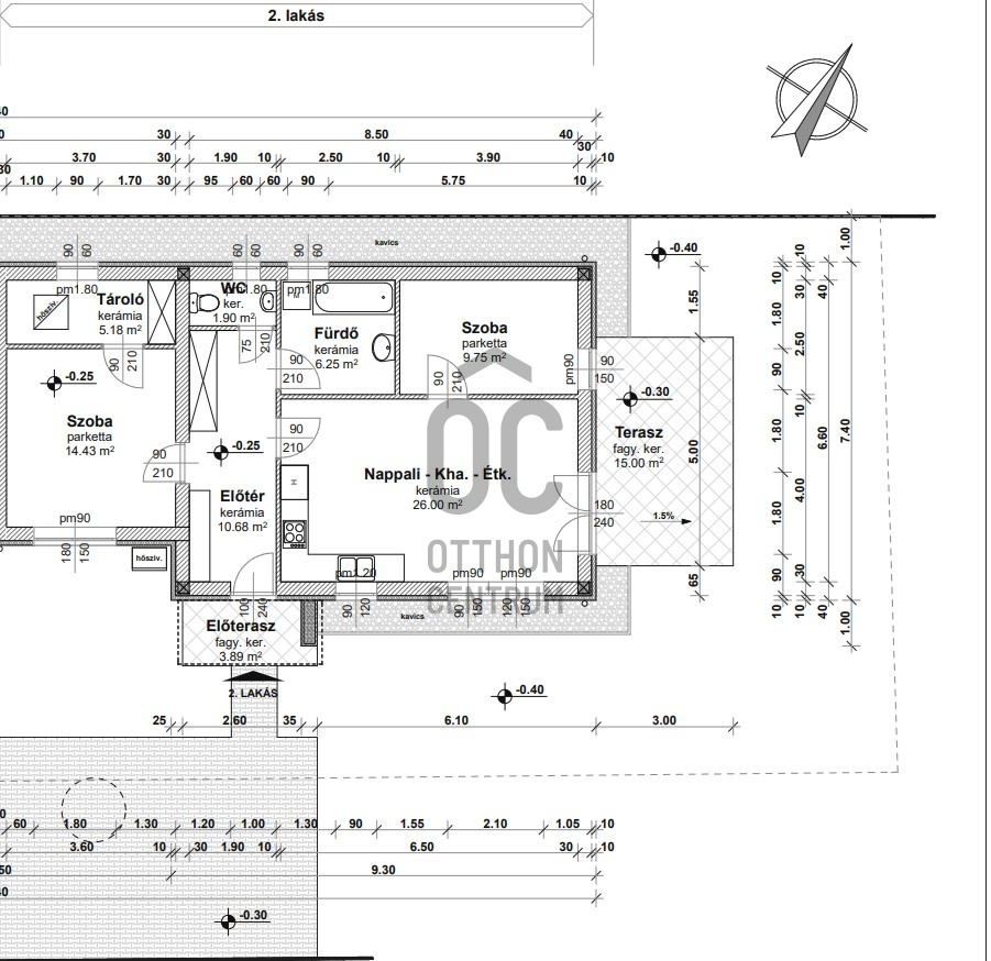
MÉRETEK, TÁJOLÁS, ELRENDEZÉS, AZ ALAPRAJZON!
(Belső átalakítás a vevői igény szerint jelenleg még változtatható, alakítható)
KIVÁLÓ KÖZLEKEDÉSI LEHETŐSÉGEK, iskola, óvoda, bölcsőde, rendelő, Campona, Lidl, Aldi, minden szükséges szolgáltatás karnyújtásnyira elérhető.
Megtekinthető elkészült REFERENCIA munkák, CSOK PLUSZ, kedvezményes HITELEK FELVEHETŐK!
FÖLDSZINT:
Nettó: 74,5 m2 lakórész + 15 m2 terasz + 4 elő-terasz
Az ingatlanhoz saját, kizárólagos használatú, lekerített TELEKRÉSZ tartozik.
Műszaki információk:
Külső falazat: Leier 30 cm-es tégla, 10 cm-es Dryvit hőszigeteléssel, tetőszigetelés 30 cm-es Knauf üveggyapot, hőtükör fólia, diffúziós fólia. Terrán tetőcserép, szellőző cserepekkel kiegészítve.
Műanyag nyílászárók: FENSTHERM FUTURE vagy Kömmerling 5 légkamrás, 3 rétegű üvegezéssel, résszellőző funkció.
A fűtést és a meleg vizet 8 KW- os DAIKIN ALTHERMA HŐSZIVATTYÚ biztosítja, a hidegburkolattal rendelkező terekben padlófűtéssel, egyéb helyiségekben Vogel & Noote lapradiátorokkal kiegészítve.
A vételár tartalmazza a teljes riasztó rendszer kiépítését, valamint a klíma kiállás kiépítését (kül – és beltéri egységet NEM), valamin a napelem rendszer elektromos előkészítését!
A vételár NEM tartalmazza a hideg-meleg burkolatokat, a redőnyöket, szúnyoghálókat, a beltéri ajtókat, riasztóberendezést, csaptelepeket, valamint a szanitereket!
Ezek munkadíja viszont az árban foglaltatik!
Külön mérőórák, önálló telekrész!
MÉRETEK, TÁJOLÁS, ELRENDEZÉS, AZ ALAPRAJZON!
(Belső átalakítás a vevői igény szerint jelenleg még változtatható, alakítható)
KIVÁLÓ KÖZLEKEDÉSI LEHETŐSÉGEK, iskola, óvoda, bölcsőde, rendelő, Campona, Lidl, Aldi, minden szükséges szolgáltatás karnyújtásnyira elérhető.
Megtekinthető elkészült REFERENCIA munkák, CSOK PLUSZ, kedvezményes HITELEK FELVEHETŐK!
Registration Number
U0048997
Property Details
Sales
for sale
Legal Status
new
Character
house
Construction Method
brick
Net Size
75 m²
Gross Size
90 m²
Plot Size
157 m²
Size of Terrace / Balcony
15 m²
Garden Size
162 m²
Heating
heat pump
Ceiling Height
265 cm
Orientation
South-East
Condition
Excellent
Condition of Facade
Excellent
Neighborhood
quiet, good transport
Year of Construction
2025
Number of Bathrooms
1
Condominium Garden
yes
Water
Available
Gas
On the street
Electricity
Available
Sewer
Available
Rooms
open-plan kitchen and living room
26 m²
room
9.75 m²
room
14.43 m²
storage
5.18 m²
bathroom
6.25 m²
toilet-washbasin
1.9 m²
entryway
10.68 m²
terrace
15 m²
Pongó Miklós
Credit Expert