data_sheet.details.realestate.section.main.otthonstart_flag.label
For sale new construction apartment,
U0048978
Győr
61,190,000 Ft
162,000 €
- 43.7m²
- 2 Rooms
- ground floor
Ha valami igazán értékeset szeretnél, vagy csak egyszerűen a város igazi központjában szeretnél lakni, ez a hirdetés neked szól!
Győrben, a szó szoros értelmében a belvárosban, polgári környezetben, csak neked épül, leendő ingatlanod.
- Klasszikus polgári társasház
- Teljeskörű átépítés és műszaki felújítás
- Örökségvédelmi előírásoknak megfelelő milyenségben és minőségben
- Kielégítve minden modern energetikai és esztétikai igényt
Az emeltszintű fűtéskész átadás tervezett időpontja : 2025. december
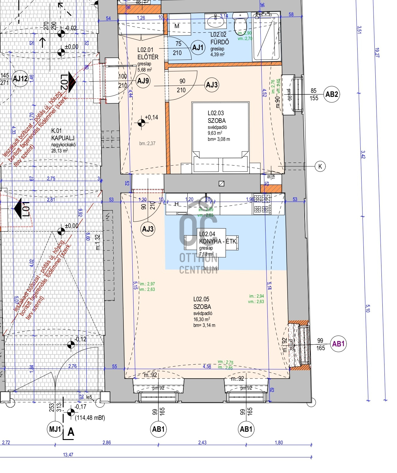
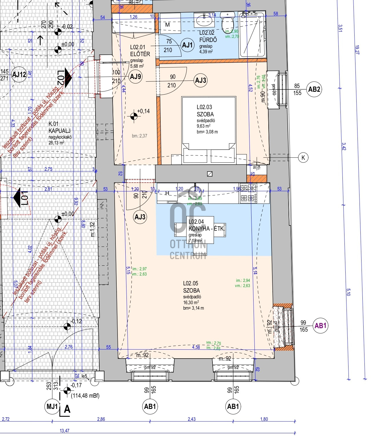
* Az ingatlan a társasház földszintjén helyezkedik el
* Hasznos alapterülete : 43,71nm
* Elrendezése nappali - konyha + hálószoba + fürdő - wc
* Fűtése házközponti gázkazán, egyedi méréssel
* A klíma előkészítés a vételár részét képezi
* A nyílászárók egyedi gyártású Módos Fa ablakok
A lakáshoz kötelező megvásárolni 1 db tárlók, az alábbiak közül :
P064,57nm2 056 500,-
P095,62nm2 529 000,-
P106,91nm 3 109 500,-
A kulcsrakész befejezést, igény esetén vállalja a kivitelező.
A részletekkel, kérdéseiddel kapcsolatban keress bizalommal!
Hitelre van szüksége??
Az Otthon Centrum az ország egyik legnagyobb és legmegbízhatóbb hitelközvetítőjeként, teljes körű és díjmentes hitelügyintézéssel, biztosításkötéssel áll rendelkezésére!
Kérje személyre szabott ajánlatunkat Kollégáinktól!
Győrben, a szó szoros értelmében a belvárosban, polgári környezetben, csak neked épül, leendő ingatlanod.
- Klasszikus polgári társasház
- Teljeskörű átépítés és műszaki felújítás
- Örökségvédelmi előírásoknak megfelelő milyenségben és minőségben
- Kielégítve minden modern energetikai és esztétikai igényt
Az emeltszintű fűtéskész átadás tervezett időpontja : 2025. december
* Az ingatlan a társasház földszintjén helyezkedik el
* Hasznos alapterülete : 43,71nm
* Elrendezése nappali - konyha + hálószoba + fürdő - wc
* Fűtése házközponti gázkazán, egyedi méréssel
* A klíma előkészítés a vételár részét képezi
* A nyílászárók egyedi gyártású Módos Fa ablakok
A lakáshoz kötelező megvásárolni 1 db tárlók, az alábbiak közül :
P064,57nm2 056 500,-
P095,62nm2 529 000,-
P106,91nm 3 109 500,-
A kulcsrakész befejezést, igény esetén vállalja a kivitelező.
A részletekkel, kérdéseiddel kapcsolatban keress bizalommal!
Hitelre van szüksége??
Az Otthon Centrum az ország egyik legnagyobb és legmegbízhatóbb hitelközvetítőjeként, teljes körű és díjmentes hitelügyintézéssel, biztosításkötéssel áll rendelkezésére!
Kérje személyre szabott ajánlatunkat Kollégáinktól!
Registration Number
U0048978
Property Details
Sales
for sale
Legal Status
new
Character
apartment
Construction Method
brick
Net Size
43.7 m²
Gross Size
43.7 m²
Heating
central heating
Ceiling Height
240 cm
Orientation
South
Staircase Type
enclosed staircase
Condition
Excellent
Condition of Facade
Excellent
Condition of Staircase
Excellent
Year of Construction
2025
Number of Bathrooms
1
Position
street-facing
Water
Available
Gas
Available
Electricity
Available
Sewer
Available
Storage
Mandatory to buy
Rooms
room
9.63 m²
open-plan kitchen and living room
16.3 m²
bathroom
4.39 m²