data_sheet.details.realestate.section.main.otthonstart_flag.label
For sale new construction semi-detached house,
U0048896
Kiskunlacháza
70,000,000 Ft
184,000 €
- 72m²
- 4 Rooms
Kiskunlacháza újépítésű ikerház
1 HÓNAPON BELÜL KÖLTÖZHETŐ
HÁZ:
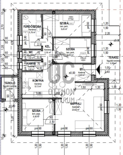
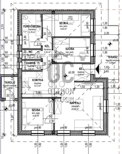
- br. 85 nm, nettó 72 nm nappali + 3 szoba
- 2025-ben épül
- minőségi anyagokból
- Porotherm tégla + dryvit szigetelés (12 cm ), Bramac tetőcserép
- biztonsági bejárati ajtó, 3 rétegű műanyag nyílászárók
- hőszívattyús fűtésrendszer - padlófűtés
- remek elosztású , napfényes
TELEK:
- 320 nm telek
- autóbeálló, járdák
- körbekerítve
Elhelyezkedés:
- Budapesttől 30 percre
- központi elhelyezkedés
- Éttermek, bevásárlási lehetőség, óvoda, iskola valamint a busz kényelmes sétával elérhető
HITEL ÉS CSOK igényelhető! Minden hivatalos ügyintézésben segítünk!
20 %-TÓL MÁR MOST FOGLALHATÓ!
ÁTADÁS: 2025.12 vége
1 HÓNAPON BELÜL KÖLTÖZHETŐ
HÁZ:
- br. 85 nm, nettó 72 nm nappali + 3 szoba
- 2025-ben épül
- minőségi anyagokból
- Porotherm tégla + dryvit szigetelés (12 cm ), Bramac tetőcserép
- biztonsági bejárati ajtó, 3 rétegű műanyag nyílászárók
- hőszívattyús fűtésrendszer - padlófűtés
- remek elosztású , napfényes
TELEK:
- 320 nm telek
- autóbeálló, járdák
- körbekerítve
Elhelyezkedés:
- Budapesttől 30 percre
- központi elhelyezkedés
- Éttermek, bevásárlási lehetőség, óvoda, iskola valamint a busz kényelmes sétával elérhető
HITEL ÉS CSOK igényelhető! Minden hivatalos ügyintézésben segítünk!
20 %-TÓL MÁR MOST FOGLALHATÓ!
ÁTADÁS: 2025.12 vége
Registration Number
U0048896
Property Details
Sales
for sale
Legal Status
new
Character
house
Construction Method
brick
Net Size
72 m²
Gross Size
80 m²
Plot Size
320 m²
Heating
heat pump
Ceiling Height
270 cm
Orientation
South-West
Condition
Excellent
Condition of Facade
Excellent
Year of Construction
2025
Number of Bathrooms
1
Water
Available
Gas
On the street
Electricity
Available
Sewer
Available
Rooms
entryway
3 m²
open-plan kitchen and living room
32 m²
room
10 m²
room
9 m²
room
8 m²
toilet
2 m²
pantry
2 m²
terrace
8 m²
Joó Krisztina
Credit Expert