Elérhető Otthon Start hitellel
Eladó újépítésű családi ház, U0049009
Kiskunlacháza

84 000 000 Ft

220 000 €

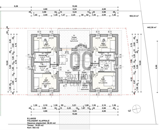
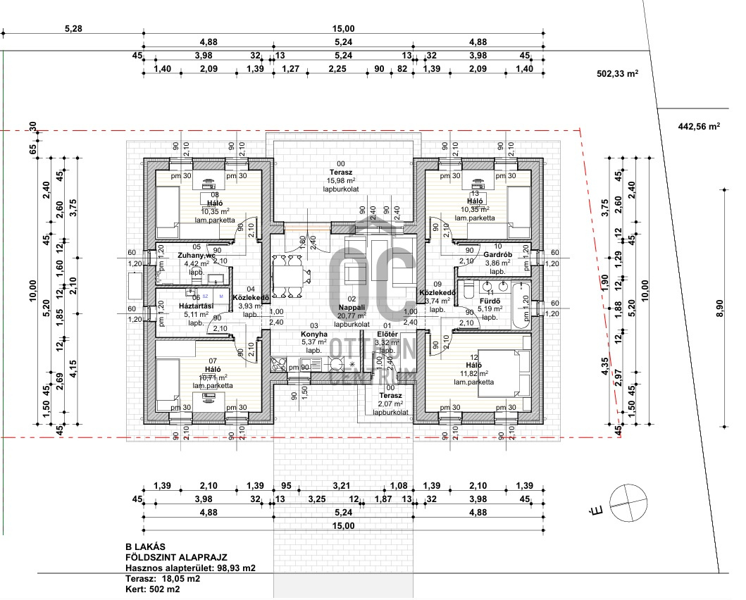
  • 98,9m²
  • 5 szoba

Eladó Kiskunlacházán

• újépítésű (tégla)
• ÖNÁLLÓ családi ház
• nettó 99 m2
• amerikai konyhás nappali + 4 hálószoba
• fűtése: hőszivattyú + padlófűtés
• választható burkolatok
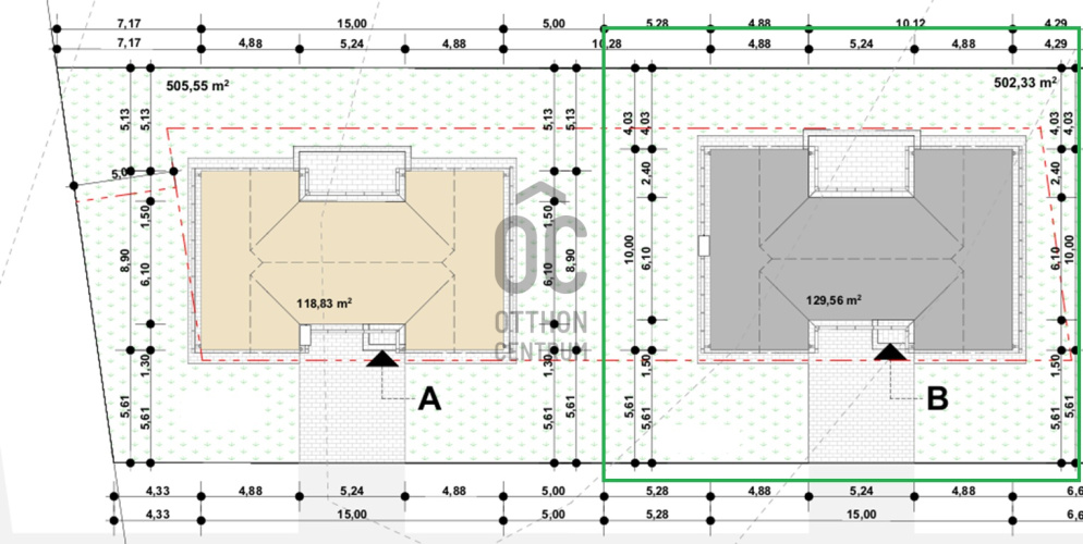
• telek: 502 m2

Regisztrációs szám

U0049009

Az ingatlan adatai

Értékesités
eladó
Jogi státusz
új
Jelleg
ház
Építési mód
tégla
Méret
98,9 m²
Bruttó méret
98,9 m²
Telek méret
502 m²
Terasz / erkély mérete
16 m²
Fűtés
hőszivattyú
Belmagasság
260 cm
Tájolás
Dél-kelet
Állapot
Kiváló
Homlokzat állapota
Kiváló
Környék
csendes
Építés éve
2025
Fürdőszobák száma
2
Társaház kert
igen
Víz
Van
Villany
Van
Csatorna
Van

Helyiségek

nappali-konyha
26.14 m²
előszoba
3.32 m²
hálószoba
11.82 m²
fürdőszoba-wc
5.19 m²
gardrób
3.86 m²
hálószoba
10.35 m²
hálószoba
10.35 m²
zuhanyzó
4.42 m²
háztartási helyiség
5.11 m²
hálószoba
10.71 m²
közlekedő
3.93 m²
terasz
15.98 m²
Joó Krisztina
Joó Krisztina

Hitelszakértő

Irodánk kínálatából - Szigethalom

eladó tanya

Index image
90

eladó nyaraló

Index image
24

eladó ikerház

Index image
Elérhető Otthon Start hitellel
20

for sale family house

Index image
data_sheet.details.realestate.section.main.otthonstart_flag.label
24

eladó telek

Index image
8

eladó lakás

Index image
33