187,000,000 Ft
479,000 €
- 122m²
- 6 Rooms








Új építésű családi ház Rákosszentmihály szívében – kényelem, kiváló közlekedés!
Ha szeretnél kiszabadulni a belváros zajából, de nem akarsz órákat tölteni ingázással, akkor ez a rákosszentmihályi otthon tökéletes választás lehet számodra!
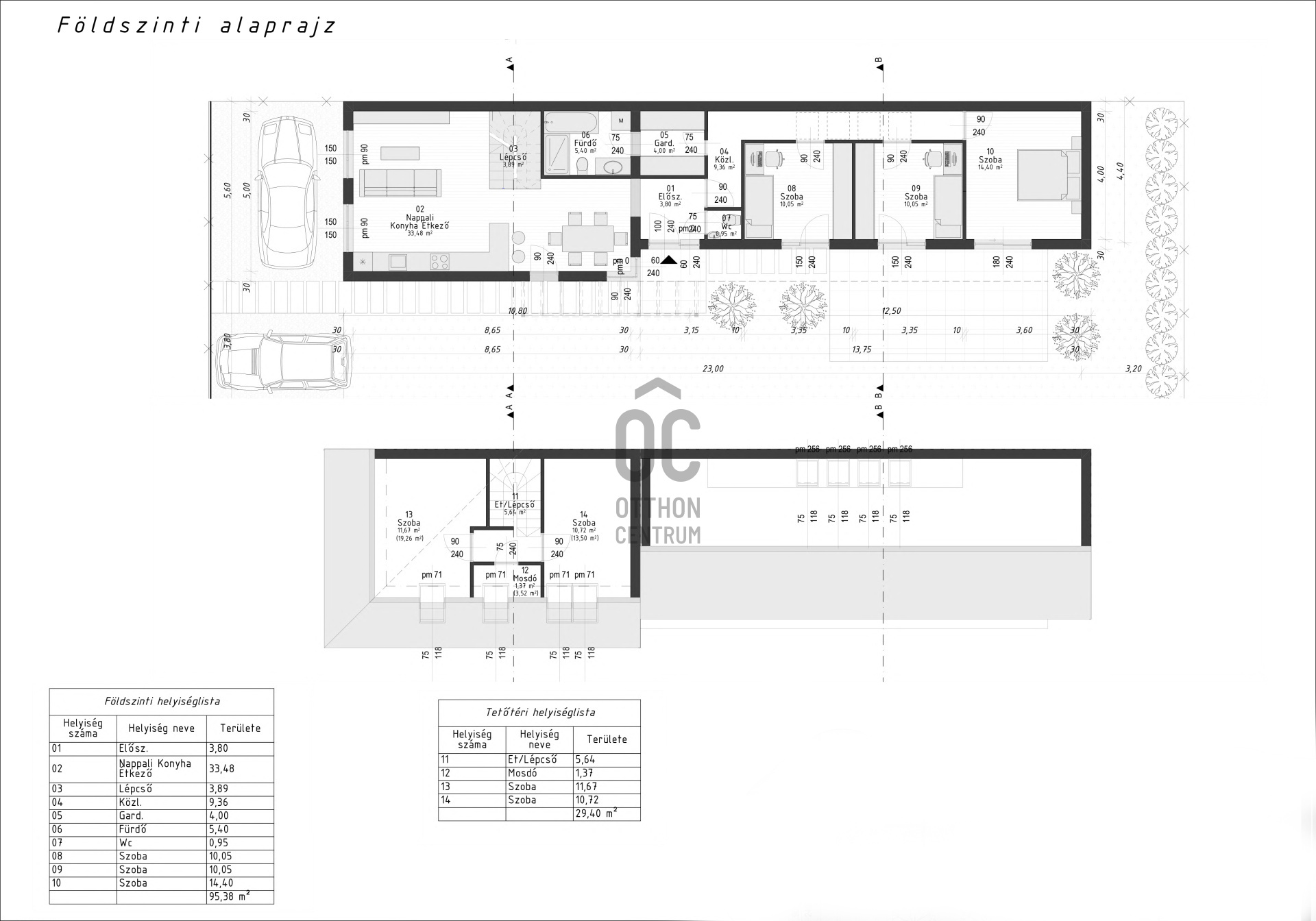
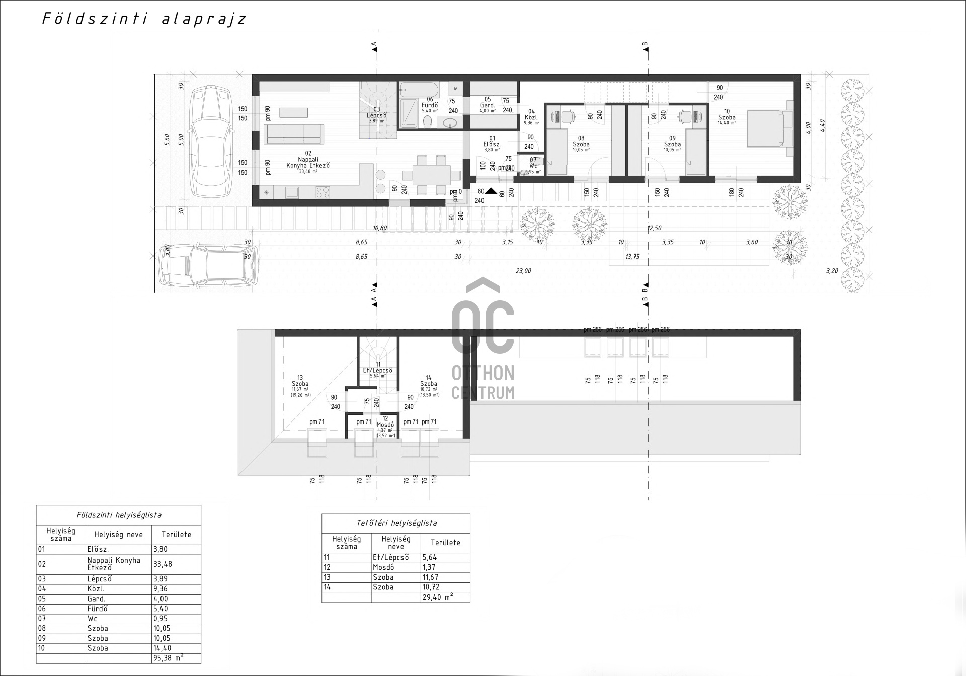
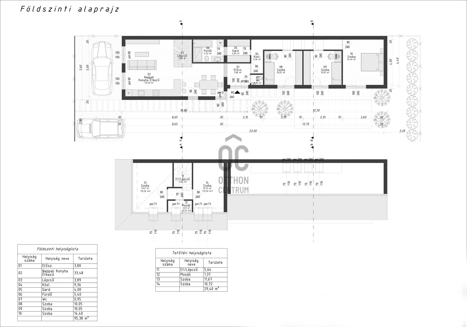
A XVI. kerület egyik legkedveltebb részén, a Füredi úti lakótelep és az Örs vezér tere közelében kínálok eladásra egy amerikai konyhás nappali + 5 szobás, 122 m2-es, belső kétszintes, új építésű lakást, amelyhez 300 m² saját kert és 2 felszíni parkolóhely is tartozik.
A modern 2 ház 484 m²-es telken épül, saját kerttel és 2 db parkolóval.
A fejlesztő különösen nagy hangsúlyt fektetett a magas műszaki minőségre és a fenntarthatóságra:
- Fan-coil fűtési és hűtési rendszer gondoskodik az egész éves komfortos hőmérsékletről.
- 3 rétegű, redőnyös nyílászárók és 15 cm-es dryvit hőszigetelés biztosítják a csendet és az energiatakarékosságot.
- A 2 kW-os NAPELEMRENDSZER és az A+++ energetikai besorolás pedig garantálják az alacsony rezsit és a környezettudatos működést.
Környék, amit imádni fogsz:
RÁKOSSZENTMIHÁLY egyre népszerűbb azok körében, akik a nyugodt, zöldövezeti életet keresik, mégis fontos számukra a gyors közlekedés és a városi kényelem.
Rendezett utcák, családias hangulat, parkok, játszóterek, iskolák, bevásárlási lehetőségek és az Őrs vezér tere mindössze néhány percre – ez mind hozzájárul ahhoz, hogy valódi otthonra lelj itt.
Ez a lakás ideális választás családoknak, pároknak vagy akár idősebbeknek, akik modern, energiatakarékos otthonra vágynak nyugodt, mégis kiválóan megközelíthető környezetben.
A XVI. kerület egyik legkedveltebb részén, a Füredi úti lakótelep és az Örs vezér tere közelében kínálok eladásra egy amerikai konyhás nappali + 5 szobás, 122 m2-es, belső kétszintes, új építésű lakást, amelyhez 300 m² saját kert és 2 felszíni parkolóhely is tartozik.
A modern 2 ház 484 m²-es telken épül, saját kerttel és 2 db parkolóval.
A fejlesztő különösen nagy hangsúlyt fektetett a magas műszaki minőségre és a fenntarthatóságra:
- Fan-coil fűtési és hűtési rendszer gondoskodik az egész éves komfortos hőmérsékletről.
- 3 rétegű, redőnyös nyílászárók és 15 cm-es dryvit hőszigetelés biztosítják a csendet és az energiatakarékosságot.
- A 2 kW-os NAPELEMRENDSZER és az A+++ energetikai besorolás pedig garantálják az alacsony rezsit és a környezettudatos működést.
Környék, amit imádni fogsz:
RÁKOSSZENTMIHÁLY egyre népszerűbb azok körében, akik a nyugodt, zöldövezeti életet keresik, mégis fontos számukra a gyors közlekedés és a városi kényelem.
Rendezett utcák, családias hangulat, parkok, játszóterek, iskolák, bevásárlási lehetőségek és az Őrs vezér tere mindössze néhány percre – ez mind hozzájárul ahhoz, hogy valódi otthonra lelj itt.
Ez a lakás ideális választás családoknak, pároknak vagy akár idősebbeknek, akik modern, energiatakarékos otthonra vágynak nyugodt, mégis kiválóan megközelíthető környezetben.
Registration Number
U0048838
Property Details
Sales
for sale
Legal Status
new
Character
house
Construction Method
brick
Net Size
122 m²
Gross Size
150 m²
Plot Size
484 m²
Size of Terrace / Balcony
30 m²
Garden Size
500 m²
Heating
renewable
Ceiling Height
267 cm
Number of Levels Within the Property
2
Orientation
South-East
Condition
Excellent
Condition of Facade
Excellent
Year of Construction
2026
Number of Bathrooms
2
Condominium Garden
yes
Water
Available
Electricity
Available
Sewer
Available
Rooms
open-plan living and dining room
34 m²
bathroom-toilet
5.5 m²
bedroom
10 m²
bedroom
10 m²
bedroom
14 m²
wardrobe
4 m²
entryway
4 m²
bedroom
12 m²
bedroom
11 m²
entryway
5.5 m²
washroom
3.5 m²

Vitéz Kornél
Credit Expert