data_sheet.details.realestate.section.main.otthonstart_flag.label
For sale new construction semi-detached house,
U0048711
Gyál
112,990,000 Ft
293,000 €
- 121.8m²
- 5 Rooms
Megvételre kínálunk Gyálon csendes kis utcában ikerház felét.
A 2 lakásos lakóépület saját garázzsal és saját kert résszel rendelkezik.
Az építkezés jelen szakaszában igény szerint választható a nappali+3 hálószoba vagy a nappali+ 4 szoba kialakítás, illetve a burkolatok, a beltéri ajtók és a gépesített konyha választható.
Az ingatlan Gyál családi házas, csendes zöldövezetében, 574 m2-es telken helyezkedik el, 136 m2, 201 m2 használatú kerttel.
A ház H tarifás áramellátást kap, energetikai besorolása A+ lesz.
Tervezett átadás: 2025 december.
Az energetika besorolása A+.
Fűtés, hűtés, melegvíz:
Központi levegő–víz hőszivattyús rendszer szolgáltatja a fűtést, hűtést és a használati melegvizet.
Padlófűtés a teljes lakótérben, valamint fan-coil hűtés/fűtés a nappaliban és emeleti szobákban.
Okos vezérlés előkészítve:
Igény esetén helyiségenkénti termosztátos vezérlés és okosotthon rendszer is kialakítható.
Szerkezeti és műszaki adatok:
•Monolit vasbeton lemezalap – biztos, mozgásálló alapozás.
•Külső falak: 30 cm vastag Leier hőszigetelő tégla.
•Válaszfalak: Kiemelkedő hangszigetelésű Silka mészhomok tégla.
•Födémszerkezet: Hang- és tűzgátló tulajdonságokkal, statikai tervek szerint.
•Homlokzati hőszigetelés: 12 cm vastag EPS szigetelés.
•Tető monolit szerkezetű, szigetelés: 20 cm vastag üveggyapot, extra hőmegtartás érdekében.
Szigetelés: 20 cm vastag üveggyapot.
Nyílászárók és árnyékolástechnika:
•Biztonságos, többpontos záródású bejárati ajtók (MABISZ minősítéssel).
•Energiahatékony műanyag ablakok, belső műanyag és külső alumínium párkányokkal.
•Vakolható redőnyszekrények, opcionálisan hőszigetelt alumínium redőnyökkel és szúnyoghálókkal
Rendezett, parkosított saját kert, ideális családi programokhoz, pihenéshez vagy konyhakert kialakításához.
•A kert rendezése a vételár részét képezi.
Garázs és parkolás:
•Minden lakáshoz saját integrált garázs tartozik, közvetlen lakótéri kapcsolattal.
A lakások a CSOK+ feltételeinek megfelelnek.
Amennyiben kérdése lenne, vagy szeretné megtekinteni személyesen is, kérem hívjon bizalommal, várom.
Teljeskörű pénzügyi és jogi háttér-szolgáltatással várom kedves ügyfeleimet.
A 2 lakásos lakóépület saját garázzsal és saját kert résszel rendelkezik.
Az építkezés jelen szakaszában igény szerint választható a nappali+3 hálószoba vagy a nappali+ 4 szoba kialakítás, illetve a burkolatok, a beltéri ajtók és a gépesített konyha választható.
Az ingatlan Gyál családi házas, csendes zöldövezetében, 574 m2-es telken helyezkedik el, 136 m2, 201 m2 használatú kerttel.
A ház H tarifás áramellátást kap, energetikai besorolása A+ lesz.
Tervezett átadás: 2025 december.
Az energetika besorolása A+.
Fűtés, hűtés, melegvíz:
Központi levegő–víz hőszivattyús rendszer szolgáltatja a fűtést, hűtést és a használati melegvizet.
Padlófűtés a teljes lakótérben, valamint fan-coil hűtés/fűtés a nappaliban és emeleti szobákban.
Okos vezérlés előkészítve:
Igény esetén helyiségenkénti termosztátos vezérlés és okosotthon rendszer is kialakítható.
Szerkezeti és műszaki adatok:
•Monolit vasbeton lemezalap – biztos, mozgásálló alapozás.
•Külső falak: 30 cm vastag Leier hőszigetelő tégla.
•Válaszfalak: Kiemelkedő hangszigetelésű Silka mészhomok tégla.
•Födémszerkezet: Hang- és tűzgátló tulajdonságokkal, statikai tervek szerint.
•Homlokzati hőszigetelés: 12 cm vastag EPS szigetelés.
•Tető monolit szerkezetű, szigetelés: 20 cm vastag üveggyapot, extra hőmegtartás érdekében.
Szigetelés: 20 cm vastag üveggyapot.
Nyílászárók és árnyékolástechnika:
•Biztonságos, többpontos záródású bejárati ajtók (MABISZ minősítéssel).
•Energiahatékony műanyag ablakok, belső műanyag és külső alumínium párkányokkal.
•Vakolható redőnyszekrények, opcionálisan hőszigetelt alumínium redőnyökkel és szúnyoghálókkal
Rendezett, parkosított saját kert, ideális családi programokhoz, pihenéshez vagy konyhakert kialakításához.
•A kert rendezése a vételár részét képezi.
Garázs és parkolás:
•Minden lakáshoz saját integrált garázs tartozik, közvetlen lakótéri kapcsolattal.
A lakások a CSOK+ feltételeinek megfelelnek.
Amennyiben kérdése lenne, vagy szeretné megtekinteni személyesen is, kérem hívjon bizalommal, várom.
Teljeskörű pénzügyi és jogi háttér-szolgáltatással várom kedves ügyfeleimet.
Registration Number
U0048711
Property Details
Sales
for sale
Legal Status
new
Character
house
Construction Method
brick
Net Size
121.8 m²
Gross Size
121.8 m²
Plot Size
201 m²
Size of Terrace / Balcony
9 m²
Heating
values.realestate.futes.27
Ceiling Height
270 cm
Number of Levels Within the Property
1
Orientation
South
View
city view
Condition
Excellent
Condition of Facade
Excellent
Neighborhood
quiet, green
Year of Construction
2026
Number of Bathrooms
2
Garage
Included in the price
Garage Spaces
1
Water
Available
Electricity
Available
Sewer
Available
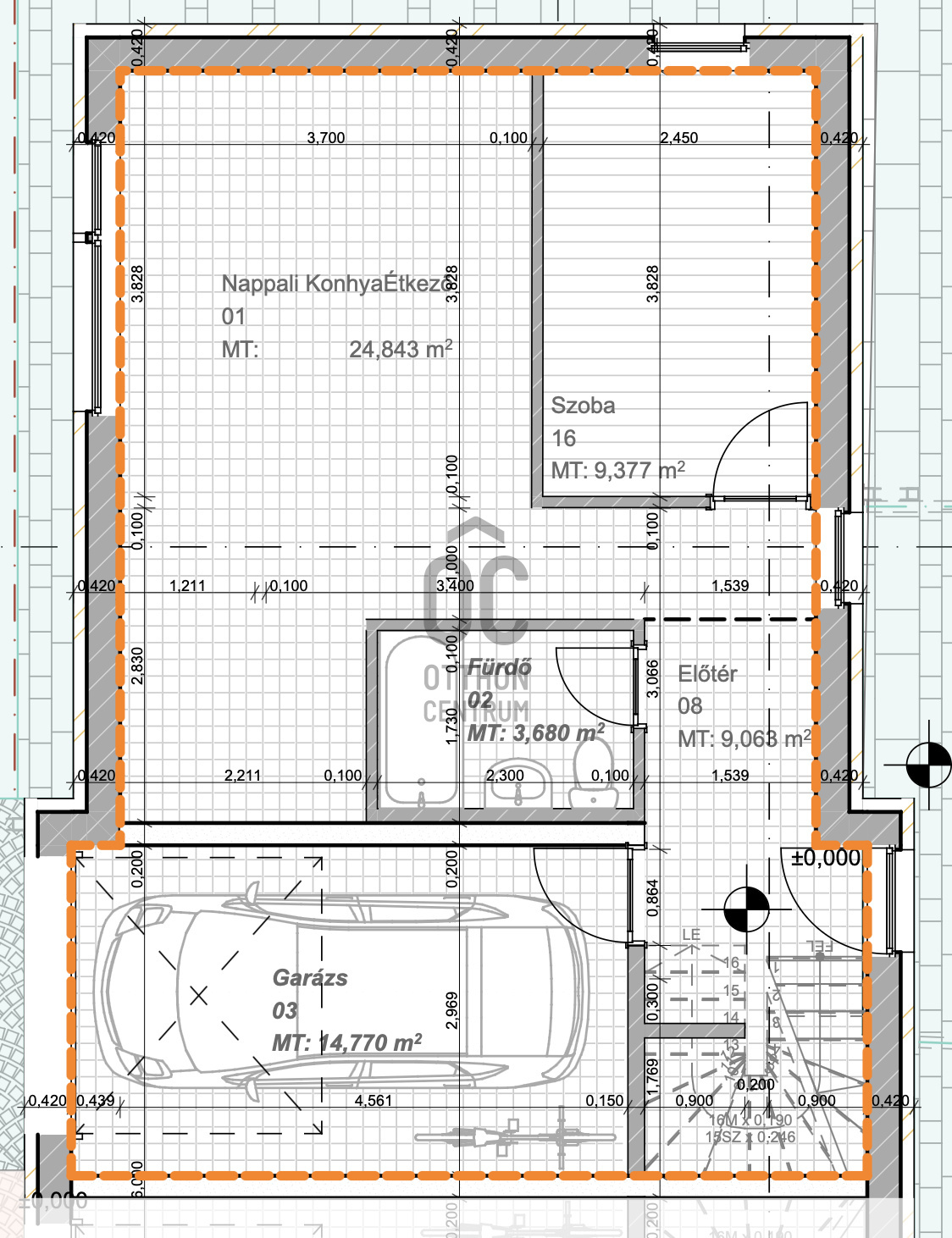
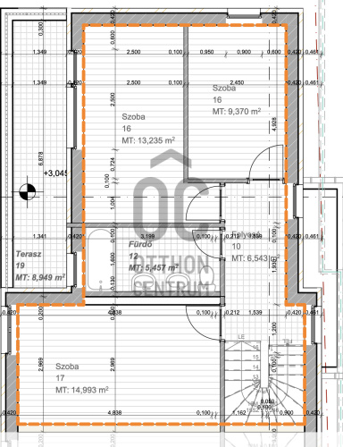
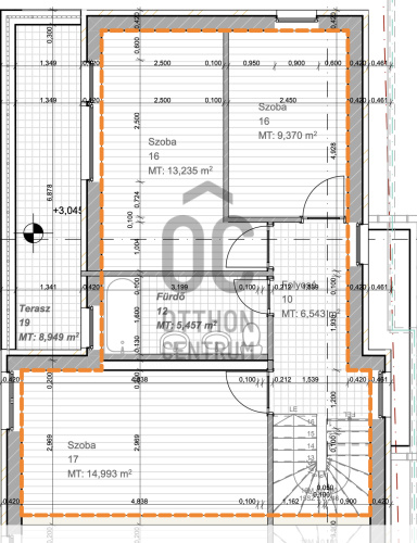
Rooms
entryway
9 m²
bathroom-toilet
3.6 m²
room
9.4 m²
room
9.4 m²
room
13.2 m²
room
14.9 m²
corridor
6.5 m²
open-plan living and dining room
21 m²
kitchen
3.8 m²
balcony
9 m²
garage
16 m²
Helembai Dávid
Credit Expert