data_sheet.details.realestate.section.main.otthonstart_flag.label
For sale new construction semi-detached house,
U0048645
Szigetszentmárton
78,000,000 Ft
201,000 €
- 89.4m²
- 4 Rooms







Modern Kétlakásos Újépítésű Otthon – Szigetszentmárton szívében
(Otthon Start hitellel is megvásárolható!)
Főbb jellemzők:
- Épület típusa: földszintes, kétlakásos, társasház
- Telek mérete: 763 m²
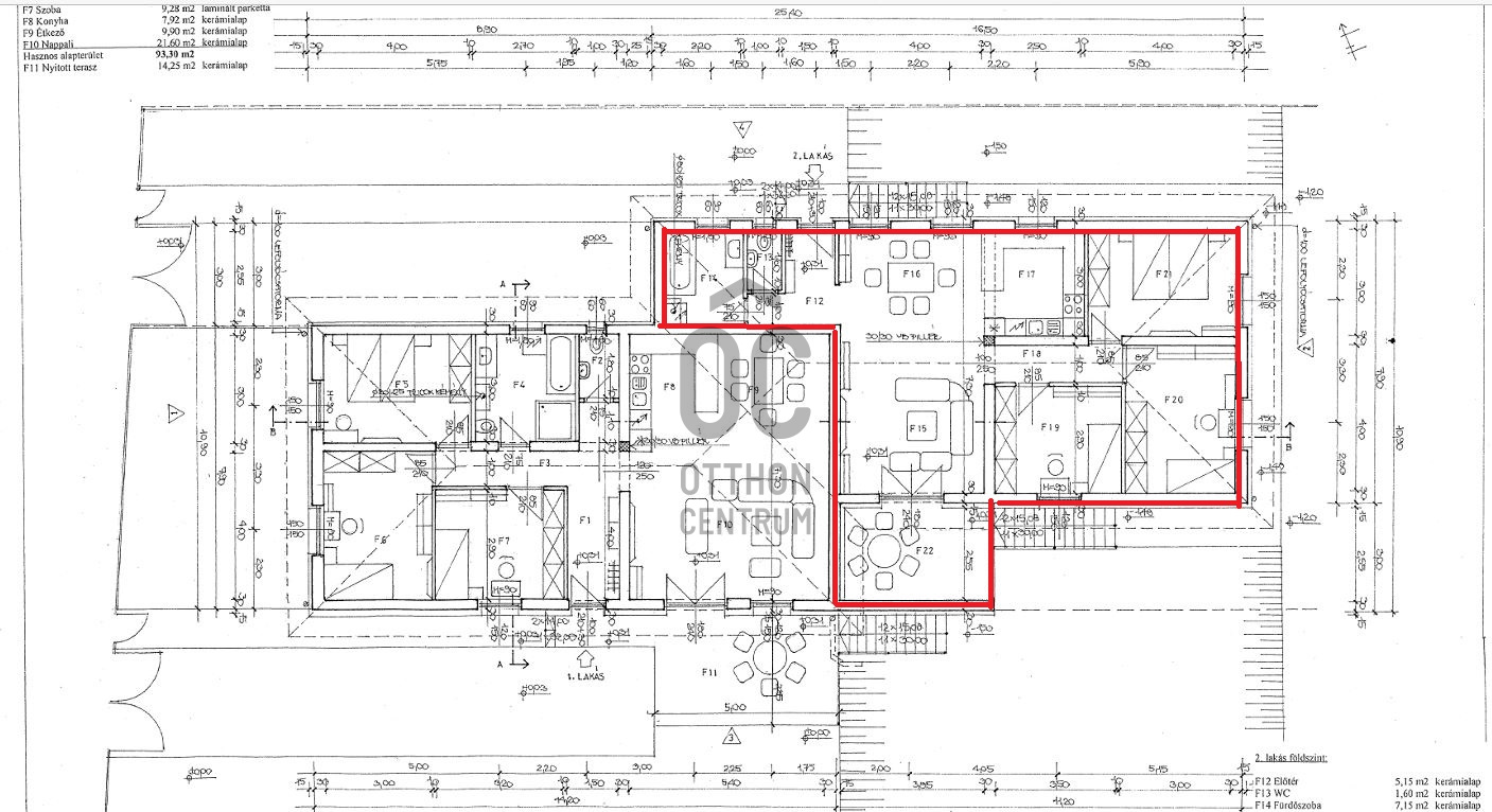
- Hasznos alapterület összesen: 89,45 m² + 10,58 m² nyitott terasz
- Helyiségek lakásonként: nappali–étkező–konyha egy légtérben, 3 hálószoba, fürdőszoba, külön WC, előtér, közlekedő
- Tető: 25° hajlásszögű kontyolt nyeregtető, sötétbarna betoncserép
- Nyílászárók: háromrétegű hőszigetelő üvegezés, fehér műanyag
- Fűtés és HMV: lakásonkénti kondenzációs gázkazán, központi melegvizes fűtés
- Villamos rendszer: modern, energiatakarékos világítás és dugaljrendszer, napelemrendszer kiépíthető
- Szerkezet: vasbeton sávalap, 30 cm-es tégla teherhordó falak, fagerendás födém, 15 cm EPS hőszigetelés
- Gépkocsi elhelyezés: telken belül biztosított
Elhelyezkedés:
Szigetszentmárton hangulatos, nyugodt kis település a Ráckevei-Duna partján, kiváló közlekedési kapcsolatokkal Budapest irányába is. A csendes utca, családias kertvárosi övezet, barátságos lakóközösséggel, zöld környezettel és fejlődő infrastruktúrával.
Ne hagyja ki ezt a kivételes lehetőséget! Vegye fel velünk a kapcsolatot még ma, és biztosítsa új otthonát – akár Otthon Start hitellel is!
- - -
Adatbázisunkban további több ezer ingatlanból választhat, hívjon bizalommal, hogy megtaláljuk a legmegfelelőbbet!
Teljes körű és díjmentes hitel-ügyintézéssel áll rendelkezésére szakértő kollégánk. Kérje személyre szabott ajánlatunkat!
Főbb jellemzők:
- Épület típusa: földszintes, kétlakásos, társasház
- Telek mérete: 763 m²
- Hasznos alapterület összesen: 89,45 m² + 10,58 m² nyitott terasz
- Helyiségek lakásonként: nappali–étkező–konyha egy légtérben, 3 hálószoba, fürdőszoba, külön WC, előtér, közlekedő
- Tető: 25° hajlásszögű kontyolt nyeregtető, sötétbarna betoncserép
- Nyílászárók: háromrétegű hőszigetelő üvegezés, fehér műanyag
- Fűtés és HMV: lakásonkénti kondenzációs gázkazán, központi melegvizes fűtés
- Villamos rendszer: modern, energiatakarékos világítás és dugaljrendszer, napelemrendszer kiépíthető
- Szerkezet: vasbeton sávalap, 30 cm-es tégla teherhordó falak, fagerendás födém, 15 cm EPS hőszigetelés
- Gépkocsi elhelyezés: telken belül biztosított
Elhelyezkedés:
Szigetszentmárton hangulatos, nyugodt kis település a Ráckevei-Duna partján, kiváló közlekedési kapcsolatokkal Budapest irányába is. A csendes utca, családias kertvárosi övezet, barátságos lakóközösséggel, zöld környezettel és fejlődő infrastruktúrával.
Ne hagyja ki ezt a kivételes lehetőséget! Vegye fel velünk a kapcsolatot még ma, és biztosítsa új otthonát – akár Otthon Start hitellel is!
- - -
Adatbázisunkban további több ezer ingatlanból választhat, hívjon bizalommal, hogy megtaláljuk a legmegfelelőbbet!
Teljes körű és díjmentes hitel-ügyintézéssel áll rendelkezésére szakértő kollégánk. Kérje személyre szabott ajánlatunkat!
Registration Number
U0048645
Property Details
Sales
for sale
Legal Status
new
Character
house
Construction Method
brick
Net Size
89.4 m²
Gross Size
100.3 m²
Plot Size
763 m²
Size of Terrace / Balcony
10.5 m²
Heating
Gas circulator
Ceiling Height
260 cm
Orientation
South-East
Condition
Excellent
Condition of Facade
Excellent
Neighborhood
quiet, green
Year of Construction
2025
Number of Bathrooms
1
Water
Available
Gas
Available
Electricity
Available
Sewer
Available
Rooms
entryway
5.15 m²
toilet-washbasin
1.6 m²
bathroom
7.15 m²
living room
18.2 m²
kitchen
8.4 m²
dining room
11 m²
corridor
3.8 m²
bedroom
10.15 m²
bedroom
12 m²
bedroom
12 m²

Joó Krisztina
Credit Expert