data_sheet.details.realestate.section.main.otthonstart_flag.label
For sale new construction row house,
U0048212
Hajdúszoboszló
105,000,000 Ft
271,000 €
- 123.1m²
- 4 Rooms














Hajdúszoboszló kertvárosi részén újonnan épülő sorházi ingatlanok eladók!
Hajdúszoboszlón 2026 év végi átadással 7 db sorházi ingatlan eladó!
ELÉRHETŐ OTTHON START HITELLEL!
Jellemzői :
- 122.43 nm - 123.17 nm ( fszt + emelet )
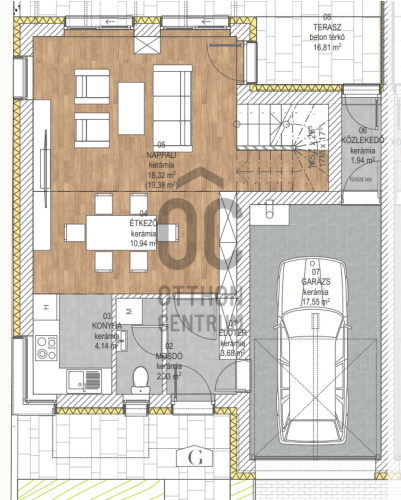
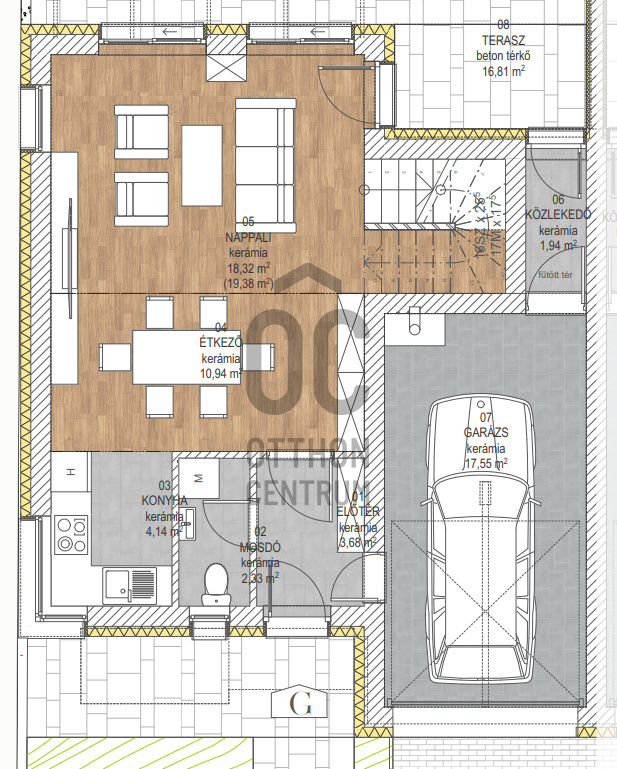
- alsó szinten : amerikai konyha étkezővel,nagy nappali ,mosdó,előtér,közlekedő ( 66.75-67.31 nm )
- 76.12 nm - 78.11 nm -es privát kert és egy nagy terasz
- garázs
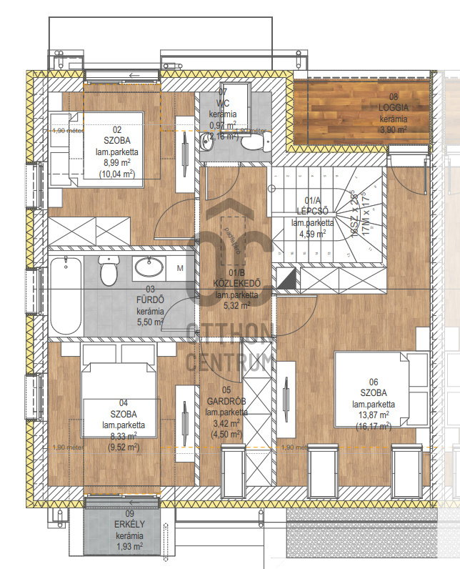
- felső szinten : 3 szoba ,fürdőszoba külön wc,gardrób,loggia és erkély ( 55.68-55.86 nm )
- tégla építésű ( 30-as POROTHERM )
- 15 cm-es szigetelés
- 3 rétegű műanyag nyílászárók
- Whirpool Swip 312L klíma
- fűtése gázcirkó, radiátoros hőleadással
- távvezérlésű garázskapu
Leendő tulajdonosa az építkezés ideje alatt igény szerint alakíthatja ki a belső elrendezést, kiválaszthatja a hideg-meleg burkolatokat.
Infrastruktúrálisan kedvező elhelyezkedés.
Közelben boltok,iskola,óvoda ,buszmegálló.
A fürdő bejárata autóval 5 percnyire található.
CSOK plusz igénybe vehető.
A HIRDETÉSI ADATOK S AZ ALAPRAJZ TÁJÉKOZTATÓ JELLEGŰEK !
Amennyiben vásárláshoz hitelre is lenne szükséged van független hitel tanácsadónk aki ingyenesen tud Neked segítséget nyújtani a legjobb konstrukciók kiválasztásában és a folyamat lebonyolításában.
Irodánk kereső ügyfeleinknek teljes körű szolgáltatást nyújt, szakszerű tanácsadással, energetikai tanúsítvány elkészítésével, hitelügyintézéssel és profi ügyvédi segítséggel.
Fedezd fel a tökéletes otthont családod számára Hajdúszoboszlón, a csendes és barátságos kertvárosi környezetben!
Ez a modern, új építésű ház ideális választás lehet számodra, ha a kényelem és a minőség mellett döntesz.
A házban 3 tágas szoba és egy nagy nappali várja, hogy berendezd őket saját ízlésed szerint, a két fürdőszoba pedig garantálja, hogy soha ne kelljen várakozni a reggeli készülődés során.
A nappali tágas és világos, ideális helyszín családi összejövetelekhez vagy baráti találkozókhoz.
Ehhez a kertkapcsolatos ingatlanhoz tartozik még egy 8,41 nm-es terasz, ahol élvezheted a napsütést, és egy kis erkély is, amely tökéletes hely a reggeli kávézáshoz.
A környék ellátottsága kiváló, a közeli boltok, iskolák és óvodák mindössze pár perc sétára találhatóak.
A csendes utcák és a barátságos szomszédság ideális környezetet biztosítanak a gyermekek számára, akik biztonságosan játszhatnak a szabadban.
A helyi közlekedési lehetőségek is kedvezőek, így könnyedén elérheted a város többi részét, és a közeli nagyobb városok is gyorsan megközelíthetőek autóval vagy tömegközlekedéssel.
Ez a kertkapcsolatos lakás nem csupán egy ingatlan, hanem egy lehetőség arra, hogy egy igazán otthonos környezetet teremts családod számára.
A modern dizájn és a praktikus elrendezés mind hozzájárulnak ahhoz, hogy itt mindig jól érezd magad.
Ha kérdéseid lennének az ingatlannal vagy a vásárlási folyamattal kapcsolatban, ne habozz keresni!
Bizalommal állok rendelkezésedre, hogy segítsek megtalálni álmaid otthonát!
#hajdubiharvarmegye #hajduszoboszlo #projekt #ketszintes #befektetes #kertvarosi #családihaz #ujepitesű
ELÉRHETŐ OTTHON START HITELLEL!
Jellemzői :
- 122.43 nm - 123.17 nm ( fszt + emelet )
- alsó szinten : amerikai konyha étkezővel,nagy nappali ,mosdó,előtér,közlekedő ( 66.75-67.31 nm )
- 76.12 nm - 78.11 nm -es privát kert és egy nagy terasz
- garázs
- felső szinten : 3 szoba ,fürdőszoba külön wc,gardrób,loggia és erkély ( 55.68-55.86 nm )
- tégla építésű ( 30-as POROTHERM )
- 15 cm-es szigetelés
- 3 rétegű műanyag nyílászárók
- Whirpool Swip 312L klíma
- fűtése gázcirkó, radiátoros hőleadással
- távvezérlésű garázskapu
Leendő tulajdonosa az építkezés ideje alatt igény szerint alakíthatja ki a belső elrendezést, kiválaszthatja a hideg-meleg burkolatokat.
Infrastruktúrálisan kedvező elhelyezkedés.
Közelben boltok,iskola,óvoda ,buszmegálló.
A fürdő bejárata autóval 5 percnyire található.
CSOK plusz igénybe vehető.
A HIRDETÉSI ADATOK S AZ ALAPRAJZ TÁJÉKOZTATÓ JELLEGŰEK !
Amennyiben vásárláshoz hitelre is lenne szükséged van független hitel tanácsadónk aki ingyenesen tud Neked segítséget nyújtani a legjobb konstrukciók kiválasztásában és a folyamat lebonyolításában.
Irodánk kereső ügyfeleinknek teljes körű szolgáltatást nyújt, szakszerű tanácsadással, energetikai tanúsítvány elkészítésével, hitelügyintézéssel és profi ügyvédi segítséggel.
Fedezd fel a tökéletes otthont családod számára Hajdúszoboszlón, a csendes és barátságos kertvárosi környezetben!
Ez a modern, új építésű ház ideális választás lehet számodra, ha a kényelem és a minőség mellett döntesz.
A házban 3 tágas szoba és egy nagy nappali várja, hogy berendezd őket saját ízlésed szerint, a két fürdőszoba pedig garantálja, hogy soha ne kelljen várakozni a reggeli készülődés során.
A nappali tágas és világos, ideális helyszín családi összejövetelekhez vagy baráti találkozókhoz.
Ehhez a kertkapcsolatos ingatlanhoz tartozik még egy 8,41 nm-es terasz, ahol élvezheted a napsütést, és egy kis erkély is, amely tökéletes hely a reggeli kávézáshoz.
A környék ellátottsága kiváló, a közeli boltok, iskolák és óvodák mindössze pár perc sétára találhatóak.
A csendes utcák és a barátságos szomszédság ideális környezetet biztosítanak a gyermekek számára, akik biztonságosan játszhatnak a szabadban.
A helyi közlekedési lehetőségek is kedvezőek, így könnyedén elérheted a város többi részét, és a közeli nagyobb városok is gyorsan megközelíthetőek autóval vagy tömegközlekedéssel.
Ez a kertkapcsolatos lakás nem csupán egy ingatlan, hanem egy lehetőség arra, hogy egy igazán otthonos környezetet teremts családod számára.
A modern dizájn és a praktikus elrendezés mind hozzájárulnak ahhoz, hogy itt mindig jól érezd magad.
Ha kérdéseid lennének az ingatlannal vagy a vásárlási folyamattal kapcsolatban, ne habozz keresni!
Bizalommal állok rendelkezésedre, hogy segítsek megtalálni álmaid otthonát!
#hajdubiharvarmegye #hajduszoboszlo #projekt #ketszintes #befektetes #kertvarosi #családihaz #ujepitesű
Registration Number
U0048212
Property Details
Sales
for sale
Legal Status
new
Character
house
Construction Method
brick
Net Size
123.1 m²
Gross Size
123.1 m²
Plot Size
418 m²
Size of Terrace / Balcony
9.3 m²
Heating
Gas circulator
Ceiling Height
270 cm
Number of Levels Within the Property
1
Orientation
North-East
View
city view
Condition
Excellent
Condition of Facade
Excellent
Neighborhood
quiet, good transport, green
Year of Construction
2026
Number of Bathrooms
2
Garage
Included in the price
Garage Spaces
1
Water
Available
Gas
Available
Electricity
Available
Sewer
Available
Rooms
entryway
3.68 m²
washroom
2.33 m²
kitchen
4.14 m²
dining room
10.94 m²
living room
18.32 m²
corridor
1.94 m²
garage
17.55 m²
terrace
8.41 m²
staircase
4.59 m²
corridor
5.32 m²
room
8.99 m²
bathroom
5.5 m²
room
8.33 m²
wardrobe
3.42 m²
room
13.87 m²
toilet
0.97 m²
loggia
3.9 m²
balcony
0.97 m²

Katonáné Boruzs Ildikó
Credit Expert