data_sheet.details.realestate.section.main.otthonstart_flag.label
For sale new construction apartment,
U0048182
Vác, Bácska
77,800,000 Ft
199,000 €
- 54m²
- 3 Rooms
- 1st floor












ÖRÖK PANORÁMÁS ÚJ ÉPíTÉSŰ, NAPELEMES LAKÁSOK!
Vácon a Bácska dűlőben kínálunk eladásra teraszos, kertkapcsolatos lakásokat
a PIlis hegységre és a szentendrei szigetre néző panorámával.
Az épület dny-i tájolásának köszönhetően a lakások rendkívül világosak, benapozottak.
Magas műszaki tartalom, igényes kivitelezés referenciákkal bíró kivitelezőtől.
A korszerű technológiának és a napelemes rendszernek köszönhetően egy alacsony
költségen fenntartható értékálló ingatlant vásárolhatunk.
A három szintes négylakásos társasház egy zárt telken kerül kialakításra.
A garázs szinten fedett kocsibeálló és a hozzájuk tartozó tároló opcionálisan megvásárolható.
Valamennyi lakáshoz 1-1 nyitott udvari kocsibeálló tartozik.
Az "A" és "B" épületrészt egy külső lépcsősor választ el egymástól. Mindkét épületben
egy földszinti és egy emeleti lakás kap majd helyet.
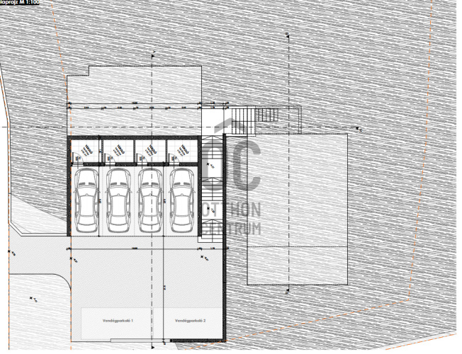
GARÁZSZSZINT:
Az "A" épület garázsszintjén négy darab garázs és a hozzájuk tartozó tárolók kerülnek
majd kialakításra. Garázs+tároló 10 M ft ellenében megvásárolható.
"A" ÉPÜLET:
"A1" földszinti lakás 54 nm, 2 háló+nappali, fürdő+wc, wc+mosdó, közlekedő
23,8 nm fedett terasz kertkapcsolattal, udvari kocsibeálló.
"A2" emeleti lakás 54 nm, 2 háló+nappali, fürdő+wc, wc+mosdó, közlekedő
12,2 nm fedett terasz, udvari kocsibeálló.
"B" ÉPÜLET:
"B1" földszinti lakás 54 nm, 2 háló+nappali, fürdő+wc, wc+mosdó, közlekedő
22,9 nm fedett terasz kertkapcsolattal, udvari kocsibeálló.
"B2" emeleti lakás 54 nm, 2 háló+nappali, fürdő+wc, wc+mosdó, közlekedő
14,6 nm fedett terasz, udvari kocsibeálló.
Jelen hírdetés az"A2"-jelű bal oldali emeleti lakás leírása.
A lakások tervezett átadása 2026 nyara.
MŰSZAKI TARTALOM:
Vasbeton sávalap.Teherhordó falazat 25 cm-es Porotherm falazóelem 15 cm-es homlokzati
szigeteléssel. Monolit vasbeton födém. Korcolt lemez fedés. Műanyag 3 rétegű
nyílászárók szúnyoghálóval redőnnyel szerelve.
Hőszivattyús fűtés és melegvízellátás. Padlófűtés és mennyezethűtés.
5 KW napelemes rendszer tároló akkumulátorral.
Amivel segíteni tudjuk az Ön ingatlanvásárlását:
-ingyenes, bankfüggetlen hitelügyintézés
-jogi háttér
-földhivatali ügyintézés
-energetikai tanúsítvány készítése
-értékbecslés
Amennyiben a hirdetés felkeltette érdeklődését kérem forduljon hozzám bizalommal.
Vácon a Bácska dűlőben kínálunk eladásra teraszos, kertkapcsolatos lakásokat
a PIlis hegységre és a szentendrei szigetre néző panorámával.
Az épület dny-i tájolásának köszönhetően a lakások rendkívül világosak, benapozottak.
Magas műszaki tartalom, igényes kivitelezés referenciákkal bíró kivitelezőtől.
A korszerű technológiának és a napelemes rendszernek köszönhetően egy alacsony
költségen fenntartható értékálló ingatlant vásárolhatunk.
A három szintes négylakásos társasház egy zárt telken kerül kialakításra.
A garázs szinten fedett kocsibeálló és a hozzájuk tartozó tároló opcionálisan megvásárolható.
Valamennyi lakáshoz 1-1 nyitott udvari kocsibeálló tartozik.
Az "A" és "B" épületrészt egy külső lépcsősor választ el egymástól. Mindkét épületben
egy földszinti és egy emeleti lakás kap majd helyet.
GARÁZSZSZINT:
Az "A" épület garázsszintjén négy darab garázs és a hozzájuk tartozó tárolók kerülnek
majd kialakításra. Garázs+tároló 10 M ft ellenében megvásárolható.
"A" ÉPÜLET:
"A1" földszinti lakás 54 nm, 2 háló+nappali, fürdő+wc, wc+mosdó, közlekedő
23,8 nm fedett terasz kertkapcsolattal, udvari kocsibeálló.
"A2" emeleti lakás 54 nm, 2 háló+nappali, fürdő+wc, wc+mosdó, közlekedő
12,2 nm fedett terasz, udvari kocsibeálló.
"B" ÉPÜLET:
"B1" földszinti lakás 54 nm, 2 háló+nappali, fürdő+wc, wc+mosdó, közlekedő
22,9 nm fedett terasz kertkapcsolattal, udvari kocsibeálló.
"B2" emeleti lakás 54 nm, 2 háló+nappali, fürdő+wc, wc+mosdó, közlekedő
14,6 nm fedett terasz, udvari kocsibeálló.
Jelen hírdetés az"A2"-jelű bal oldali emeleti lakás leírása.
A lakások tervezett átadása 2026 nyara.
MŰSZAKI TARTALOM:
Vasbeton sávalap.Teherhordó falazat 25 cm-es Porotherm falazóelem 15 cm-es homlokzati
szigeteléssel. Monolit vasbeton födém. Korcolt lemez fedés. Műanyag 3 rétegű
nyílászárók szúnyoghálóval redőnnyel szerelve.
Hőszivattyús fűtés és melegvízellátás. Padlófűtés és mennyezethűtés.
5 KW napelemes rendszer tároló akkumulátorral.
Amivel segíteni tudjuk az Ön ingatlanvásárlását:
-ingyenes, bankfüggetlen hitelügyintézés
-jogi háttér
-földhivatali ügyintézés
-energetikai tanúsítvány készítése
-értékbecslés
Amennyiben a hirdetés felkeltette érdeklődését kérem forduljon hozzám bizalommal.
Registration Number
U0048182
Property Details
Sales
for sale
Legal Status
new
Character
apartment
Construction Method
brick
Net Size
54 m²
Gross Size
66 m²
Size of Terrace / Balcony
12.2 m²
Heating
values.realestate.futes.26
Ceiling Height
260 cm
Number of Levels Within the Property
1
Orientation
South-West
View
city view, river or lake view, Green view
Staircase Type
none
Condition
Excellent
Condition of Facade
Excellent
Condition of Staircase
Excellent
Neighborhood
quiet, green
Year of Construction
2025
Number of Bathrooms
1
Position
garden-facing
Condominium Garden
yes
Garage
Separately purchasable
Water
Available
Electricity
Available
Storage
Separately purchasable
Rooms
bedroom
9.3 m²
bedroom
8.37 m²
open-plan kitchen and living room
24.32 m²
bathroom-toilet
3.99 m²
corridor
2.31 m²
entryway
3.45 m²
toilet-washbasin
2.36 m²
terrace
12.2 m²

Bán Marianna
Credit Expert