data_sheet.details.realestate.section.main.otthonstart_flag.label
For sale new construction semi-detached house,
U0046822
Nagycenk, Kiscenk
77,500,000 Ft
198,000 €
- 76.4m²
- 3 Rooms





Újépítésű, tégla falazatú Ikerház a nagycenki Széchenyi Villageben
Praktikum és a természetközeli életérzés találkozása – mindez Nagycenken, a közkedvelt Széchenyi Village lakópark kiépült, rendezett környezetében.
Az ingatlan főbb jellemzői:
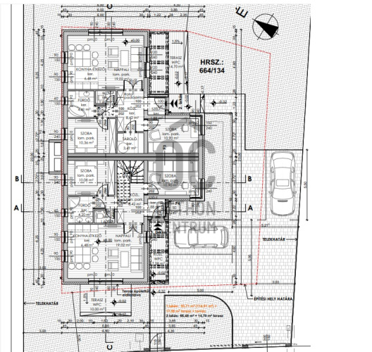
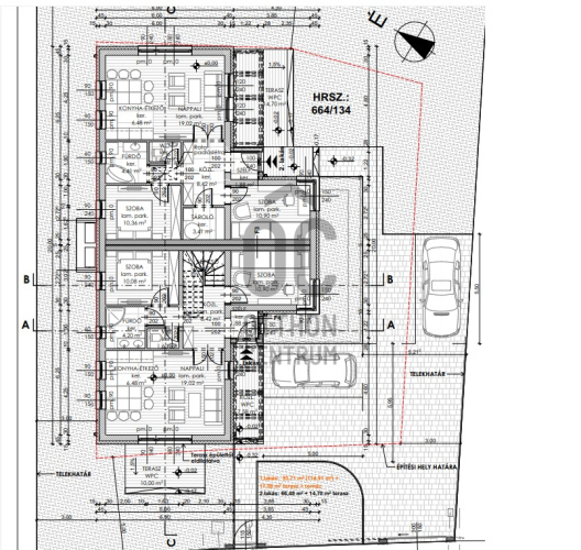
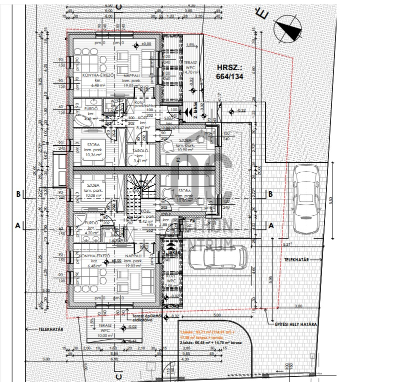
Tégla építésű, egyszintes ikerház, gondosan megtervezett elrendezéssel
67,67 m² hasznos lakótér + 17,58 m² fedett terasz
220 m²-es saját kert, délnyugati tájolással – napfényes, nyugalmas élettér
2 hálószoba, amerikai konyhás nappali, fürdőszoba, külön WC, háztartási helyiség
1 db térkövezett autóbeálló
Teljesen közművesített utca, aszfaltozott út és közvilágítás
Műszaki tartalom:
Energiahatékony fűtés: levegő hőszivattyús rendszer padlófűtéssel
Modern nyílászárók: 6 légkamrás műanyag ablakok
Tartós, esztétikus tető: betoncserép fedés
Kulcsrakész átadás – de még alakítható, így Ön beleszólhat a végső megjelenésbe is
A tetőtér beépíthető, így később tovább bővíthető az élettér
Ez az otthon ideális választás mindazoknak, akik értékelik a letisztult vonalakat, az energiatakarékos műszaki megoldásokat és a nyugodt, családbarát környezetet – mindössze néhány percnyire Soprontól.
Bővebb műszaki tartalommal, az építkezés aktuális állásával kapcsolatban szívesen állunk rendelkezésére. Ne maradjon le erről a különleges lehetőségről – hívjon bizalommal!
MIÉRT jÓ NAGYCENKEN TERVEZNI A JÖVŐT?
Mert ettől a természetközeli, nyugodt környezettől Sopron csupán 10 perc távolságra van és a ausztriai határátkelő is 15 percen belül elérhető.
Infrastrukturálisan fejlett település, ahol bölcsőde, óvoda, iskola, orvos, bank egyaránt megtalálható.
Kikapcsolódásra, programokra számos lehetőség adott a közelben! Lovaglás, kirándulás, biciklizés, horgászás és kisvasutazás gazdagíthatja a családi együttléteket.
Hitelre van szüksége?
Az Otthon Centrum az ország egyik legnagyobb és legmegbízhatóbb hitelközvetítőjeként, teljes körű és díjmentes hitelügyintézéssel, biztosításkötéssel áll rendelkezésére!
Kérje személyre szabott ajánlatunkat Kollégáinktól!
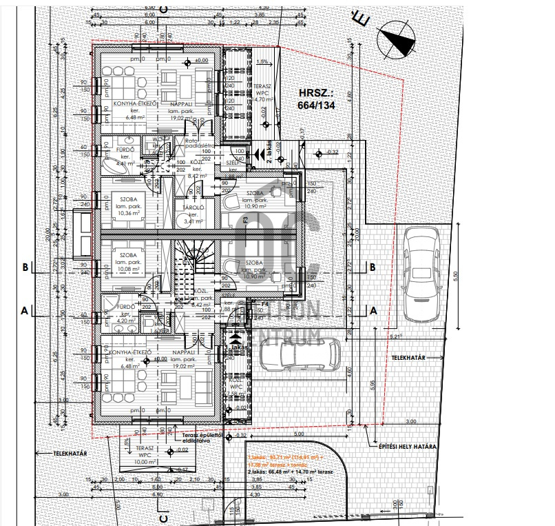
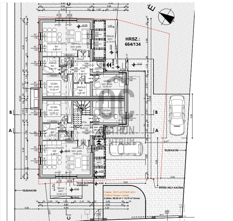
Az ingatlan főbb jellemzői:
Tégla építésű, egyszintes ikerház, gondosan megtervezett elrendezéssel
67,67 m² hasznos lakótér + 17,58 m² fedett terasz
220 m²-es saját kert, délnyugati tájolással – napfényes, nyugalmas élettér
2 hálószoba, amerikai konyhás nappali, fürdőszoba, külön WC, háztartási helyiség
1 db térkövezett autóbeálló
Teljesen közművesített utca, aszfaltozott út és közvilágítás
Műszaki tartalom:
Energiahatékony fűtés: levegő hőszivattyús rendszer padlófűtéssel
Modern nyílászárók: 6 légkamrás műanyag ablakok
Tartós, esztétikus tető: betoncserép fedés
Kulcsrakész átadás – de még alakítható, így Ön beleszólhat a végső megjelenésbe is
A tetőtér beépíthető, így később tovább bővíthető az élettér
Ez az otthon ideális választás mindazoknak, akik értékelik a letisztult vonalakat, az energiatakarékos műszaki megoldásokat és a nyugodt, családbarát környezetet – mindössze néhány percnyire Soprontól.
Bővebb műszaki tartalommal, az építkezés aktuális állásával kapcsolatban szívesen állunk rendelkezésére. Ne maradjon le erről a különleges lehetőségről – hívjon bizalommal!
MIÉRT jÓ NAGYCENKEN TERVEZNI A JÖVŐT?
Mert ettől a természetközeli, nyugodt környezettől Sopron csupán 10 perc távolságra van és a ausztriai határátkelő is 15 percen belül elérhető.
Infrastrukturálisan fejlett település, ahol bölcsőde, óvoda, iskola, orvos, bank egyaránt megtalálható.
Kikapcsolódásra, programokra számos lehetőség adott a közelben! Lovaglás, kirándulás, biciklizés, horgászás és kisvasutazás gazdagíthatja a családi együttléteket.
Hitelre van szüksége?
Az Otthon Centrum az ország egyik legnagyobb és legmegbízhatóbb hitelközvetítőjeként, teljes körű és díjmentes hitelügyintézéssel, biztosításkötéssel áll rendelkezésére!
Kérje személyre szabott ajánlatunkat Kollégáinktól!
Registration Number
U0046822
Property Details
Sales
for sale
Legal Status
new
Character
house
Construction Method
brick
Net Size
76.4 m²
Gross Size
76.4 m²
Plot Size
220 m²
Heating
renewable
Ceiling Height
280 cm
Orientation
South
Condition
Excellent
Condition of Facade
Excellent
Year of Construction
2025
Number of Bathrooms
1
Water
Available
Electricity
Available
Sewer
Available
Rooms
bedroom
10.36 m²
bedroom
10.9 m²
bathroom
4.41 m²
corridor
8.42 m²
utility room
3.41 m²
entryway
3.52 m²
toilet-washbasin
1.6 m²
open-plan kitchen and dining room
9.35 m²
living room
16.15 m²
terrace
17.58 m²

Horváth Zsoltné Edit
Credit Expert