For sale new construction family house, U0046647
Balatonföldvár

198,000,000 Ft

510,000 €

  • 152m²
  • 6 Rooms

Newly built luxury house in Balatonföldvár

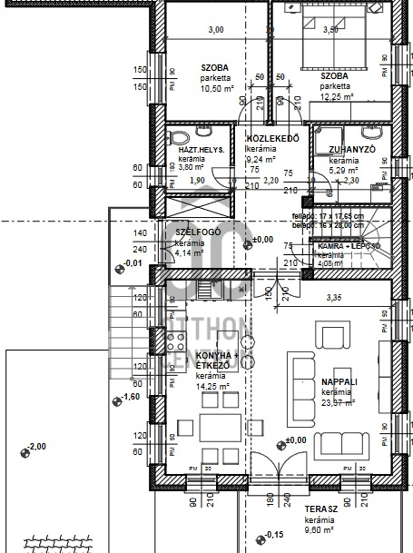
If you are looking for an exclusive, modern, and passive house-style property, then it's time to get to know this fantastic opportunity that we are now offering for sale. This new house is located in one of the most popular towns in Somogy County, in the elevated area of Balatonföldvár. The property has a floor area of 152 square meters and is situated on a 473 square meter plot. The property is newly built and is extremely energy-efficient thanks to the heat pump heating system and the solar panel system. The air conditioning also ensures a pleasant temperature even in the summer heat. The size of the property's terrace is 40 square meters, from which there is a partial panoramic view of the lake. The built-in furniture and cabinets, as well as the LED mood lighting, make the property special. The spacious living room, the American kitchen with an island, and the uniquely designed apartment all provide an exclusive lifestyle experience. The surrounding area of the property is safe and quiet, making it an ideal place for relaxation and unwinding. The property has a garden connection, and the view of the lake is truly stunning. For more details, call now!

Registration Number

U0046647

Property Details

Sales
for sale
Legal Status
new
Character
house
Construction Method
brick
Net Size
152 m²
Gross Size
167 m²
Plot Size
473 m²
Size of Terrace / Balcony
51 m²
Heating
electric circulator
Ceiling Height
270 cm
Number of Levels Within the Property
1
Orientation
North-West
View
river or lake view
Condition
Excellent
Condition of Facade
Excellent
Neighborhood
quiet, good transport, green, central
Year of Construction
2024
Number of Bathrooms
2
Water
Available
Electricity
Available
Sewer
Available
Multi-Generational
yes
Storage
Independent

Rooms

entryway
4 m²
corridor
7 m²
open-plan kitchen and living room
37.8 m²
storage
4.1 m²
room
13.5 m²
room
13.8 m²
bathroom-toilet
4.9 m²
laundry room
2.5 m²
terrace
11 m²
corridor
5.7 m²
room
10.5 m²
room
10.8 m²
room
12.3 m²
bathroom-toilet
6.2 m²
terrace
40 m²

From Our Office Listings - Siófok - Petőfi sétány

for sale semi-detached house

Index image
35

eladó családi ház

Index image
Elérhető Otthon Start hitellel
12

eladó lakás

Index image
37

for sale plot

Index image
6

for sale family house

Index image
data_sheet.details.realestate.section.main.otthonstart_flag.label
9

for sale family house

Index image
data_sheet.details.realestate.section.main.otthonstart_flag.label
20

for sale apartment

Index image
8

for sale family house

Index image
data_sheet.details.realestate.section.main.otthonstart_flag.label
26