data_sheet.details.realestate.section.main.otthonstart_flag.label
For sale new construction apartment,
U0045577
Zalaegerszeg, Belváros
81,000,000 Ft
214,000 €
- 85.3m²
- 3 Rooms
- 1st floor
Egyedüli lehetőség Zalaegerszegen!
Új lakást szeretne, saját ízlésének megfelelően Zalaegerszegen?
Íme, egy nagyszerű ajánlat Zalaegerszeg belvárosában, 85.37 nm -es lakás, 780 000Ft/nm-es áron!!!
A 9 lakásos társasházban 44-87 nm-es, 3 szobás lakások kerülnek kialakításra ,különálló garázsokban vagy zárt parkolóhelyeken biztosított a gépkocsik tárolása és védelme.
A tervezés során fontos szempont a beépített anyagok magas minősége , a költséghatékony fenntartás és az épületek értékállósága. A ház fűtését , illetve meleg víz ellátását , hőszivattyús rendszer biztosítja , lakásonkénti egyedi méréssel és szabályozással , padlófűtéssel.
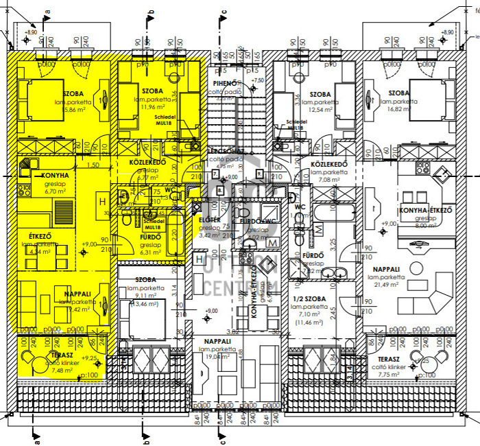
Az ingatlan az első emeleten helyezkedik el 88,22 m2 bruttó területű, ebből a 2 erkély mérete összesen 9,41 m2.
2 hálószoba, nappali, konyha, étkező, fürdő, 2 WC, előtér, közlekedő, terasz elrendezésű.
A projekt főbb jellemzői:
- belváros közeli , frekventált elhelyezkedés (Petőfi utca Ady - Mártírok közti részén)
- igényes , belvároshoz méltó külső megjelenés
- 9 prémium minőségű lakás funkcionálisan tervezett alaprajzokkal: 2 szobával, nappalival, erkélyekkel
- napfényes , déli - nyugati tájolású lakások
- fenntartható lakás , alacsony energiafelhasználás
- impozáns épület, kevésbé forgalmas belvárosi részen
- fürdő és WC külön helyiségben minden lakásban
- 3 rétegű nyílászárók , redőny , szúnyogháló , klíma kérhető
- Választható belső burkolatok , szaniterek , ajtók
- belső , zárt , kisméretű , parkosított udvar
- saját garázs vásárolható
- Családi Otthonteremtési Kedvezmény + Hitel igényelhető!
Az építkezés 70%-os készültségi szinten tart.
Az épület műszaki átadása: 2024 év eleje.
Új lakást szeretne, saját ízlésének megfelelően Zalaegerszegen?
Íme, egy nagyszerű ajánlat Zalaegerszeg belvárosában, 85.37 nm -es lakás, 780 000Ft/nm-es áron!!!
A 9 lakásos társasházban 44-87 nm-es, 3 szobás lakások kerülnek kialakításra ,különálló garázsokban vagy zárt parkolóhelyeken biztosított a gépkocsik tárolása és védelme.
A tervezés során fontos szempont a beépített anyagok magas minősége , a költséghatékony fenntartás és az épületek értékállósága. A ház fűtését , illetve meleg víz ellátását , hőszivattyús rendszer biztosítja , lakásonkénti egyedi méréssel és szabályozással , padlófűtéssel.
Az ingatlan az első emeleten helyezkedik el 88,22 m2 bruttó területű, ebből a 2 erkély mérete összesen 9,41 m2.
2 hálószoba, nappali, konyha, étkező, fürdő, 2 WC, előtér, közlekedő, terasz elrendezésű.
A projekt főbb jellemzői:
- belváros közeli , frekventált elhelyezkedés (Petőfi utca Ady - Mártírok közti részén)
- igényes , belvároshoz méltó külső megjelenés
- 9 prémium minőségű lakás funkcionálisan tervezett alaprajzokkal: 2 szobával, nappalival, erkélyekkel
- napfényes , déli - nyugati tájolású lakások
- fenntartható lakás , alacsony energiafelhasználás
- impozáns épület, kevésbé forgalmas belvárosi részen
- fürdő és WC külön helyiségben minden lakásban
- 3 rétegű nyílászárók , redőny , szúnyogháló , klíma kérhető
- Választható belső burkolatok , szaniterek , ajtók
- belső , zárt , kisméretű , parkosított udvar
- saját garázs vásárolható
- Családi Otthonteremtési Kedvezmény + Hitel igényelhető!
Az építkezés 70%-os készültségi szinten tart.
Az épület műszaki átadása: 2024 év eleje.
Registration Number
U0045577
Property Details
Sales
for sale
Legal Status
new
Character
apartment
Construction Method
brick
Net Size
85.3 m²
Gross Size
85.3 m²
Size of Terrace / Balcony
13.8 m²
Heating
renewable
Ceiling Height
260 cm
Orientation
South
Staircase Type
enclosed staircase
Condition
Excellent
Condition of Facade
Excellent
Condition of Staircase
Excellent
Neighborhood
central
Year of Construction
2023
Number of Bathrooms
1
Position
street-facing
Garage
Separately purchasable
Water
Available
Electricity
Available
Sewer
Available
Storage
Shared
Rooms
living room
23.68 m²
kitchen
6.7 m²
dining room
5.34 m²
bedroom
13.68 m²
bedroom
12 m²
bathroom
6.38 m²
toilet
1.31 m²
corridor
8.6 m²
entryway
1.21 m²
balcony
9.24 m²
balcony
4.62 m²
Dr. Kercza Melinda
Credit Expert