296,500,000 Ft
760,000 €
- 231m²
- 5 Rooms































Panorámás, újépítésű, nappali + 3 hálós családi ház
Pesthidegkút panorámás részén kínáljuk eladásra ezt az újépítésű, korszerű igényeket kielégítő, energiatakarékos családi házat.
A nettó 231 m2 alapterületű ház tágas lakóterekkel és egy kizárólagos használatú, 742 m2 nagyságú lehatárolt telekrésszel rendelkezik.
Elhelyezkedése ideális, mivel egy teljesen csöndes, autóforgalomtól mentes utcában található, ahonnan percek alatt elérhető a főút akár autóval, akár gyalogosan.
A ház kialakítása:
Pinceszinten két gépkocsi befogadására alkalmas 42 m2 alapterületű garázs, háztartási helyiség, zuhanyzós wc, valamint 2 további többfunkciós helyiség található, melyek alkalmasak lehetnek hobbiszoba, játszószoba, konditerem, vagy otthoni vállalkozás helyszínének.
A háztartási helyiségben került elhelyezésre a hőszivattyús hűtő-fűtő rendszer, hő-visszanyerő szellőző berendezés, napelem előkészítés, vezetékes Tv, telefon- internet csatlakozás, riasztó vezetékezés, központi porszívó, mosó-és szárítógép csatlakozási lehetőség.
Földszinten déli tájolású nappali került kialakításra teraszkapcsolattal (19,5 m2), továbbá étkező-konyha szintén teraszkapcsolattal (8,77 m2), valamint hálószoba és zuhanyzós wc. A teraszok mérete a nettó alapterületen felül értendő.
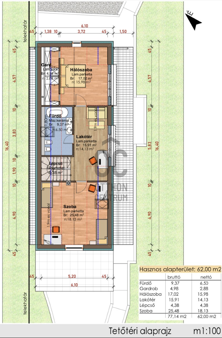
Tetőtérben 2 hálószoba, fürdőszoba, gardróbhelyiség valamint többfunkciós előtér található.
A kert gyepesítve kerül átadásra. A ház mögötti kertrészben lehetőség van további terasz kialakítására, valamint jakuzzi elhelyezésére.
Parkolás:
Saját garázsban 2 autó számára + 1 nyitott beállóban, továbbá az utcai kerítés mentén létesülő vendég parkolóhelyeken.
A környéken a parkolás ingyenes.
A modern elvárásoknak megfelelően az épület hőtechnikai mutatói nagyon kedvezőek, a beépített magas minőségű anyagok és a korszerű gépészet miatt közel "0" energiás ház kategóriába sorolható, AA++ energetikai besorolással.
Beépítésre került hőszivattyús kazán, amely a fűtést, hűtést (fan-coil hűtés) és a meleg vizet biztosítja. Hőcserélős szellőzőberendezés, fokozott hőszigetelő képességű, 3 rétegű üvegezéssel ellátott nyílászárók, Porotherm Klima30 tégla-15cm Grafitos hőszigetelő rendszerrel.
A környék infrastrukturális ellátottsága kiváló: 4-500 m-en belül elérhető buszmegálló, bevásárlási lehetőség, gyógyszertár, drogéria. A közelben számos óvoda, általános iskola található, továbbá a francia iskola.
Sportolásra a Gyarmati Dezső Uszoda és mellette az újonnan létesült 28 ezer m2-es sport- és szabadidőközpont nyújt lehetőséget.
Az ingatlan jelenleg 90%-os készültségi szinten van, a belső burkolatok a vásárlói igények szerint kerülnek beépítésre.
Kulcsrakész átadás 2023. IV. negyedévében várható.
Részletes műszaki tartalom ismertetése igény szerint személyesen vagy elektronikus úton történik.
További információ és időpont-egyeztetés céljából várom hívását!
A nettó 231 m2 alapterületű ház tágas lakóterekkel és egy kizárólagos használatú, 742 m2 nagyságú lehatárolt telekrésszel rendelkezik.
Elhelyezkedése ideális, mivel egy teljesen csöndes, autóforgalomtól mentes utcában található, ahonnan percek alatt elérhető a főút akár autóval, akár gyalogosan.
A ház kialakítása:
Pinceszinten két gépkocsi befogadására alkalmas 42 m2 alapterületű garázs, háztartási helyiség, zuhanyzós wc, valamint 2 további többfunkciós helyiség található, melyek alkalmasak lehetnek hobbiszoba, játszószoba, konditerem, vagy otthoni vállalkozás helyszínének.
A háztartási helyiségben került elhelyezésre a hőszivattyús hűtő-fűtő rendszer, hő-visszanyerő szellőző berendezés, napelem előkészítés, vezetékes Tv, telefon- internet csatlakozás, riasztó vezetékezés, központi porszívó, mosó-és szárítógép csatlakozási lehetőség.
Földszinten déli tájolású nappali került kialakításra teraszkapcsolattal (19,5 m2), továbbá étkező-konyha szintén teraszkapcsolattal (8,77 m2), valamint hálószoba és zuhanyzós wc. A teraszok mérete a nettó alapterületen felül értendő.
Tetőtérben 2 hálószoba, fürdőszoba, gardróbhelyiség valamint többfunkciós előtér található.
A kert gyepesítve kerül átadásra. A ház mögötti kertrészben lehetőség van további terasz kialakítására, valamint jakuzzi elhelyezésére.
Parkolás:
Saját garázsban 2 autó számára + 1 nyitott beállóban, továbbá az utcai kerítés mentén létesülő vendég parkolóhelyeken.
A környéken a parkolás ingyenes.
A modern elvárásoknak megfelelően az épület hőtechnikai mutatói nagyon kedvezőek, a beépített magas minőségű anyagok és a korszerű gépészet miatt közel "0" energiás ház kategóriába sorolható, AA++ energetikai besorolással.
Beépítésre került hőszivattyús kazán, amely a fűtést, hűtést (fan-coil hűtés) és a meleg vizet biztosítja. Hőcserélős szellőzőberendezés, fokozott hőszigetelő képességű, 3 rétegű üvegezéssel ellátott nyílászárók, Porotherm Klima30 tégla-15cm Grafitos hőszigetelő rendszerrel.
A környék infrastrukturális ellátottsága kiváló: 4-500 m-en belül elérhető buszmegálló, bevásárlási lehetőség, gyógyszertár, drogéria. A közelben számos óvoda, általános iskola található, továbbá a francia iskola.
Sportolásra a Gyarmati Dezső Uszoda és mellette az újonnan létesült 28 ezer m2-es sport- és szabadidőközpont nyújt lehetőséget.
Az ingatlan jelenleg 90%-os készültségi szinten van, a belső burkolatok a vásárlói igények szerint kerülnek beépítésre.
Kulcsrakész átadás 2023. IV. negyedévében várható.
Részletes műszaki tartalom ismertetése igény szerint személyesen vagy elektronikus úton történik.
További információ és időpont-egyeztetés céljából várom hívását!
Registration Number
U0045130
Property Details
Sales
for sale
Legal Status
new
Character
house
Construction Method
brick
Net Size
231 m²
Gross Size
275 m²
Plot Size
742 m²
Size of Terrace / Balcony
28 m²
Heating
heat pump
Ceiling Height
265 cm
Number of Levels Within the Property
3
Orientation
South
View
Green view
Condition
Excellent
Condition of Facade
Excellent
Basement
Independent
Neighborhood
quiet, good transport, green
Year of Construction
2023
Number of Bathrooms
3
Garage
Included in the price
Garage Spaces
2
Water
Available
Gas
Available
Electricity
Available
Sewer
Available
Storage
Independent
Rooms
living room
25.48 m²
open-plan kitchen and dining room
20.23 m²
room
12.11 m²
shower
2.8 m²
terrace
19.5 m²
terrace
8.77 m²
bedroom
16 m²
bedroom
18 m²
bathroom-toilet
6.5 m²
wardrobe
2.88 m²
garage
42.36 m²
other room
14.8 m²
other room
22.6 m²
utility room
7.37 m²
shower
3.09 m²

Pfeffer Kinga
Credit Expert