148,983,000 Ft
381,000 €
- 73.3m²
- 3 Rooms
- 1st floor














Alsóörsön új építésű lakás eladó!
Megvételre kívánjuk Alsóörsön, a strandtól és kikötőtél két perces sétára ezt a luxus minőségen épülő első emeleti lakást.
Erről az új építésű projektről tudni kell, hogy a földszintjén négy db, az első emeleten öt darab, a második emeleten is szintén öt db lakás kerül kialakításra, és a harmadik szintre egy lakást tervezett építtető.
Ahhoz, hogy kényelmesen tudja megközelíteni a szinteket, építtető lifttel tervezi a feljutás a szintekre.
Az általam kínált lakás 38 m2-es, de a többi lakást is 156 m2-ig tervezték meg, és kínáljuk eladásra.
A projekt ott tart, hogy Ön ha most felkeres bennünket és elmondja kívánságát, akkor ezek a lakások még személyre szabottan alakíthatóak.
Az épületegyüttesnél a gépkocsi beállók és tárolók a pinceszinten kapnak helyet.
Mélygarázs parkoló opcionálisan lesz vásárolható, 14 db, valamint a kültéri parkolónál 6 db kerül kialakításra.
Tájékoztatjuk kedves ügyfeleinket, hogy az épülő lakások főbb műszaki paraméterei a következők:
* Prémium hideg és meleg burkolatokkal lesznek ellátva,
* Belső nyílászárók német min. MDF borítású dekorfóliával és erősített CPI fóliával válaszhatóak felárral, több színben
* Építtető prémium szanitereket tervezett
* Bejárati ajtó biztonsági MABISZ minősített
* Külső nyílászárók hő és hangszigeltek, német minőségben a hozzá tartozó elektromos redőnnyel, külső párkányokkal, amit készre szerelnek
*A lakások fűtési rendszere hőszivattyús megoldással van tervezve, amely a meleg vizet és a lakások hűtését-fűtését is biztosítja, mennyezet ill. padlófűtéssel.
* A lakások válaszfalazata 10 cm-es Leier N+F téglával tervezett
* A teherhordó falazatát Leier vagy Porotherm 30 N + vázkitöltéssel tervezték
* Az elválasztó falazat hangszigetelt, hanggátlós Silka termékkel tervezett
* Födéme vasbeton, vasalata betonváz
* Külső szigetelése Dryvet rendszerű, 12 cm-es nikecel
A munkálatok, építkezés az elmúlt év szeptemberében megindult, a tervezett átadása 2023. október vége.
Amennyiben felkeltettem érdeklődését ezek után a lakások után, úgy akár a fsz-en, akár az emeleti részen szeretne vásárolni, kérem ne habozzon, még ma hívjon, és egyeztessünk.
Várom megtisztelő hívását!
Erről az új építésű projektről tudni kell, hogy a földszintjén négy db, az első emeleten öt darab, a második emeleten is szintén öt db lakás kerül kialakításra, és a harmadik szintre egy lakást tervezett építtető.
Ahhoz, hogy kényelmesen tudja megközelíteni a szinteket, építtető lifttel tervezi a feljutás a szintekre.
Az általam kínált lakás 38 m2-es, de a többi lakást is 156 m2-ig tervezték meg, és kínáljuk eladásra.
A projekt ott tart, hogy Ön ha most felkeres bennünket és elmondja kívánságát, akkor ezek a lakások még személyre szabottan alakíthatóak.
Az épületegyüttesnél a gépkocsi beállók és tárolók a pinceszinten kapnak helyet.
Mélygarázs parkoló opcionálisan lesz vásárolható, 14 db, valamint a kültéri parkolónál 6 db kerül kialakításra.
Tájékoztatjuk kedves ügyfeleinket, hogy az épülő lakások főbb műszaki paraméterei a következők:
* Prémium hideg és meleg burkolatokkal lesznek ellátva,
* Belső nyílászárók német min. MDF borítású dekorfóliával és erősített CPI fóliával válaszhatóak felárral, több színben
* Építtető prémium szanitereket tervezett
* Bejárati ajtó biztonsági MABISZ minősített
* Külső nyílászárók hő és hangszigeltek, német minőségben a hozzá tartozó elektromos redőnnyel, külső párkányokkal, amit készre szerelnek
*A lakások fűtési rendszere hőszivattyús megoldással van tervezve, amely a meleg vizet és a lakások hűtését-fűtését is biztosítja, mennyezet ill. padlófűtéssel.
* A lakások válaszfalazata 10 cm-es Leier N+F téglával tervezett
* A teherhordó falazatát Leier vagy Porotherm 30 N + vázkitöltéssel tervezték
* Az elválasztó falazat hangszigetelt, hanggátlós Silka termékkel tervezett
* Födéme vasbeton, vasalata betonváz
* Külső szigetelése Dryvet rendszerű, 12 cm-es nikecel
A munkálatok, építkezés az elmúlt év szeptemberében megindult, a tervezett átadása 2023. október vége.
Amennyiben felkeltettem érdeklődését ezek után a lakások után, úgy akár a fsz-en, akár az emeleti részen szeretne vásárolni, kérem ne habozzon, még ma hívjon, és egyeztessünk.
Várom megtisztelő hívását!
Registration Number
U0044186
Property Details
Sales
for sale
Legal Status
new
Character
apartment
Construction Method
brick
Net Size
73.3 m²
Gross Size
90 m²
Size of Terrace / Balcony
18 m²
Heating
heat pump
Ceiling Height
260 cm
Orientation
South
View
river or lake view
Staircase Type
enclosed staircase
Condition
Excellent
Condition of Facade
Excellent
Condition of Staircase
Excellent
Neighborhood
quiet, good transport, green, central
Year of Construction
2023
Number of Bathrooms
1
Position
garden-facing
Garage
Separately purchasable
Water
Available
Electricity
Available
Sewer
Available
Elevator
available
Storage
Separately purchasable
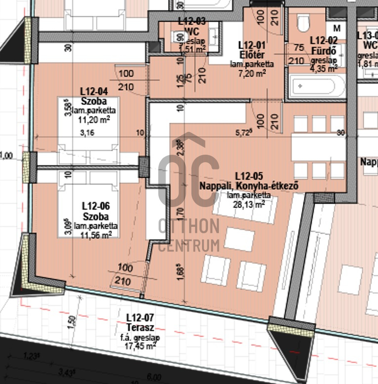
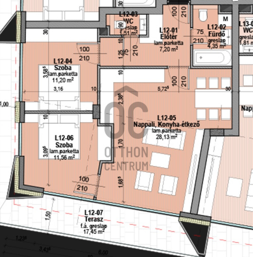
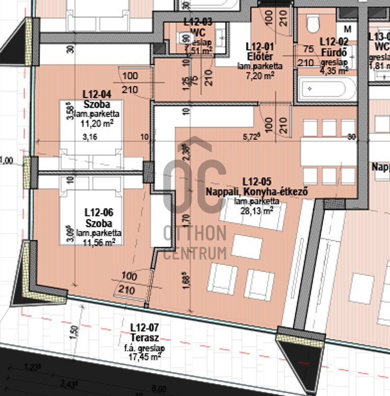
Rooms
entryway
7.2 m²
bathroom
4.35 m²
toilet
1.52 m²
bedroom
11.2 m²
open-plan kitchen and living room
28.13 m²
bedroom
11.56 m²