545,608,000 Ft
1,400,000 €
- 125m²
- 3 Rooms
- -3rd floor

















ÖRÖK PANORÁMÁS PRÉMIUM LUXUS Lakás A SASHEGY LÁBÁNÁL!
3 lakásos, full extrás, prémium, újépítésű, örök panorámás, liftes, garázsos, okos lakások 2025 III negyedévi költözéssel, kulcsrakészen eladók,
L 3-as lakás + welness szint és extra bónusz saját privát medence- ez csak csomagban eladó.
Megbízható, leinformálható kivitelezőtől, zsákutca végén természetvédelmi terület határán, a kilátótól mindössze 300 méterre álmai található otthona. Tágas nyitott terek, sok fény, benapozott óriás terasz és kert kapcsolat biztosítja a nyugalmat és a feltöltődést, pihenést.
A külön legalsó szinten kialakított közös térben saját wellness és relax központ van, városi panorámás szaunával, jakuzzival, kültéri medencével amely a 1,4 miliós euro árban benne van .
A megújuló hőszivattyús energiaforrás gondoskodik a hűtésről, fűtésről. Minden lakáshoz tartozik a földszinten egy terem garázs hely és egy szabadtéri beálló, amit kötelező megvásárolni 8,5 millió forintos áron. A lakásokhoz a közös területen saját tároló is a vételár részét képezi és minden lakáshoz privát lift biztosítja a kényelmes akadálymentesített közlekedést.
A műszaki tartalom mai kornak legfejlettebb kívánalmainak is eleget tesz A+ os energetikai besorolással. Tulajdon jogi helyzetét tekintve a legbiztonságosabb társasházi albetét, amely már a tulajdoni lapon is szerepel. Jöjjön, el nézze meg, garantáltan nem fog csalódni, a kivitelezés már folyamatban, a kivitelezés már folyamatban, az állapotjelenleg előrehaladott nyilás zárók bent, gépészet készen, belső munkákból még burkolás festés és szerelvényezés a külsőkből a és színezés van hátra, másik 2 lakás már elkelt.
L 3-as lakás + welness szint és extra bónusz saját privát medence- ez csak csomagban eladó.
Megbízható, leinformálható kivitelezőtől, zsákutca végén természetvédelmi terület határán, a kilátótól mindössze 300 méterre álmai található otthona. Tágas nyitott terek, sok fény, benapozott óriás terasz és kert kapcsolat biztosítja a nyugalmat és a feltöltődést, pihenést.
A külön legalsó szinten kialakított közös térben saját wellness és relax központ van, városi panorámás szaunával, jakuzzival, kültéri medencével amely a 1,4 miliós euro árban benne van .
A megújuló hőszivattyús energiaforrás gondoskodik a hűtésről, fűtésről. Minden lakáshoz tartozik a földszinten egy terem garázs hely és egy szabadtéri beálló, amit kötelező megvásárolni 8,5 millió forintos áron. A lakásokhoz a közös területen saját tároló is a vételár részét képezi és minden lakáshoz privát lift biztosítja a kényelmes akadálymentesített közlekedést.
A műszaki tartalom mai kornak legfejlettebb kívánalmainak is eleget tesz A+ os energetikai besorolással. Tulajdon jogi helyzetét tekintve a legbiztonságosabb társasházi albetét, amely már a tulajdoni lapon is szerepel. Jöjjön, el nézze meg, garantáltan nem fog csalódni, a kivitelezés már folyamatban, a kivitelezés már folyamatban, az állapotjelenleg előrehaladott nyilás zárók bent, gépészet készen, belső munkákból még burkolás festés és szerelvényezés a külsőkből a és színezés van hátra, másik 2 lakás már elkelt.
Registration Number
U0043167
Property Details
Sales
for sale
Legal Status
new
Character
apartment
Construction Method
brick
Net Size
125 m²
Gross Size
125 m²
Size of Terrace / Balcony
101 m²
Heating
renewable
Ceiling Height
260 cm
Number of Levels Within the Property
1
Orientation
South-West
View
city view
Staircase Type
enclosed staircase
Condition
Excellent
Condition of Facade
Excellent
Condition of Staircase
Excellent
Neighborhood
quiet, green
Year of Construction
2023
Number of Bathrooms
1
Position
garden-facing
Condominium Garden
yes
Garage
Mandatory to buy
Water
Available
Electricity
Available
Sewer
Available
Elevator
available
Connected to Garden
yes
Storage
Independent
Rooms
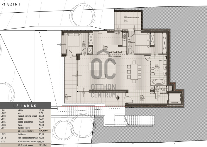
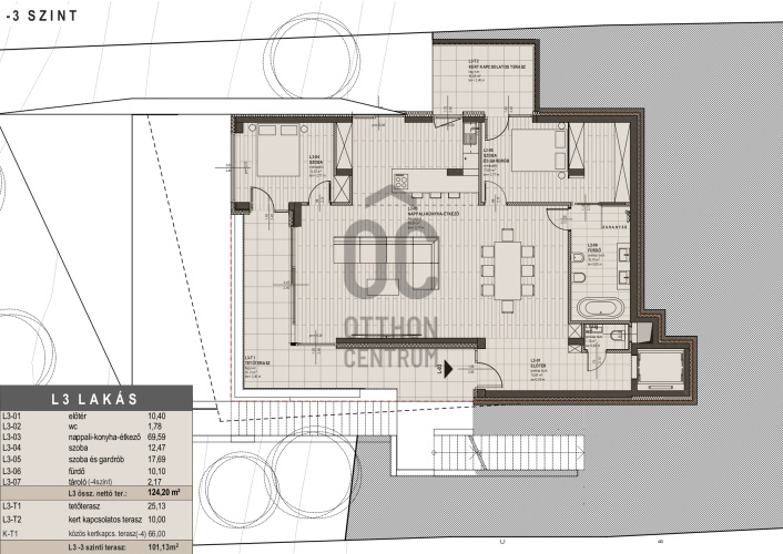
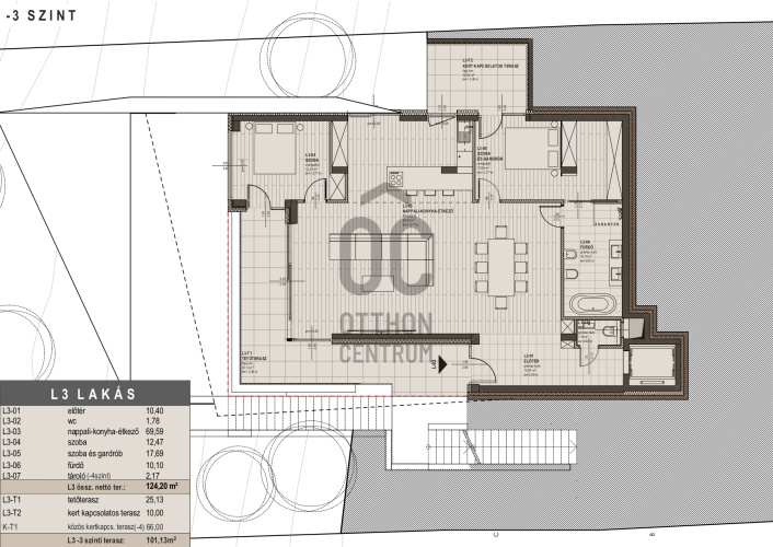
entryway
10.4 m²
toilet
1.78 m²
open-plan kitchen and living room
69.59 m²
bedroom
12.47 m²
bedroom
17.69 m²
bathroom
10.1 m²
storage
2.17 m²
values.realestate.szobatipus.49
25.13 m²
terrace
10 m²
terrace
66 m²