For sale plot, T041083
Kecskemét, Hetényegyháza

14,900,000 Ft

40,000 €

  • 1,070m²
Exclusive Contract

FOR SALE: A plot of land suitable for the construction of an industrial building in a quiet environment in Kecskemét–Hetényegyháza.

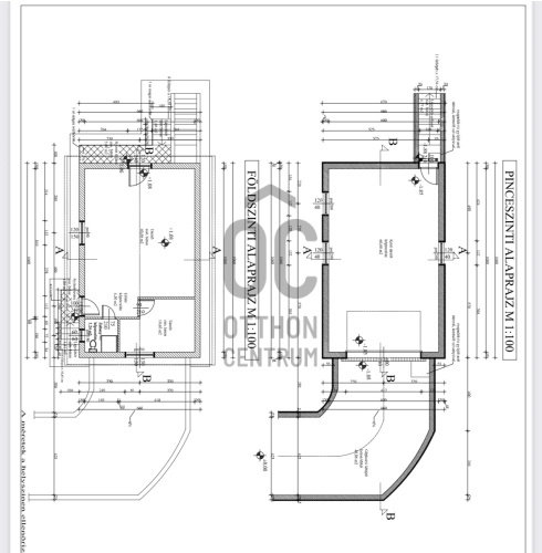
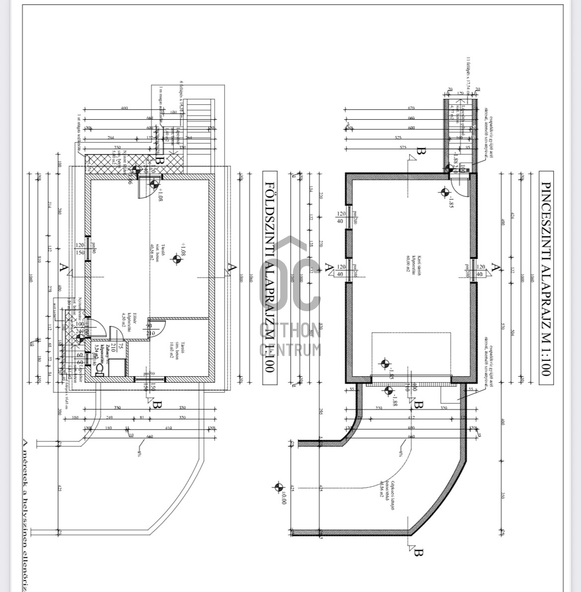
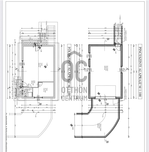
In a quiet, peaceful area of Kecskemét–Hetényegyháza, a 1070 m² plot of land is for sale, in undivided co-ownership, with an assigned house number and existing building permits for the construction of an economic building. Planned usable floor areas: - Basement: 60.00 m² - Ground floor: 58.98 m² Main features: - Quiet, peaceful environment - 1070 m² plot - Undivided co-ownership - Property with an assigned house number - Existing building permits - Economic building can be constructed - Complete planning documentation and technical description available upon request Recommended for anyone looking for a well-prepared, legally organized opportunity in the preferred area of Hetényegyháza. For more information, please feel free to contact us! Kecskemét, Hetényegyháza, plot, economic building, permit.

Registration Number

T041083

Property Details

Sales
for sale
Character
plot
Type of Land
Building plot
Zone
residential zone
Plot Size
1,070 m²
Orientation
South-West
Neighborhood
quiet, good transport, green
Gas
On the street
Electricity
Available

 

Buildability
6%
Facade Height
5
Type of Buildable Property
Farm building

From Our Office Listings - Kecskemét - Kisfaludy utca

for sale family house

Index image
data_sheet.details.realestate.section.main.otthonstart_flag.label
9

for sale apartment

Index image
data_sheet.details.realestate.section.main.otthonstart_flag.label
17

for sale apartment

Index image
data_sheet.details.realestate.section.main.otthonstart_flag.label
11