67,000,000 Ft
173,000 €
- 478m²





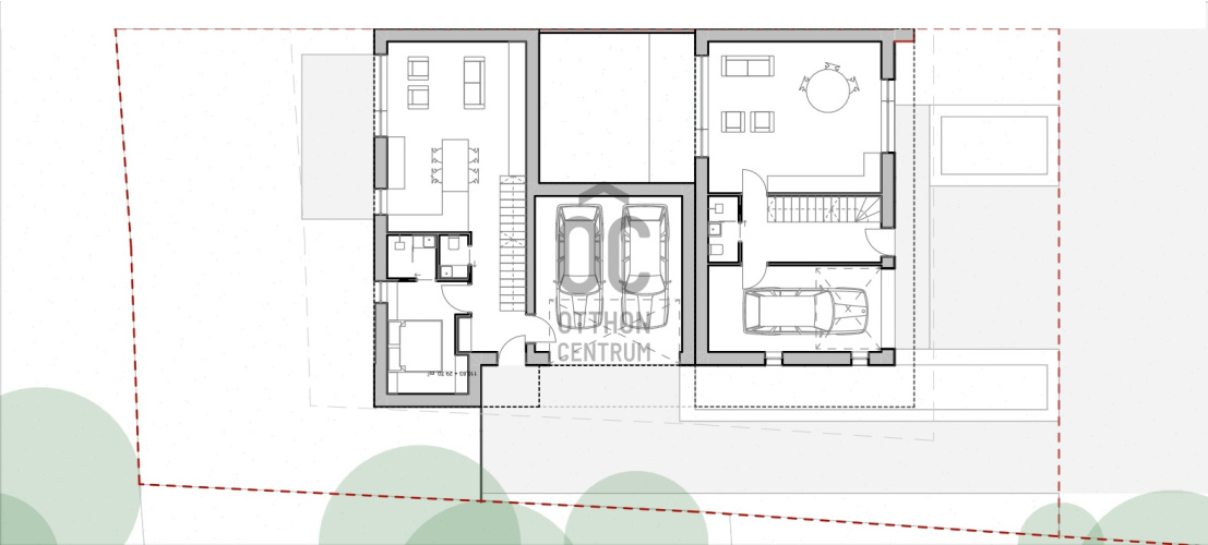
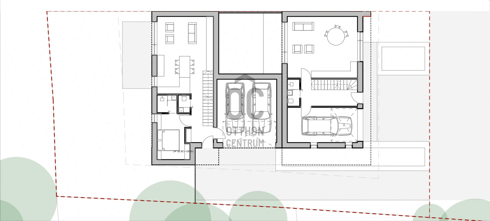
Családi ház, vagy ikerház építésére alkalmas telek a Postakertben eladó!
Debrecen, Postakertben eladó, 478 nm-es, családi ház vagy ikerház építésére alkalmas telek, tervekkel együtt. A feltüntetett ár nettó ár, még 27% ÁFA terheli.
Registration Number
T037979
Property Details
Sales
for sale
Character
plot
Type of Land
Building plot
Zone
residential zone
Plot Size
478 m²
Orientation
South-West
Water
On the street
Gas
On the street
Sewer
On the street
Buildability
40%
Facade Height
6
Type of Buildable Property
Family house, Semi-detached house

Czellér András
Credit Expert