For sale plot, T034500
Zsámbék

65,000,000 Ft

182,000 €

  • 880m²

Budapesttől alig fél óra autóútra, Zsámbék csendes utcájában, építési telek, kész tervekkel, eladó.

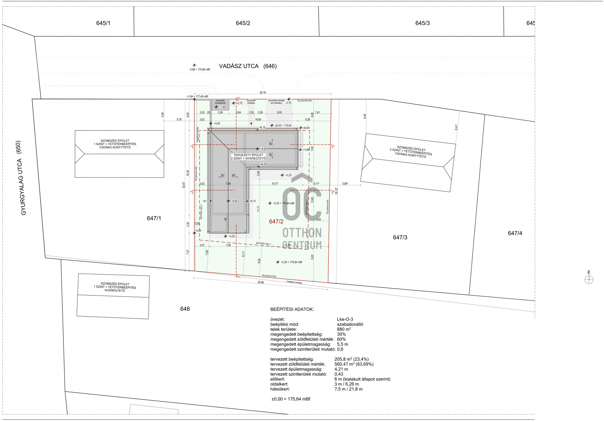
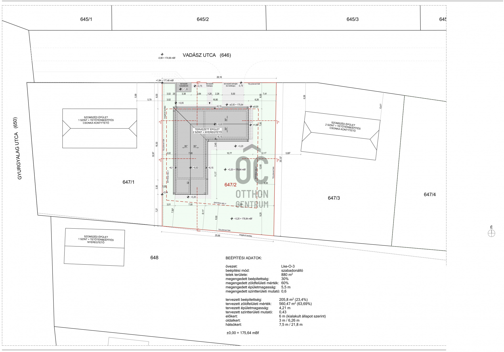
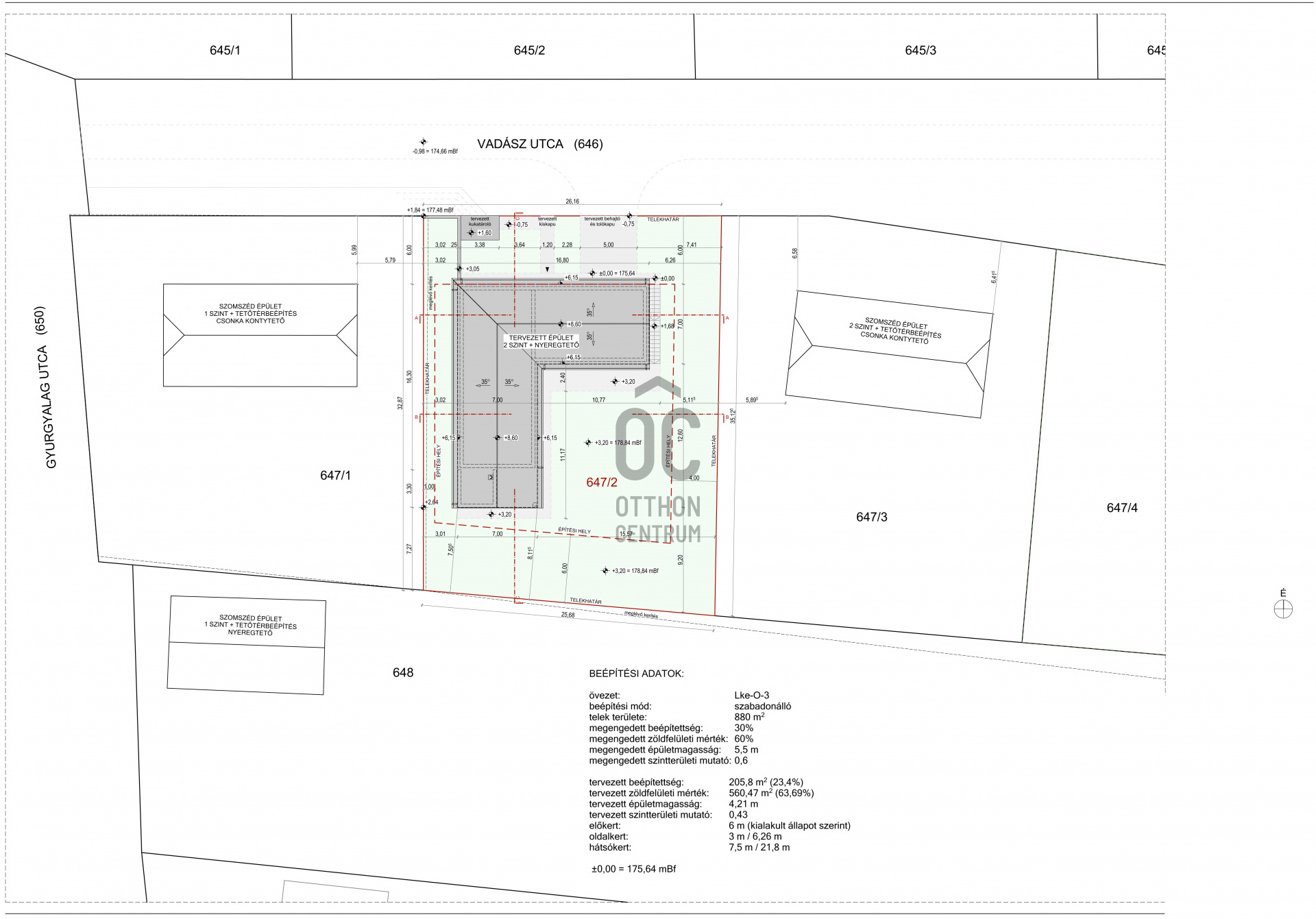
BEÉPÍTÉSI ADATOK:
- övezet: Lke-O-3
- beépítési mód: szabadon álló
- telek területe: 880 m2
- megengedett beépítettség: 30%
- megengedett zöldfelületi mérték: 60%
- megengedett épületmagasság: 5,5 m
- megengedett szintterületi mutató: 0,6


- tervezett beépítettség: 205,8 m2 (23,4%)
- tervezett zöldfelületi mérték: 560,47 m2 (63,69%)
- tervezett épületmagasság: 4,21 m
- tervezett szintterületi mutató: 0,43
- előkert: 6 m (kialakult állapot szerint)
- oldalkert: 3 m / 6,26 m
- hátsókert: 7,5 m / 21,8 m

A telek, cég tulajdonában van, a vételár 27% áfa-t tartalmaz.

Registration Number

T034500

Property Details

Sales
for sale
Character
plot
Type of Land
Building plot
Zone
residential zone
Plot Size
880 m²
Orientation
North-East
Neighborhood
quiet, green
Water
On the street
Gas
On the street
Electricity
On the street
Sewer
On the street

 

Slope of Land
10-20% slope
Buildability
30%
Facade Height
550
Type of Buildable Property
Family house
Pongó Miklós
Pongó Miklós

Credit Expert

From Our Office Listings - XXII. kerület - Mária Terézia utca

for sale panel apartment

Index image
data_sheet.details.realestate.section.main.otthonstart_flag.label
8

for sale new construction semi-detached house

Index image
data_sheet.details.realestate.section.main.otthonstart_flag.label
3

for sale family house

Index image
34

for sale new construction apartment

Index image
data_sheet.details.realestate.section.main.otthonstart_flag.label
7

for rent apartment

Index image
25

for sale new construction apartment

Index image
data_sheet.details.realestate.section.main.otthonstart_flag.label
3

for sale new construction apartment

Index image
data_sheet.details.realestate.section.main.otthonstart_flag.label
4

for sale new construction apartment

Index image
data_sheet.details.realestate.section.main.otthonstart_flag.label
3

for sale new construction family house

Index image
8

for sale new construction semi-detached house

Index image
7

for sale panel apartment

Index image
data_sheet.details.realestate.section.main.otthonstart_flag.label
12