1,230,096,000 Ft
3,167,000 €
- 102,508m²
 
            
                                                             
            
                                                             
            
                                                             
            
                                                            FEJLESZTÉSI TELEK VÁCRÁTÓTON ELADÓ! Jelenleg a közművesítés zajlik!
Vácrátót község Pest megyében, a Váci járásban,az Alföld északi részén található Veresegyházi-medencében fekszik.
Övezeti besorolás: Gksz 1- kereskedelmi szolgáltató gazdasági terület
Beépítési mód: szabadonálló
Maximális beépíthetőség:30%
Minimális telekméret: 4000m2
Építménymagasság: 4-15 méter
AZ ÁR AZ ÉPPEN AKTUÁLISAN ZAJLÓ KÖZMŰFEJLESZTÉSEK FÜGGVÉNYÉBEN VÁLTOZHAT!
1 hektáros tömbönként szeretné eladni a tulajdonos
Új szabályozási terv elfogadása van folyamatban.
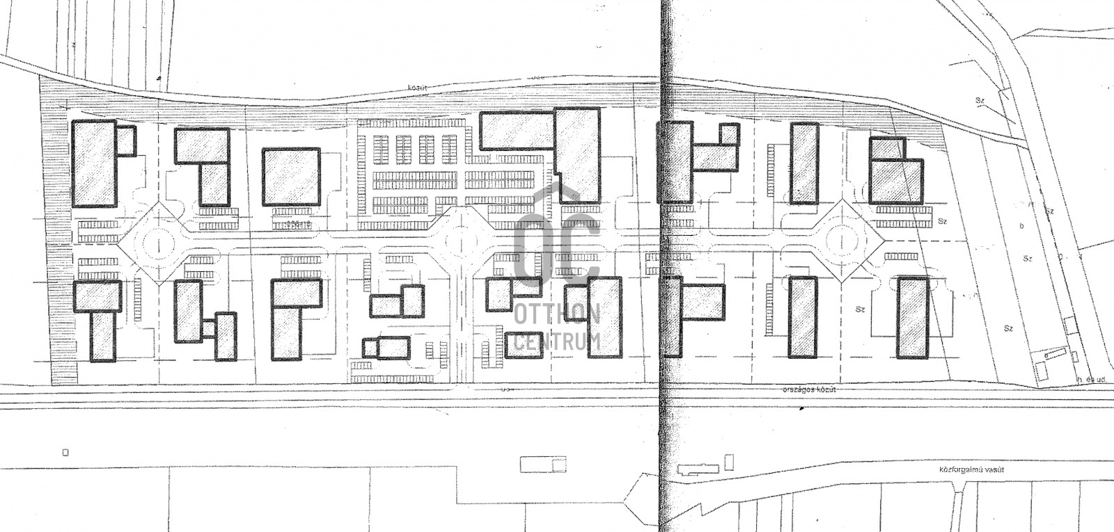
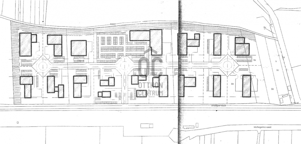
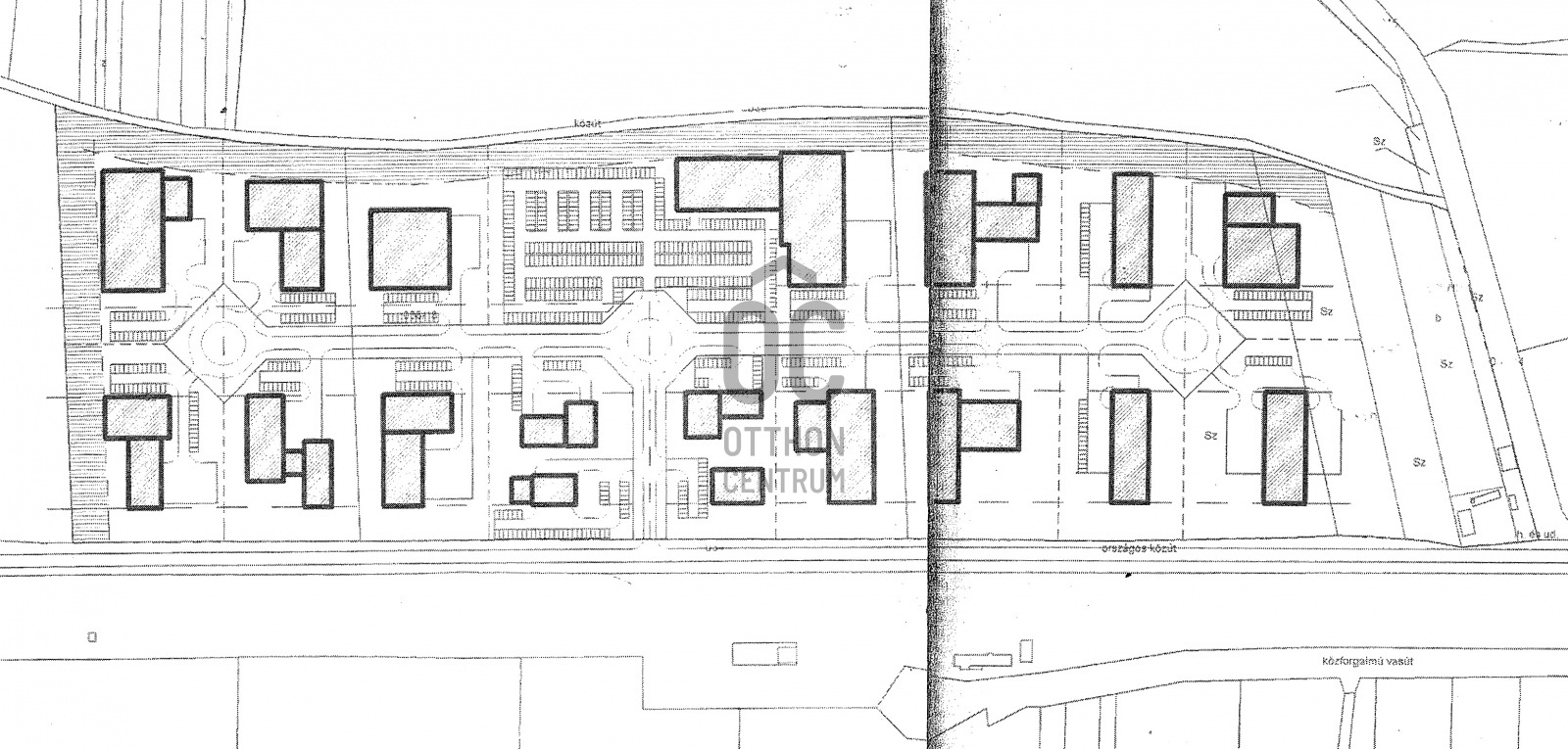
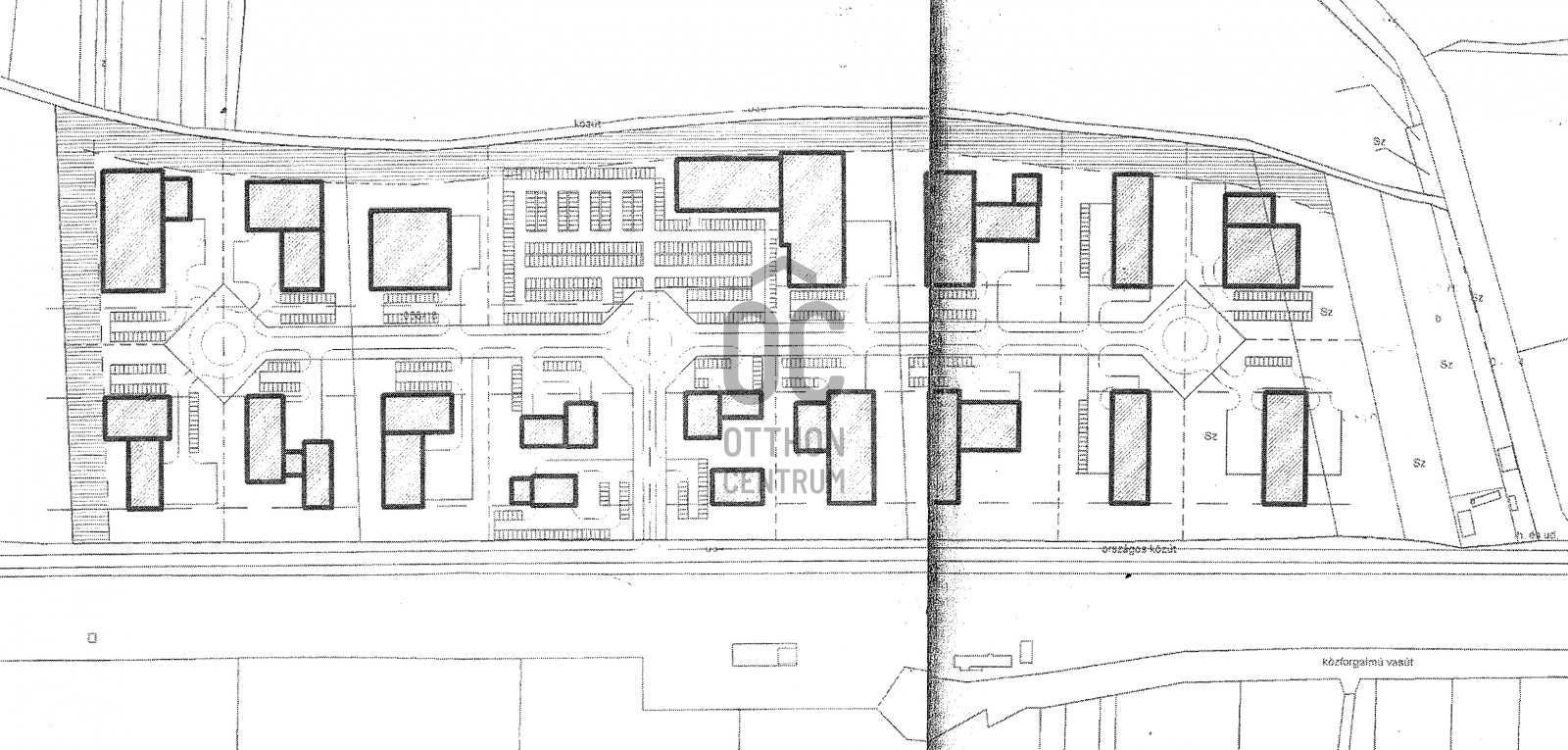
A jelenlegi szabályozás szerint belső feltáró út kialakítása szükséges amely lehetővé tenné a terület akár 25 telekre való felosztását.
Mindemellett az önkormányzat partner lenne abban is, hogy a feltáró út kikerüljön az építési szabályozásból és a terület egyben lenne hasznosítva, ily módon munkahelyteremtő beruházás valósulna meg.
                    Vácrátót község Pest megyében, a Váci járásban,az Alföld északi részén található Veresegyházi-medencében fekszik.
Övezeti besorolás: Gksz 1- kereskedelmi szolgáltató gazdasági terület
Beépítési mód: szabadonálló
Maximális beépíthetőség:30%
Minimális telekméret: 4000m2
Építménymagasság: 4-15 méter
AZ ÁR AZ ÉPPEN AKTUÁLISAN ZAJLÓ KÖZMŰFEJLESZTÉSEK FÜGGVÉNYÉBEN VÁLTOZHAT!
1 hektáros tömbönként szeretné eladni a tulajdonos
Új szabályozási terv elfogadása van folyamatban.
A jelenlegi szabályozás szerint belső feltáró út kialakítása szükséges amely lehetővé tenné a terület akár 25 telekre való felosztását.
Mindemellett az önkormányzat partner lenne abban is, hogy a feltáró út kikerüljön az építési szabályozásból és a terület egyben lenne hasznosítva, ily módon munkahelyteremtő beruházás valósulna meg.
Registration Number
T021267
                Property Details
Sales
                                        for sale
                                                                                                                                                Legal Status
                                        used
                                                                                                                                                Character
                                        plot
                                                                                                                                                                                                                                                                                                                                                                                                                                Type of Land
                                        Developmental plot
                                                                                                                                                Zone
                                        industrial-economic zone
                                                                                                                                                                                                                                                                                        Net Size
                                        102,508 m²
                                                                                                                                                Gross Size
                                        102,508 m²
                                                                                                                                                Plot Size
                                        102,508 m²
                                                                                                                                                                                                                                                                                                                                                                                                                                                                                                                                                                                                                                                                                                                                                                                                                                                                                                                                                                                                                                                                                                                                                                                                                                                                                                                                                    Number of Bathrooms
                                        1
                                                                                                                                                                                                                                                                                                                                                                                                                                                                                                                                                                                                                                                                                                                Water
                                        On the street
                                                                                                                                                Gas
                                        On the street
                                                                                                                                                Electricity
                                        On the street
                                                                                                                                                Sewer
                                        On the street
                                                                                                                                                                                                                                                                                                                                                                                                                                                                                                                                                                                            Type of Buildable Property
                                            Industrial hall or warehouse
                                                                                                                                                                                                                                                                                                                                                                                                                                                                                                                                                                                                                                                                 
                    
                 
                         
                         
                         
                         
                    
                 
                 
                 
                 
                 
                 
                 
                 
                 
                 
                 
                