data_sheet.details.realestate.section.main.otthonstart_flag.label
For sale new construction apartment,
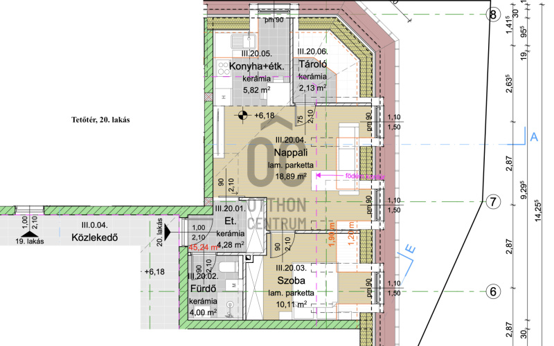
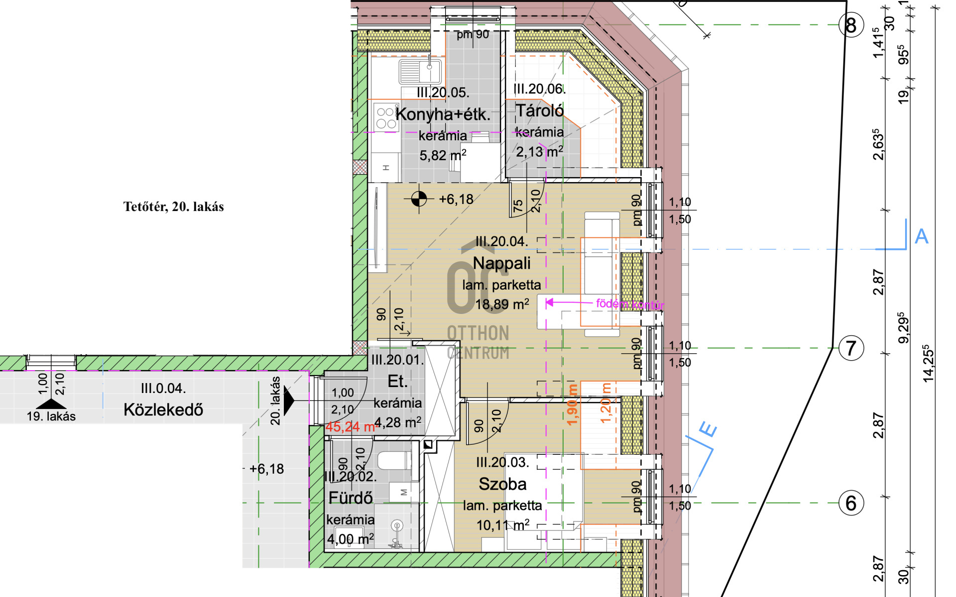
P4816-3-01-TE-020
Keszthely, Belváros
53,840,000 Ft
151,000 €
- 45.2m²
- 2 Rooms
- attic
AHOL A CSALÁD MINDEN TAGJA JÓL ÉREZHETI MAGÁT!
Registration Number
P4816-3-01-TE-020
Property Details
Sales
for sale
Legal Status
new
Character
apartment
Construction Method
brick
Net Size
45.2 m²
Gross Size
50 m²
Ceiling Height
260 cm
Orientation
East
Staircase Type
enclosed staircase
Condition
Excellent
Condition of Facade
Excellent
Condition of Staircase
Excellent
Neighborhood
good transport, central
Year of Construction
2026
Number of Bathrooms
1
Position
street-facing
Garage
Separately purchasable
Water
Available
Gas
On the street
Electricity
Available
Sewer
Available
Elevator
available
Storage
Separately purchasable
Rooms
entryway
4.28 m²
bathroom-toilet
4 m²
room
10.11 m²
living room
18.89 m²
open-plan kitchen and dining room
5.82 m²
storage
2.13 m²