For sale new construction apartment, P4786-1-01-03-002
Budapest XIII. kerület, Angyalföld

90,700,000 Ft

254,000 €

  • 49.3m²
  • 2 Rooms
  • 3rd floor

Registration Number

P4786-1-01-03-002

Property Details

Sales
for sale
Legal Status
new
Character
apartment
Construction Method
brick
Net Size
49.3 m²
Gross Size
50.4 m²
Size of Terrace / Balcony
4.8 m²
Heating
heat pump
Ceiling Height
270 cm
Orientation
West
Staircase Type
enclosed staircase
Condition
Excellent
Condition of Facade
Excellent
Condition of Staircase
Excellent
Neighborhood
quiet, good transport, green, central
Year of Construction
2027
Number of Bathrooms
1
Position
street-facing
Garage
Mandatory to buy
Water
Available
Electricity
Available
Sewer
Available
Elevator
available
Storage
Mandatory to buy

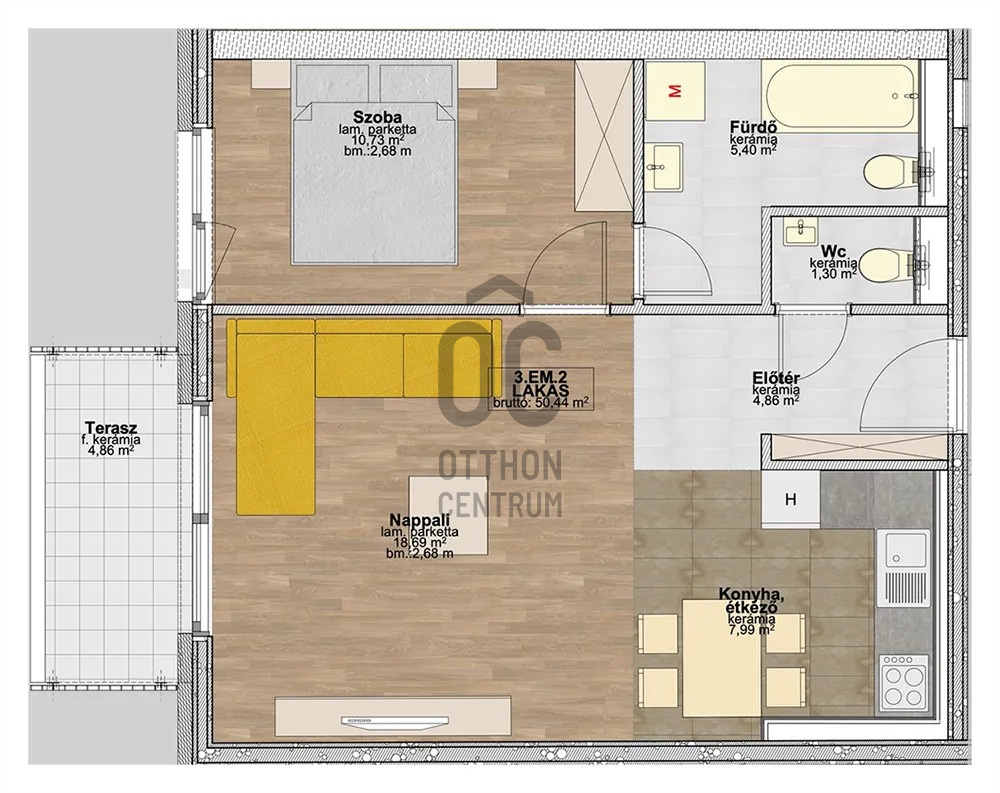
Rooms

living room
18.69 m²
open-plan kitchen and dining room
7.99 m²
bedroom
10.73 m²
bathroom-toilet
5.4 m²
toilet-washbasin
1.3 m²
entryway
4.86 m²
balcony
4.86 m²
Németh István
Németh István

Credit Expert

From Our Office Listings - XIII. kerület - Dagály Residence

for sale row house

Index image
data_sheet.details.realestate.section.main.otthonstart_flag.label
9

for sale plot

Index image
7

for sale apartment

Index image
16

for sale apartment

Index image
15

for sale apartment

Index image
10

for sale apartment

Index image
10

for sale apartment

Index image
data_sheet.details.realestate.section.main.otthonstart_flag.label
19