data_sheet.details.realestate.section.main.otthonstart_flag.label
For sale new construction semi-detached house, P4755-1-0A-NA-004
Debrecen, Vargakert

137,465,000 Ft

353,000 €

  • 137m²
  • 5 Rooms

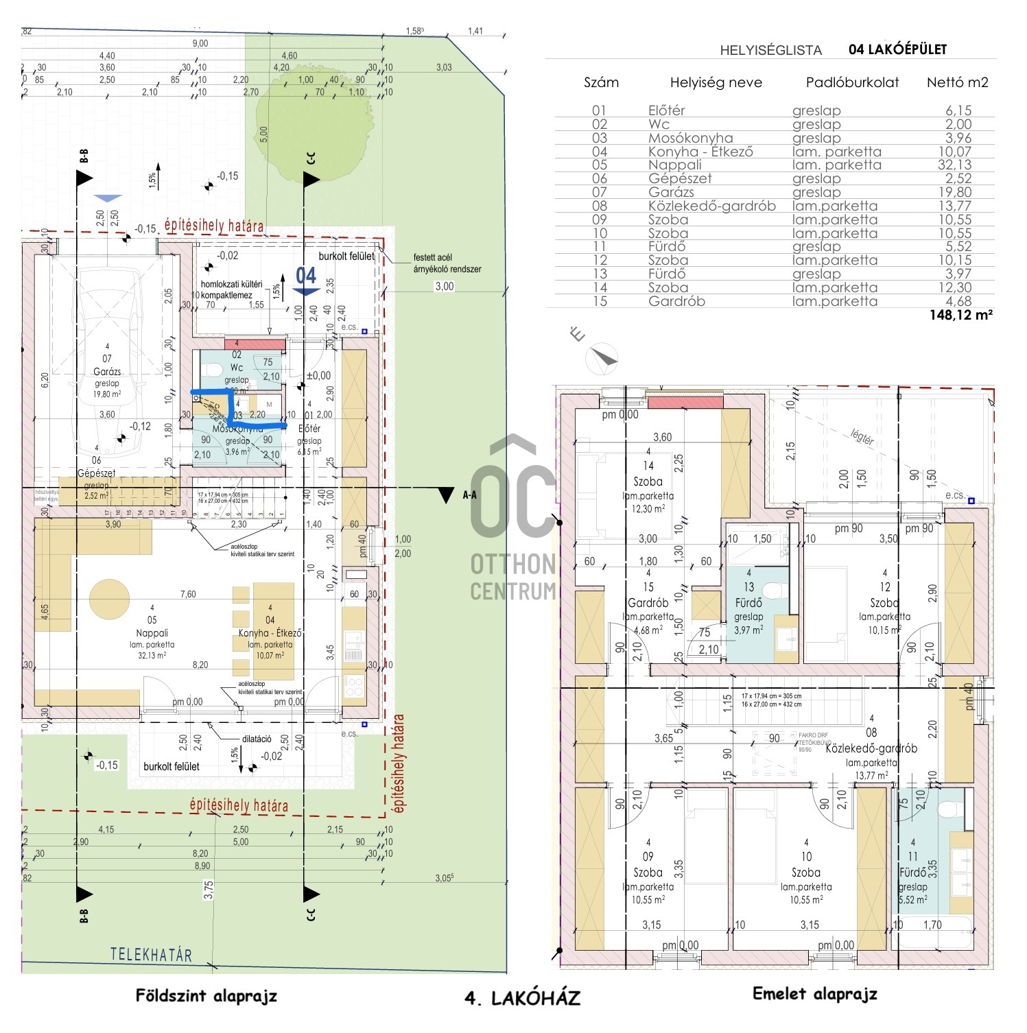
4. lakóház Br. 155 nm, nappali + 4 hálós:

Földszint:
- amerikaikonyhás nappali étkezővel (42 nm), teraszkapcsolattal
- mosókonyha (4 nm)
- vendég WC
- garázs gépészettel (22 nm)
- kertkapcsolat (160 nm)

Emelet:
- szülői háló gardróbbal és fürdőszobával (21 nm)
- 3 hálószoba ( 10, 11, 11 nm)
- fürdőszoba (6 nm)
- közlekedő gardróbbal (14 nm)

Registration Number

P4755-1-0A-NA-004

Property Details

Sales
for sale
Legal Status
new
Character
house
Construction Method
brick
Net Size
137 m²
Gross Size
155 m²
Plot Size
480 m²
Size of Terrace / Balcony
7 m²
Heating
heat pump
Ceiling Height
260 cm
Number of Levels Within the Property
1
Orientation
South-West
Condition
Excellent
Condition of Facade
Excellent
Neighborhood
quiet, good transport
Year of Construction
2026
Number of Bathrooms
2
Condominium Garden
yes
Garage
Included in the price
Garage Spaces
1
Water
Available
Gas
Available
Electricity
Available
Sewer
Available
Storage
Independent

Rooms

living room
32 m²
open-plan kitchen and dining room
10 m²
laundry room
4 m²
toilet-washbasin
2 m²
entryway
6 m²
garage
20 m²
other room
2 m²
terrace
7 m²
room
11 m²
room
11 m²
room
10 m²
bathroom-toilet
6 m²
bedroom
12 m²
wardrobe
5 m²
bathroom-toilet
4 m²
corridor
14 m²
Czellér András
Czellér András

Credit Expert

From Our Office Listings - Debrecen - Kálvin tér

for sale family house

Index image
data_sheet.details.realestate.section.main.otthonstart_flag.label
28

for sale panel apartment

Index image
data_sheet.details.realestate.section.main.otthonstart_flag.label
16

for sale new construction semi-detached house

Index image
5

for sale new construction semi-detached house

Index image
data_sheet.details.realestate.section.main.otthonstart_flag.label
6

for sale new construction semi-detached house

Index image
data_sheet.details.realestate.section.main.otthonstart_flag.label
6

for sale new construction semi-detached house

Index image
data_sheet.details.realestate.section.main.otthonstart_flag.label
11

for sale new construction semi-detached house

Index image
data_sheet.details.realestate.section.main.otthonstart_flag.label
10