data_sheet.details.realestate.section.main.otthonstart_flag.label
For sale new construction apartment,
P4737-1-01-02-004
Nyíregyháza,
48,850,000 Ft
126,000 €
- 45.6m²
- 2 Rooms
- 2nd floor




Új építésű lakás a Hatzel tér közelében
Új építésű, amerikai konyhás, 1 szobás lakások eladók Nyíregyháza belvárosában, a Hatzel tér közelében! A 10 lakásos társasház csendes utcában épül, erkélyes lakásokkal, garázs- és udvari beálló lehetőséggel. 30-as szigetelés, 3 rétegű nyílászárók, padlófűtés, klíma – minden adott a modern élethez.
Átadás: 2026 nyár. Foglaljon időben!
Átadás: 2026 nyár. Foglaljon időben!
Registration Number
P4737-1-01-02-004
Property Details
Sales
for sale
Legal Status
new
Character
apartment
Construction Method
brick
Net Size
45.6 m²
Gross Size
48.8 m²
Size of Terrace / Balcony
3.2 m²
Heating
Gas circulator
Ceiling Height
275 cm
Number of Levels Within the Property
2
Orientation
East
Staircase Type
enclosed staircase
Condition
Excellent
Condition of Facade
Excellent
Condition of Staircase
Excellent
Neighborhood
quiet, good transport, green, central
Year of Construction
2026
Number of Bathrooms
1
Position
street-facing
Garage
Separately purchasable
Water
Available
Gas
Available
Electricity
Available
Sewer
Available
Storage
Shared
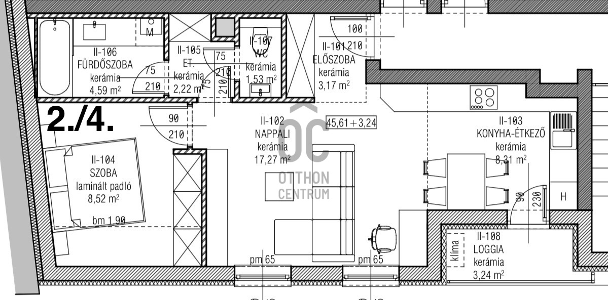
Rooms
room
8.52 m²
living room
17.27 m²
open-plan kitchen and dining room
8.31 m²
bathroom
4.59 m²
toilet
1.53 m²
entryway
3.17 m²
corridor
2.22 m²

Czövek Zoltánné
Credit Expert