data_sheet.details.realestate.section.main.otthonstart_flag.label
For sale new construction apartment,
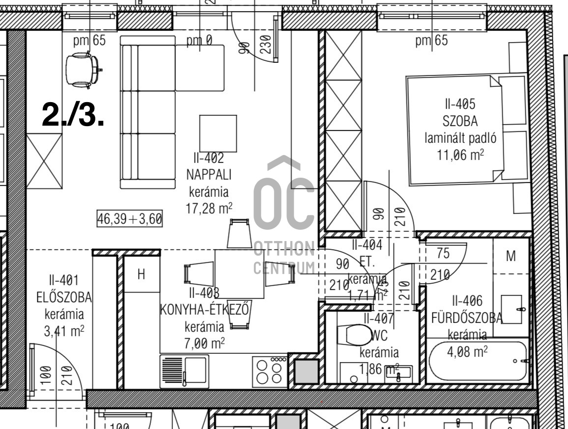
P4737-1-01-02-003
Nyíregyháza,
49,990,000 Ft
129,000 €
- 46.3m²
- 2 Rooms
- 2nd floor




Új építésű lakás a Hatzel tér közelében!
Eladó 1 szobás, tágas amerikai konyhás nappalival rendelkező lakás, külön fürdőszobával és WC-vel. Minden lakáshoz saját erkély tartozik, amely kellemes kikapcsolódást nyújt. A szobákban laminált parketta, míg a többi helyiségben járólap burkolat található. A földszinten közös tároló áll a lakók rendelkezésére, az udvar közösen használható. Garázs és udvari gépkocsibeálló külön megvásárolható. Ideális választás pároknak vagy befektetés céljára is.
Registration Number
P4737-1-01-02-003
Property Details
Sales
for sale
Legal Status
new
Character
apartment
Construction Method
brick
Net Size
46.3 m²
Gross Size
49.9 m²
Size of Terrace / Balcony
3.6 m²
Heating
Gas circulator
Ceiling Height
275 cm
Number of Levels Within the Property
2
Orientation
West
Staircase Type
enclosed staircase
Condition
Excellent
Condition of Facade
Excellent
Condition of Staircase
Excellent
Neighborhood
quiet, good transport, green, central
Year of Construction
2026
Number of Bathrooms
1
Position
courtyard-facing
Garage
Separately purchasable
Water
Available
Gas
Available
Electricity
Available
Sewer
Available
Storage
Shared
Rooms
room
11.06 m²
living room
17.28 m²
kitchen
7 m²
bathroom
4.08 m²
toilet
1.86 m²
entryway
3.41 m²
corridor
1.71 m²

Czövek Zoltánné
Credit Expert