data_sheet.details.realestate.section.main.otthonstart_flag.label
For sale new construction apartment,
P4737-1-01-01-002
Nyíregyháza,
51,760,000 Ft
134,000 €
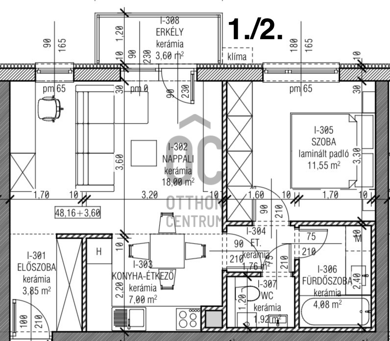
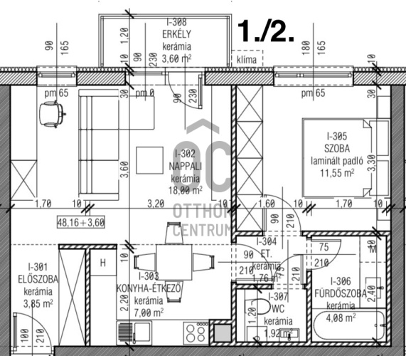
- 48.1m²
- 2 Rooms
- 1st floor



Registration Number
P4737-1-01-01-002
Property Details
Sales
for sale
Legal Status
new
Character
apartment
Construction Method
brick
Net Size
48.1 m²
Gross Size
51.7 m²
Size of Terrace / Balcony
3.6 m²
Heating
Gas circulator
Ceiling Height
275 cm
Number of Levels Within the Property
2
Orientation
West
Staircase Type
enclosed staircase
Condition
Excellent
Condition of Facade
Excellent
Condition of Staircase
Excellent
Neighborhood
quiet, good transport, green, central
Year of Construction
2026
Number of Bathrooms
1
Position
courtyard-facing
Garage
Separately purchasable
Water
Available
Gas
Available
Electricity
Available
Sewer
Available
Storage
Shared
Rooms
room
11.55 m²
living room
18 m²
open-plan kitchen and dining room
7 m²
bathroom
4.08 m²
toilet
1.92 m²
entryway
3.85 m²
corridor
1.76 m²

Czövek Zoltánné
Credit Expert