For sale new construction apartment, P4726-V1-01-02-202
Budapest XIII. kerület, Angyalföld

81,498,000 Ft

215,000 €

  • 47m²
  • 2 Rooms
  • 2nd floor

Registration Number

P4726-V1-01-02-202

Property Details

Sales
for sale
Legal Status
new
Character
apartment
Construction Method
brick
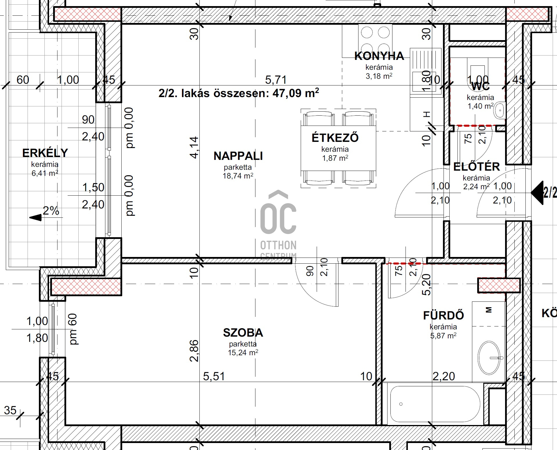
Net Size
47 m²
Gross Size
50.3 m²
Size of Terrace / Balcony
6.4 m²
Heating
heat pump
Ceiling Height
270 cm
Number of Levels Within the Property
1
Orientation
East
Staircase Type
enclosed staircase
Condition
Excellent
Condition of Facade
Excellent
Condition of Staircase
Excellent
Neighborhood
quiet, good transport, green
Year of Construction
2026
Number of Bathrooms
1
Position
garden-facing
Condominium Garden
yes
Garage
Separately purchasable
Water
Available
Gas
Available
Electricity
Available
Sewer
Available
Elevator
available
Storage
Separately purchasable

Rooms

open-plan kitchen and living room
23.79 m²
room
15.24 m²
bathroom
5.87 m²
Berkes-Jakus Kinga
Berkes-Jakus Kinga

Credit Expert

From Our Office Listings - XIII. kerület - Béke Residence

eladó lakás

Index image
30

eladó telek

Index image
3

kiadó lakás

Index image
10

eladó telek

Index image
2