data_sheet.details.realestate.section.main.otthonstart_flag.label
For sale new construction apartment,
P4662-1-01-02-014
Nyíregyháza,
39,000,000 Ft
101,000 €
- 38.9m²
- 2 Rooms
- 2nd floor









ÚJ ÉPÍTÉSŰ LAKÁSOK, ÜZLETHELYISÉGEK NYíREGYHÁZA
Registration Number
P4662-1-01-02-014
Property Details
Sales
for sale
Legal Status
new
Character
apartment
Construction Method
brick
Net Size
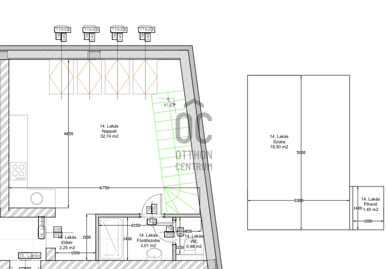
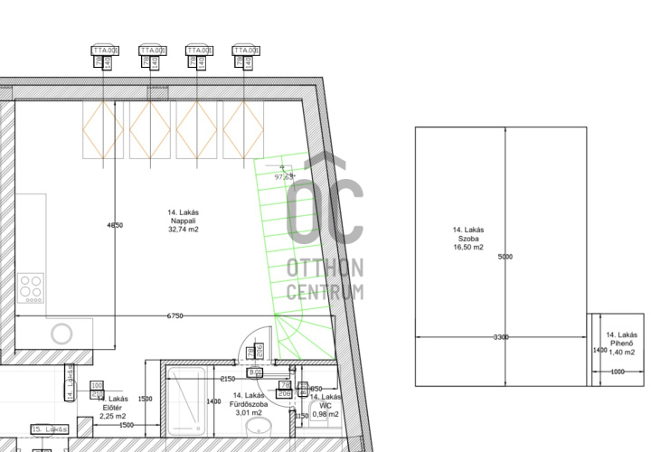
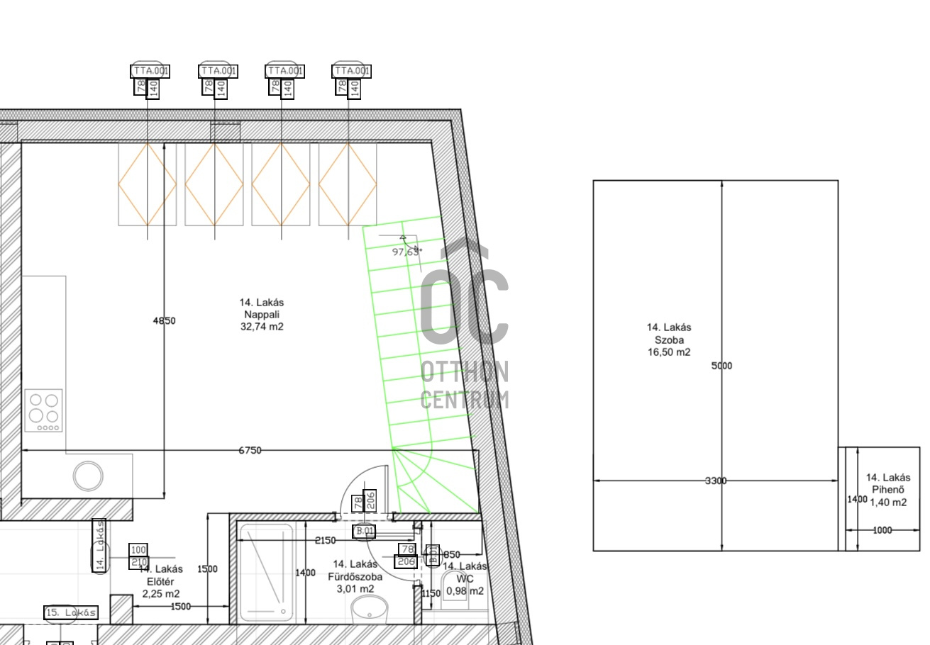
38.9 m²
Gross Size
47 m²
Heating
heat pump
Ceiling Height
270 cm
Number of Levels Within the Property
1
Orientation
North-East
Staircase Type
enclosed staircase
Condition
Excellent
Condition of Facade
Excellent
Condition of Staircase
Excellent
Neighborhood
good transport, central
Year of Construction
2025
Number of Bathrooms
1
Position
courtyard-facing
Garage
Separately purchasable
Water
Available
Electricity
Available
Sewer
Available
Rooms
entryway
2.25 m²
living room
32.74 m²
bathroom
3.01 m²
toilet
0.98 m²

Czövek Zoltánné
Credit Expert