153,031,500 Ft
391,000 €
- 64.4m²
- 3 Rooms
- 5th floor


Kiváló lokáció, értékálló befektetés!
Befektetőknek! Az ingatlan az 5. emeleten található. Kertre néző. Egy helyrajzi számon két különálló ingatlan került kialakításra.
Egy garzon és egy nappali + 1 hálós lakás. 70.242.900 Ft, 82.788.600 Ft. Ügyvédi megosztással külön is megvásárolhatók.
Egy garzon és egy nappali + 1 hálós lakás. 70.242.900 Ft, 82.788.600 Ft. Ügyvédi megosztással külön is megvásárolhatók.
Registration Number
P4648-1-0A-05-009
Property Details
Sales
for sale
Legal Status
new
Character
apartment
Construction Method
brick
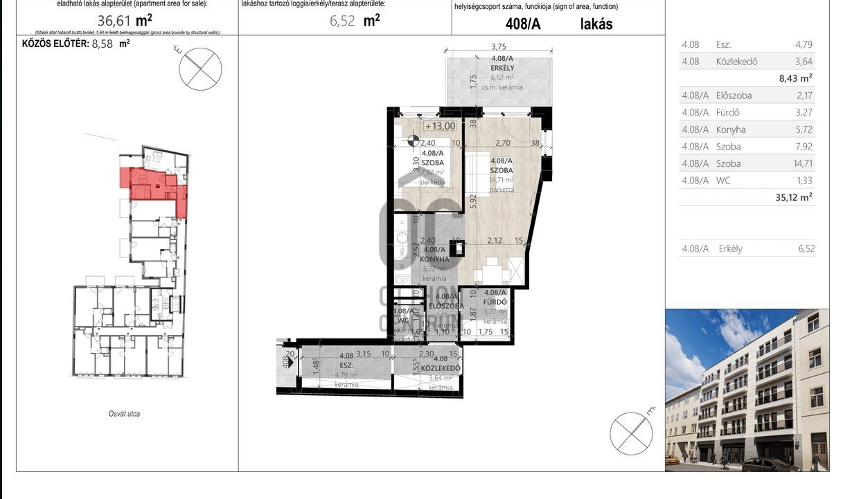
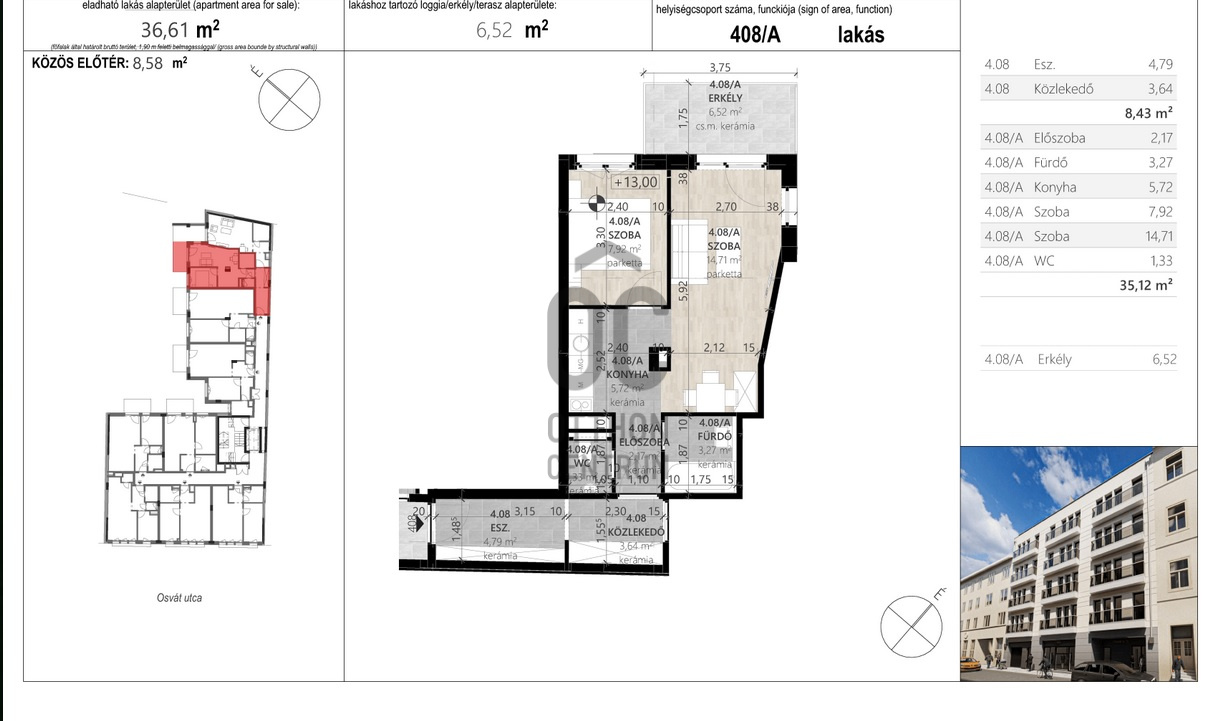
Net Size
64.4 m²
Gross Size
82.2 m²
Size of Terrace / Balcony
14.2 m²
Heating
heat pump
Ceiling Height
260 cm
Orientation
North-West
Staircase Type
enclosed staircase
Condition
Excellent
Condition of Facade
Excellent
Condition of Staircase
Excellent
Year of Construction
2026
Number of Bathrooms
2
Position
garden-facing
Garage
Separately purchasable
Water
Available
Electricity
Available
Sewer
Available
Elevator
available
Rooms
open-plan kitchen and living room
0 m²
open-plan kitchen and living room
0 m²
bedroom
0 m²
entryway
0 m²
corridor
0 m²
toilet-washbasin
0 m²
bathroom
0 m²
entryway
0 m²
corridor
0 m²
entryway
0 m²
open-plan kitchen and dining room
0 m²
corridor
0 m²
open-plan kitchen and living room
0 m²
shower
0 m²

Ruczek Krisztina
Credit Expert