data_sheet.details.realestate.section.main.otthonstart_flag.label
For sale new construction apartment, P4639-1-0A-02-009
Siófok, Belváros

71,500,000 Ft

189,000 €

  • 48.2m²
  • 2 Rooms
  • 2nd floor

Live in Siófok! - City center apartments - premium quality

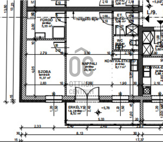
I am offering premium quality city center apartments for your attention, with a handover date of April 10, 2025! Excellent location, high technical content! I am offering for sale apartments in a newly built residential building with 12 units, completed in 2024. About the condominium: 12 newly built apartments are for sale in the city center of Siófok. The building has brick walls, its facade is insulated, and heating, cooling, and hot water supply are provided by a heat pump supported by H-tariff, along with a central gas boiler, with underfloor heating and ceiling cooling. Additionally, the condominium will be equipped with a solar panel system. The building naturally meets modern expectations and is equipped with an elevator. The project includes 3 ground floor apartments, 4 apartments on the first floor, 4 on the second floor, and one penthouse on the third floor. The built environment of the city center provides safety. The unusual concept is paired with modern execution – the building aligns with the street front, ensuring views from every apartment, either towards the city center or the Italian-style inner courtyard. Among the ground floor apartments, 2 have garden access, while all upper floor apartments have balconies. The building is located 800 meters from Lake Balaton, making it easily accessible year-round in a 10-minute walk through Jókai Park towards the Main Square. The types of apartments in the condominium are designed to meet every need. On the ground floor, there are garden-access apartments, and on the 3rd floor, there is a spacious penthouse apartment with a large terrace waiting for its owner. Each floor features every type of apartment: for those who prefer smaller apartments, a living room + 1 bedroom layout may be ideal, but larger family-friendly versions with up to three bedrooms are also available. It is important to emphasize that comfort and functionality remain significant, as most apartments have a south-facing balcony. About the apartment: - 2nd floor - South-facing - 48.25 sqm + 8.52 sqm balcony - Layout: living room - kitchen - dining area + 1 bedroom, bathroom, hallway, toilet Parking spaces and storage units can be purchased on the southern side of the building. There are 24 parking spaces in the underground garage, and the same number of closed garages can also be purchased! The internal technical equipment of the apartments meets today's requirements and comfort expectations. The heat pump heating and cooling system is a well-established, energetically modern solution that provides a pleasant temperature in both winter and summer and can even be controlled remotely. The hot water supply is ensured by a central gas boiler with a 500-liter hot water storage tank, circulated. The apartments are equipped with underfloor heating and ceiling cooling, controlled by a single thermostat, which is part of the technical content. An elevator in the building ensures comfortable access to the apartments. A particularly attractive feature is the enclosed area that belongs exclusively to this condominium. If my offer has piqued your interest, please feel free to contact me!

Registration Number

P4639-1-0A-02-009

Property Details

Sales
for sale
Legal Status
new
Character
apartment
Construction Method
brick
Net Size
48.2 m²
Gross Size
56.7 m²
Size of Terrace / Balcony
8.5 m²
Heating
heat pump
Ceiling Height
270 cm
Number of Levels Within the Property
3
Orientation
South
Staircase Type
enclosed staircase
Condition
Excellent
Condition of Facade
Excellent
Condition of Staircase
Excellent
Neighborhood
quiet, good transport, green, central
Year of Construction
2025
Number of Bathrooms
1
Position
courtyard-facing
Garage Spaces
1
Water
Available
Gas
Available
Electricity
Available
Sewer
Available
Elevator
available
Storage
Separately purchasable
Distance to Waterfront
more than 500 meters

Rooms

living room
20.3 m²
open-plan kitchen and dining room
6.15 m²
room
11.37 m²
bathroom
5.55 m²
entryway
3.06 m²
toilet
1.8 m²
balcony
8.52 m²

From Our Office Listings - Siófok - Petőfi sétány

for sale family house

Index image
data_sheet.details.realestate.section.main.otthonstart_flag.label
13

for sale family house

Index image
data_sheet.details.realestate.section.main.otthonstart_flag.label
26

for sale family house

Index image
data_sheet.details.realestate.section.main.otthonstart_flag.label
21

for sale apartment

Index image
13

for sale apartment

Index image
data_sheet.details.realestate.section.main.otthonstart_flag.label
18

for sale family house

Index image
data_sheet.details.realestate.section.main.otthonstart_flag.label
17

for sale apartment

Index image
data_sheet.details.realestate.section.main.otthonstart_flag.label
11